68 Bellshaugh Gardens, Kelvinside, Glasgow, G12 0SA
Property Description
An exceptional example of a modern family home set across three levels, with the alluring benefit of a large garage and secluded garden; all while being located in a discreet, yet well placed pocket of Kelvinside.
The property is arranged in an attractive three bedroom (two ensuite) and two public room layout, offering tremendous versatility to suit a variety of families or professionals. The house has a spacious feel and flow that compliments modern living, windows draw in light from both sides, giving each floor a bright, uplifting feel, while thoughtful finishes and smart storage solutions keep everything tidy and easy to use.
The rear garden has been carefully designed for low-maintenance enjoyment, an inviting, serene setting for morning coffee, after-school play, or easy weekend entertaining. We would also like to highlight the advantage of a private garage, which is a practical luxury and rarity in this part of town.
Kelvinside is known as a leafy and serene district, providing enviable access to the Botanical Gardens via the gate on Ford Road, in addition to some of the country’s leading independent schools. The West End’s main thoroughfares and vibrant amenities are also within walking distance, with a mixture of transport links and supermarkets readily available, making this all-encompassing property a very compelling consideration for professionals and growing families.
Accommodation
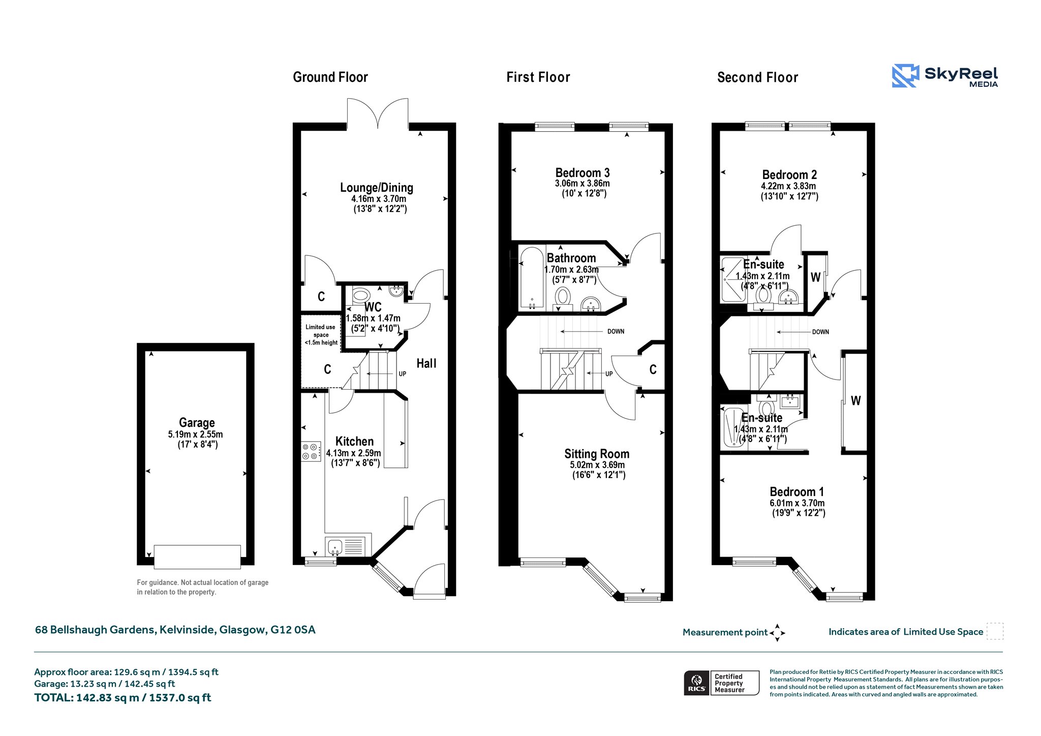
Ground floor
· Entrance cloakroom vestibule with glazed doors.
· Gorgeous contemporary fitted kitchen with white gloss cabinetry with integrated appliances (including an electric AGA), veiled by a pony wall.
· Rear dining/sun room that could also cater as a lounge, office or playroom, with ceiling cornice, storage off, and French doors leading to the back garden.
· Two-piece understairs W/C with space for utility appliance and extendable clothes drying rack.
· Stairway to upper levels.
First floor
· First floor landing with storage off.
· Front sitting room, which would also serve as a superb double bedroom, with three windows to the front and ornate ceiling cornice.
· Rear third bedroom currently configured as an impressive office with two windows to the rear.
· Fetching three piece Terrazzo bathroom with shower over bath and neutral tone tiling.
Second Floor
· Second floor landing with attic storage access hatch.
· Principal (main) bedroom with ceiling cornice, integrated mirrored wardrobes and three windows to the front.
· Stylish three piece en suite shower room with fresh tiling, complemented by gold coloured embellishments and sanitary fittings.
· Bedroom two is also of double proportions with two windows to the rear, fitted wardrobes and en suite.
· A contemporary three piece shower room serves the second bedroom.
Garden
· Front garden laid to lawn with stone pathway.
· Back garden enclosed by fencing with astroturf lawn, mature planting and decking.
Additional Information
· Double glazing.
· Gas central heating.
· Private Garage.
· On street parking.
More Details
EPC: C
Council Tax: G
Tenure: Freehold
Your home may be repossessed if you do not keep up repayments on your mortgage. There may be a fee for mortgage advice. The actual amount you pay will depend upon your circumstances.
Similar Properties
Looking To Sell Or Let?
Rettie is one of the most trusted and well-respected names in property. Our unrivalled market knowledge helps people from around the world buy, sell, let and develop property in Scotland and the North East of England - from city apartments and rural cottages to large townhouses and prime country homes, farms and estates. We deal with some of the most prestigious properties on the market, but provide the same exceptional standards of service and value for money to all our clients.
