Flat 1, 20 Victoria Crescent Road, Dowanhill, Glasgow, G12 9DD
Offers Over £495,000
Duplex Apartment
3 Bedrooms
3 Bathrooms
2 Reception Rooms
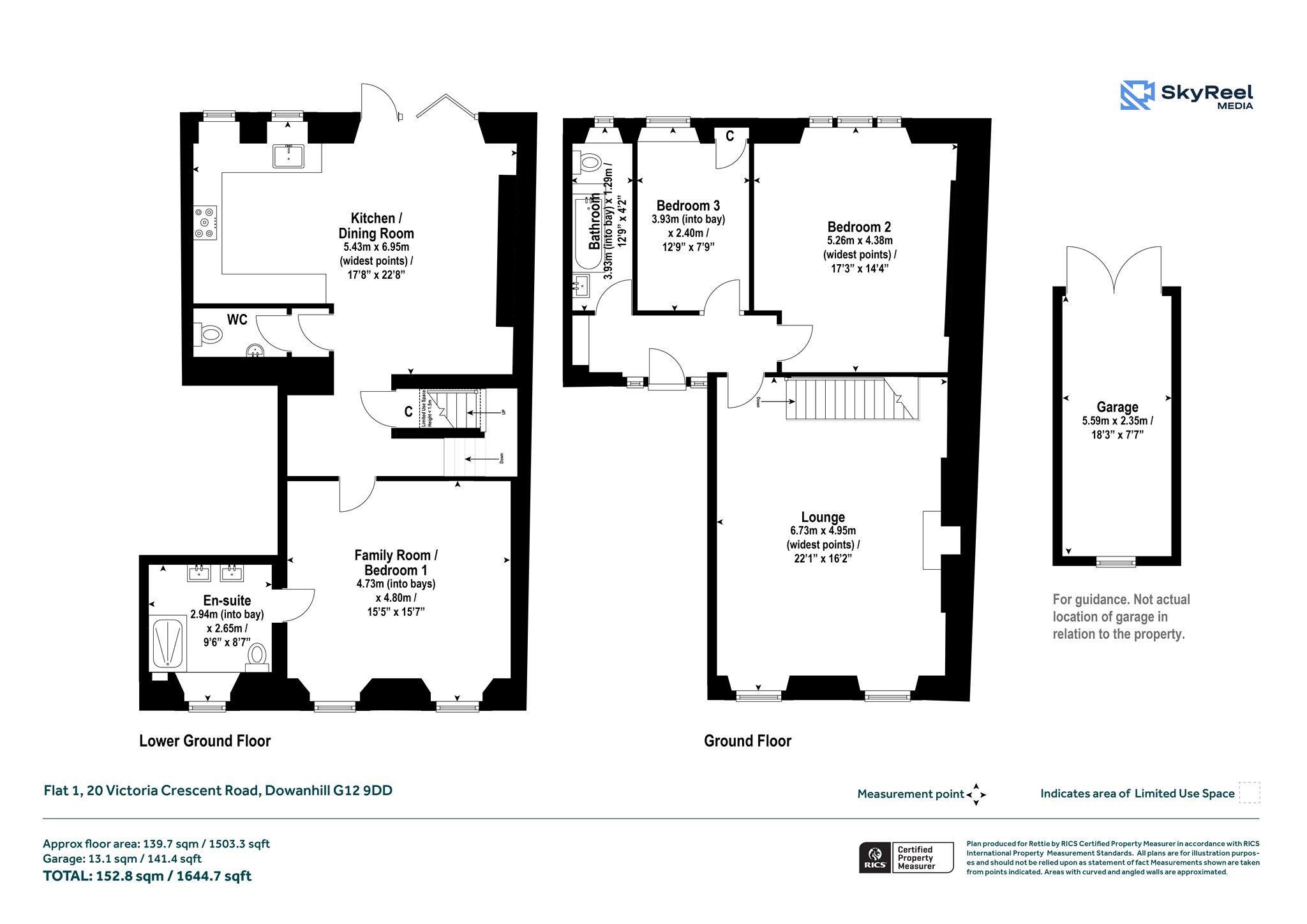
1,645 sq.ft
Communal Garden
Garage
Property Description
This impressive three-bedroom conversion occupies the ground and garden levels of a handsome B-listed sandstone townhouse on the beautiful, curved terrace of Victoria Crescent Road, directly opposite the well-known Willowbank Bowling & Petanque Club. With a south-west facing frontage and access to mature private gardens & private lane accessed garage, this is a particularly desirable West End home offering elegant period character and superb modern comfort, all within walking distance of Byres Road and Glasgow University.
Victoria Crescent Road is one of the West End’s most attractive traditional terraces, forming a quiet, tree-lined sweep between Dowanside Road and Prince Albert Road. Residents enjoy the rare combination of architectural grandeur and peaceful, leafy surroundings, while still being only a few minutes’ walk from the vast selection of cafés, restaurants, and amenities found along Byres Road, Gibson Street and Great Western Road. The location is also ideal for transport links, with Hillhead Underground and regular bus services available close by on Highburgh Road & Byres Road.
The property is held within a traditional blonde sandstone townhouse that retains much of its original grandeur and fine detailing. Access is gained via a secure entrance with an impressive communal hallway featuring encaustic tiling and ornate cornicing. The private entrance opens into a welcoming reception hall, leading through to a beautifully proportioned main living room with twin front-facing windows that look out across the bowling green, working shutters, intricate cornicing, and an original black marble fireplace.
Also on this level are two bedrooms—one a particularly spacious double with original detailing and outlooks to the rear garden, the other currently a comfortable single that could also make a brilliant home office. A well-presented bathroom with three-piece white suite and window to the rear completes the upper accommodation.
A striking glazed staircase leads down to the garden level, where the home’s most impressive living space is found. The open-plan dining kitchen spans the full width of the property, featuring underfloor heating, twin windows, and bi-fold doors that open directly onto the private rear garden—creating a wonderful indoor-outdoor flow that makes this the true heart of the home. The kitchen is fitted with a generous range of bespoke Clive Christian cabinetry, granite surfaces, and high-quality integrated appliances.
The principal bedroom suite is located on this lower level, enjoying a peaceful outlook to the front and benefiting from a luxurious en-suite shower room with underfloor heating, double marble wash-hand basins, and walk-in wet room-style shower. As you will see from the attached photographs, hd video and matterport tour – this bedroom is currently utilised as a very comfortable additional sitting & playroom – demonstrating the versatile nature of the accommodation.
Externally, there are neatly maintained private gardens to both the front and rear, the latter offering a tranquil retreat with space for outdoor dining and relaxation. To the rear lane there is also a private garage, providing secure parking or useful storage space—an increasingly rare asset in this part of the West End. On-street residents’ permit parking is available to the front.
A truly elegant and versatile West End home that combines traditional architecture with contemporary living, positioned on one of the finest addresses in Dowanhill.
Attributes
- Beautiful three-bedroom duplex conversion within a B-listed sandstone townhouse
- Desirable south-west facing position opposite Willowbank Bowling Club
- Elegant period architecture with fine original detailing throughout
- Expansive bay-windowed living room with ornate cornice and marble fireplace
- Impressive open-plan dining kitchen with Clive Christian cabinetry, underfloor heating, and direct garden access
- Principal bedroom suite with fitted wardrobes and luxurious en-suite shower room
- Additional double bedroom and flexible third bedroom/home office
- Attractive private front and rear gardens
- Private garage to rear lane and residents’ permit parking to front
- Peaceful crescent location just minutes from Byres Road, Great Western Road, and Kelvinbridge Underground
More Details
EPC: C
Council Tax: F
Tenure: Freehold
Your home may be repossessed if you do not keep up repayments on your mortgage. There may be a fee for mortgage advice. The actual amount you pay will depend upon your circumstances.
Similar Properties
Looking To Sell Or Let?
Rettie is one of the most trusted and well-respected names in property. Our unrivalled market knowledge helps people from around the world buy, sell, let and develop property in Scotland and the North East of England - from city apartments and rural cottages to large townhouses and prime country homes, farms and estates. We deal with some of the most prestigious properties on the market, but provide the same exceptional standards of service and value for money to all our clients.
