1/2, 170 Kelvinhaugh Street, Yorkhill, Glasgow, G3 8PR
Property Description
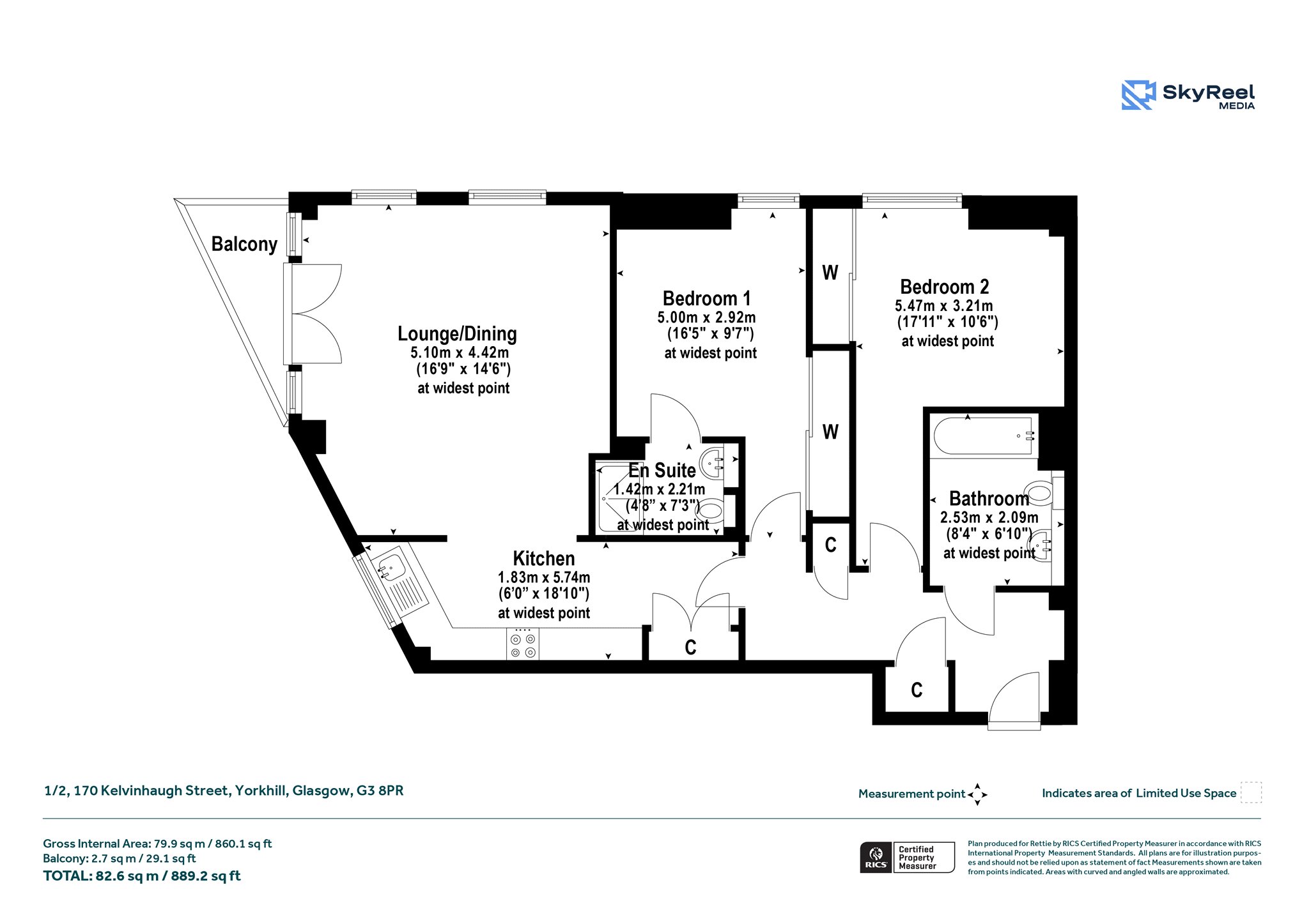
Occupying a first-floor position within an attractive modern development this immediately impressive two-bedroom apartment offers stylish, generously proportioned accommodation in one of Glasgow’s most vibrant and sought-after locations.
The property is beautifully presented throughout, with a naturally bright interior enhanced by large windows and a thoughtfully designed layout. The superb main lounge and dining room forms the heart of the home — an impressive, welcoming space ideal for both relaxing and entertaining. From here, double doors open onto a private, south facing, balcony, providing the perfect spot for morning coffee or evening unwinding. The semi-open plan kitchen sits just off the living area, offering a contemporary and practical cooking space while maintaining a sense of connection to the main living accommodation.
Both bedrooms are well-proportioned doubles, offering comfortable and versatile accommodation. The principal bedroom benefits from a stylish en suite shower room, while a modern three-piece bathroom serves the second bedroom and guests alike. Ample storage is provided throughout the apartment, ensuring excellent practicality for everyday living.
Further features include lift access to each level, a secure allocated parking space, and well-maintained communal areas, all contributing to the comfort and convenience of this exceptional home.
Kelvinhaugh Street is superbly positioned on the edge of Glasgow’s thriving Finnieston district and the West End. Residents can enjoy an outstanding selection of cafés, bars and restaurants on nearby Argyle Street and Finnieston, as well as cultural attractions including Kelvingrove Art Gallery and Museum, the SEC, and the OVO Hydro. Kelvingrove Park is just moments away, offering beautiful green space for outdoor leisure, while the University of Glasgow is within easy reach. Excellent transport links are close at hand, including Exhibition Centre train station, Kelvinhall Subway, and convenient road access to the Clydeside Expressway and motorway network, making this an ideal base for commuters and city living alike.
Accommodation:
- Video security entry system
- Communal entrance hall with lift and stair access to each level
- Welcoming reception hall with three useful storage cupboards off
- Bright and spacious lounge/dining room with two picture windows to the front, two additional windows to the side and double doors to private, south facing balcony
- Impressive semi-open plan kitchen complete with a range of base and wall units, integrated appliances and window to the front
- Bedroom one with window to the side and fitted wardrobes
- Stylish en suite shower room comprising three-piece suite
- Bedroom two with window to the side
- Contemporary three-piece bathroom comprising bath, over bath shower, toilet and wash hand basin
- Gas central heating
- Double glazing
- Feature balcony off the lounge/dining room with south facing aspects
- Allocated parking space within secure residents’ car park
- Availability of on street residents’ parking permit
More Details
Situation: Contact branch
Council Tax Band: E
Tenure: Freehold
Your home may be repossessed if you do not keep up repayments on your mortgage.
There may be a fee for mortgage advice. The actual amount you pay will depend upon your circumstances. The fee is up to 1% but a typical fee is 0.3% of the amount borrowed.
Similar Properties
Looking To Sell Or Let?
Rettie is one of the most trusted and well-respected names in property. Our unrivalled market knowledge helps people from around the world buy, sell, let and develop property in Scotland and the North East of England - from city apartments and rural cottages to large townhouses and prime country homes, farms and estates. We deal with some of the most prestigious properties on the market, but provide the same exceptional standards of service and value for money to all our clients.
