Flat 30, Weymouth Court, 183 Weymouth Drive, Kelvindale, Glasgow, G12 0EP
Offers Over £159,000
Upper Floor Apartment
2 Bedrooms
1 Bathroom
1 Reception Room
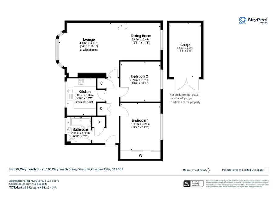
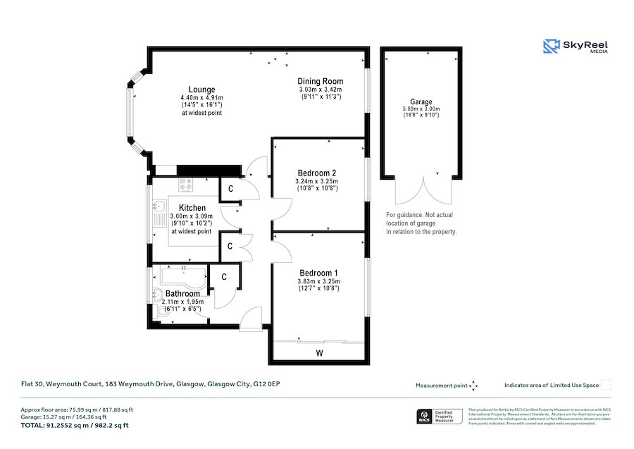
982 sq.ft
Garage
Property Description
Benefitting from an elevated position near the edge of Kelvindale, this well-appointed two-bedroom top floor apartment offers bright, generously proportioned accommodation with open green views to the rear towards the Garscube Estate & Dawsholm Park.
The property has the added advantage of a substantial private garage, accessed from the rear of the building and fitted with wide bi-folding doors, LED strip lighting and power points — a rare and highly practical feature for a home of this type.
Weymouth Court is a well-maintained residential development in Kelvindale - a particularly popular, peaceful and convenient West End address.
Handy for a broad range of amenities, this is an ideal home for professional individuals, couples and buy-to-let investors alike, and will also appeal strongly to students and academics seeking accommodation within walking and cycling distance of the University of Glasgow and its Veterinary Campus at the Garscube Estate. The property is well placed for gaining quick access to Kelvindale and Anniesland Railway Stations, together with local shops and services on Cleveden Road and Dorchester Avenue, while Anniesland Cross offers a wider selection of supermarkets, cafés and retail amenities. The vibrant amenities of Byres Road, the Botanic Gardens and Glasgow University are all easily reached by bike, bus or rail. The nearby Forth & Clyde Canal and surrounding green spaces provide excellent opportunities for walking, running and cycling, adding to the lifestyle appeal of the location.
The apartment is held within a tidy, well-kept development which is factored by Hacking & Paterson Property Management Services, who oversee the maintenance and cleaning of the communal hall and stairway, communal lighting and buildings insurance. Access is via a secure entrance door with intercom system, leading to a bright and well-maintained communal stairway which gives access to the top floor.
Internally, the accommodation is bright, peaceful and well laid out, with good storage and comfortable room sizes throughout. In brief, the accommodation extends to a welcoming entrance hall with storage cupboards, two comfortable double bedrooms — the principal benefiting from in-built mirrored wardrobes — a twin-aspect open plan living and dining room which is particularly spacious and enjoys attractive open views to the rear, a fitted kitchen with appliances and additional storage, and a well-appointed main bathroom with white suite and shower over bath.
Considering the attractive position, generous internal proportions and the significant benefit of a large private garage, this excellent two-bedroom apartment is likely to prove popular and early viewing is recommended.
________________________________________
Accommodation:
- Security entry system
- Communal entrance hall and stairway
- Welcoming reception hall with storage cupboards
- Spacious twin-aspect living/dining room with open green views
- Fitted kitchen with appliances and storage cupboard
- Principal bedroom with mirrored wardrobes
- Second double bedroom
- Main bathroom with white suite and shower over bath
- Double glazing
- Substantial private garage with bi-fold doors, LED lighting and power points
More Details
Situation: Contact branch
Council Tax Band: D
Tenure: Freehold
Your home may be repossessed if you do not keep up repayments on your mortgage. There may be a fee for mortgage advice. The actual amount you pay will depend upon your circumstances.
Similar Properties
Looking To Sell Or Let?
Rettie is one of the most trusted and well-respected names in property. Our unrivalled market knowledge helps people from around the world buy, sell, let and develop property in Scotland and the North East of England - from city apartments and rural cottages to large townhouses and prime country homes, farms and estates. We deal with some of the most prestigious properties on the market, but provide the same exceptional standards of service and value for money to all our clients.
























































