1/1, 12 Havelock Street, Dowanhill, Glasgow, G11 5JA
Property Description
Occupying a preferred first floor position within an elegant red sandstone tenement building, this appealing two-bedroom apartment at enjoys an incredibly convenient West End position just a stone’s throw from Byres Road.
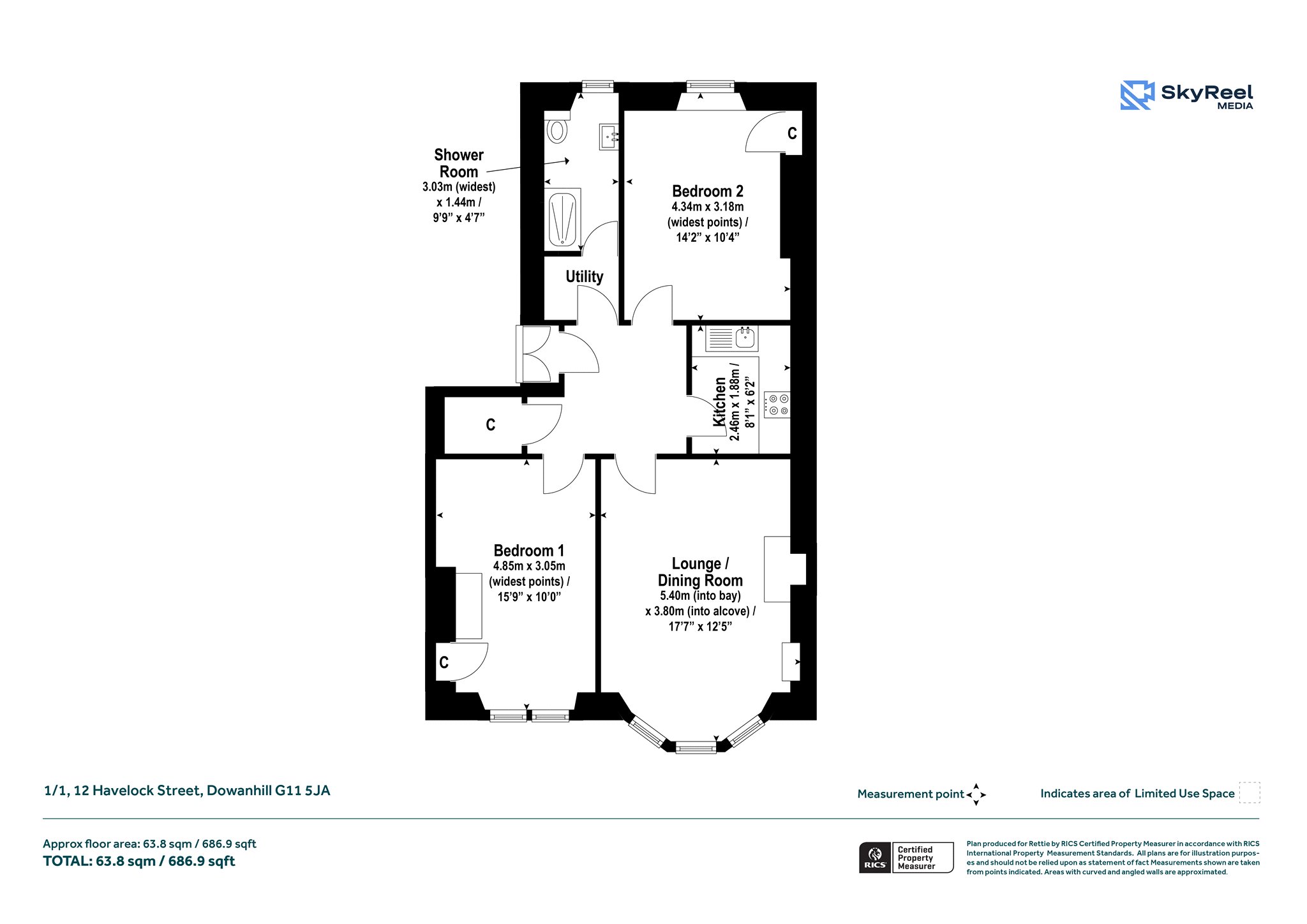
The interior is well presented throughout, generously proportioned and filled with excellent natural light, creating a bright and welcoming home. Accommodation includes a spacious bay-windowed lounge/dining room, ideal for both relaxing and entertaining. An internal kitchen sits neatly off the hallway together with two comfortably proportioned double bedrooms. A particularly valuable utility area adds everyday practicality, and a three-piece shower room completes the accommodation.
12 Havelock Street is exceptionally well placed for everything The West End has to offer. There is an outstanding selection of cafés, restaurants, bars and independent shops, along with everyday conveniences such as supermarkets and specialist food stores. The University of Glasgow, Botanic Gardens and Kelvingrove Park are all within easy walking distance, while excellent public transport links, including nearby subway stations and frequent bus services, provide swift access to the city centre and beyond.
This is a superb opportunity to enjoy classic West End living in one of Glasgow’s most sought-after areas.
Accommodation:
- Security entry system
- Communal entrance close
- Storm door entrance vestibule leading to welcoming reception hall with useful storage cupboard off
- Bright and spacious lounge/dining room with three section bay window to the front and focal point fireplace
- Separate kitchen off the reception hall complete with a range of base and wall units and appliances
- Bedroom one with two section window to the front
- Bedroom two with window to the rear
- Invaluable utility area off the reception hall
- Three-piece shower room. Window to the rear
- Gas central heating
- Double glazing
- Shared garden to the rear of the building
- Availability of on street residents’ parking permit
More Details
Situation: Contact branch
Council Tax Band: E
Tenure: Freehold
Your home may be repossessed if you do not keep up repayments on your mortgage.
There may be a fee for mortgage advice. The actual amount you pay will depend upon your circumstances. The fee is up to 1% but a typical fee is 0.3% of the amount borrowed.
Similar Properties
Looking To Sell Or Let?
Rettie is one of the most trusted and well-respected names in property. Our unrivalled market knowledge helps people from around the world buy, sell, let and develop property in Scotland and the North East of England - from city apartments and rural cottages to large townhouses and prime country homes, farms and estates. We deal with some of the most prestigious properties on the market, but provide the same exceptional standards of service and value for money to all our clients.
