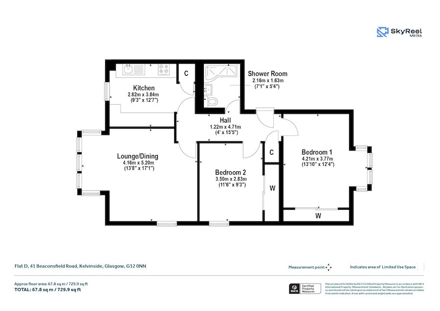
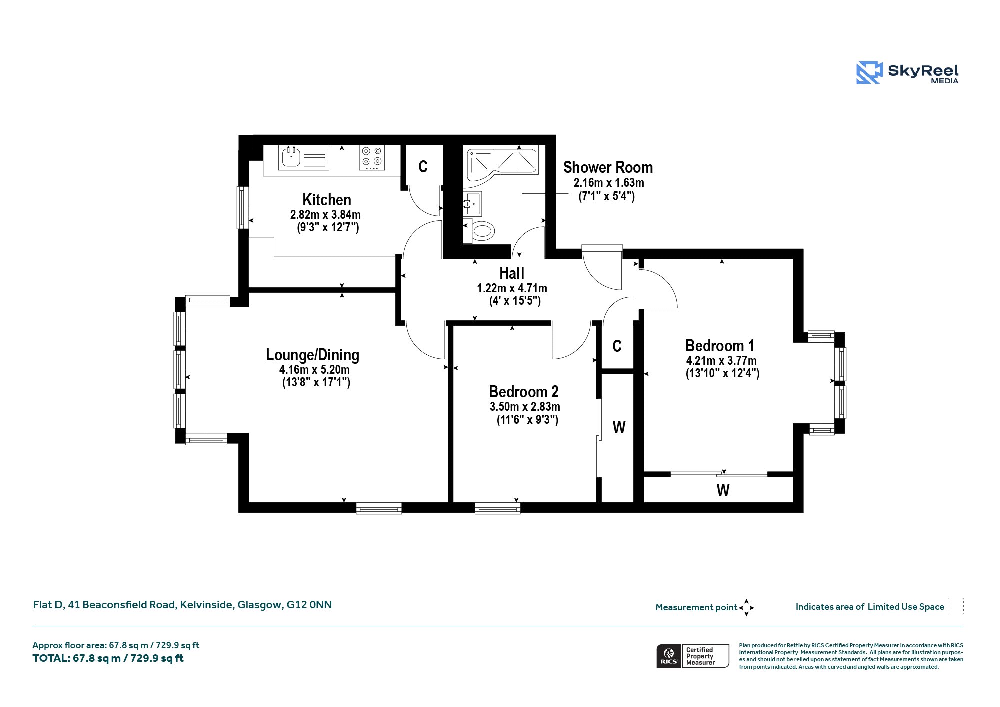
Flat D, 41 Beaconsfield Road, Kelvinside, Glasgow, G12 0NN
Offers Over £209,000
First Floor Apartment
2 Bedrooms
1 Bathroom
1 Reception Room
730 sq.ft
Communal Garden
Off Street Parking
Property Description
An immediately impressive and rarely available two bedroom 1st floor apartment forming part of a modern block of apartments on the corner of Cleveden Drive and Beaconsfield Road in the highly desirable Kelvinside District. The property is situated in a quiet residential pocket within the West End yet is exceptionally well placed for an enviable selection of local amenities found on Hyndland Road, Clarence Drive and Byres Road together with excellent transport links and easy access to The University of Glasgow and The Botanic Gardens.
The accommodation is immaculately presented, benefits from excellent natural light and includes a fabulous main living/dining room with fabulous views. In addition, there is a separate modern kitchen, two spacious double bedrooms (both with fitted mirrored wardrobes) and a three-piece shower room off the reception hall. We would also highlight the significant advantage of off-street parking.
Accommodation:
- Security entry system
- Communal entrance hall
- Welcoming reception hall with storage cupboard off
- Superb main lounge/dining room with five section box window to the front and additional window to the side
- Modern kitchen complete with a range of base and wall units, appliances, additional storage and window to the front
- Bedroom one with window to the rear and fitted mirrored wardrobes
- Bedroom two with window to the side and fitted mirrored wardrobes
- Three-piece shower room
- Gas central heating
- Double glazing
- Off street residents’ parking
More Details
Situation: Communal Garden
Council Tax Band: E
Tenure: Freehold
Your home may be repossessed if you do not keep up repayments on your mortgage. There may be a fee for mortgage advice. The actual amount you pay will depend upon your circumstances.
Similar Properties
Looking To Sell Or Let?
Rettie is one of the most trusted and well-respected names in property. Our unrivalled market knowledge helps people from around the world buy, sell, let and develop property in Scotland and the North East of England - from city apartments and rural cottages to large townhouses and prime country homes, farms and estates. We deal with some of the most prestigious properties on the market, but provide the same exceptional standards of service and value for money to all our clients.
