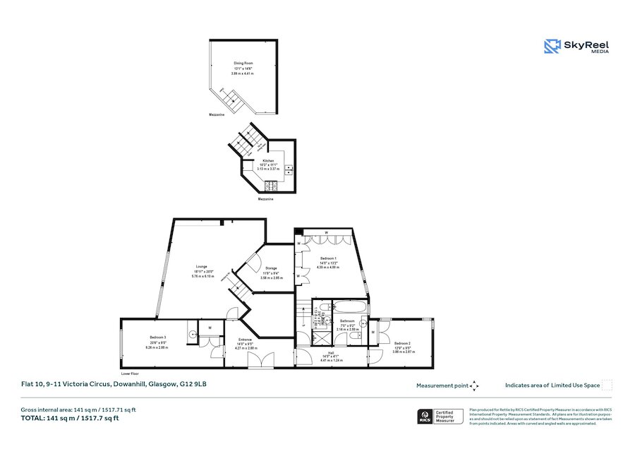
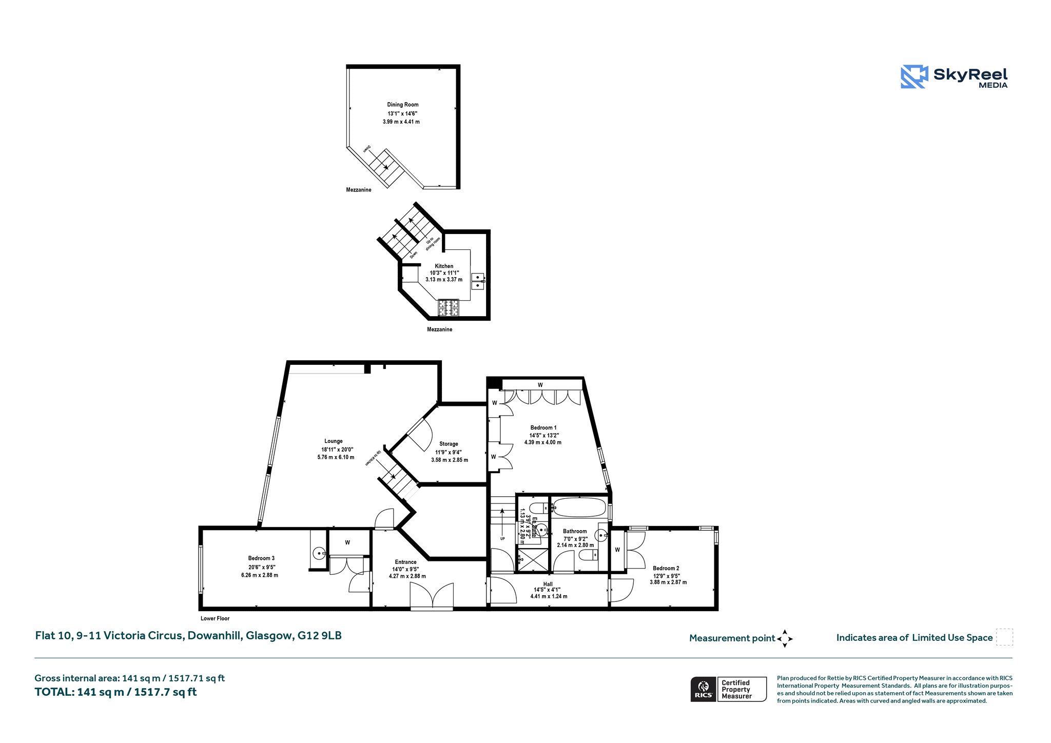
Flat 10, 9-11 Victoria Circus, Dowanhill, Glasgow, G12 9LB
Offers Over £299,000
Ground Floor Apartment
3 Bedrooms
2 Bathrooms
1 Reception Room
1,517 sq.ft
Communal Garden
On Street/Permit
Property Description
Set within a secluded former convent known as The Limes, this substantial three-bedroom elevated ground floor conversion offers wonderfully bright, characterful accommodation extending to approximately 1,500 square feet, all positioned within one of Dowanhill’s most peaceful and leafy enclaves.
Victoria Circus is an exceptional address in the highly sought-after West End district of Dowanhill. For those unfamiliar with the area, it is widely regarded as one of Glasgow’s most desirable residential pockets—often referred to as a “leafy village” just moments from the heart of the West End. Peaceful, picturesque and lined with mature trees, this charming setting offers a rare sense of calm and privacy despite being only a few minutes’ walk from Byres Road. As such, the location appeals to a broad spectrum of buyers—from students and academics seeking close proximity to the University of Glasgow, to professional couples and downsizers in search of a unique and well-connected home base.
The Limes itself is set within beautifully maintained residents’ gardens. These grounds are laid mainly to neat lawn and framed by mature trees, shrubs and established planting, creating a tranquil outdoor environment for residents to enjoy. In addition, there is a courtyard to the rear which provides residents’ parking on a first come, first served basis. Residents are also eligible to apply for on-street parking permits via the local authority.
The apartment occupies an elevated ground floor position at the rear of the building and has been thoughtfully designed to maximise both light and volume, resulting in a home of real architectural interest and individuality. Internally, the accommodation is arranged over split levels, creating a dynamic and highly engaging living environment.
In brief, the accommodation extends to a broad and welcoming reception hall which immediately hints at the scale of the property. The main living room is a particularly impressive space—bright and airy, with a wide aperture window, striking vaulted acoustic ceiling and a bespoke bookcase complete with sliding ladder, adding both practicality and visual appeal.
From the lounge, a short staircase leads up to the kitchen which overlooks the living space below, creating a semi open-plan feel that is both sociable and distinctive. A further set of steps leads to an elevated dining platform which could equally serve as a superb home office—perfectly positioned “out of the way” for those working from home. Beneath the kitchen, a substantial storage area provides excellent additional practicality.
There are three spacious bedrooms, each benefitting from in-built wardrobes. The principal bedroom is particularly comfortable and includes an en-suite shower room, while a well-appointed main bathroom with three-piece suite serves the remaining accommodation.
Overall, this is a highly individual and rarely available home, combining impressive internal space, architectural flair and a prime West End location. It will appeal to a wide range of buyers, though may be of particular interest to downsizers seeking something unique, or professional couples looking for a distinctive and centrally located residence.
Attributes
• Substantial three-bedroom elevated ground floor conversion
• Set within The Limes, a former convent building full of character
• Approximately 1,500 sq ft of versatile, split-level accommodation
• Prime Dowanhill location in a peaceful and leafy setting
• Just minutes’ walk from Byres Road and University of Glasgow
• Beautifully maintained residents’ gardens with lawn, trees and planting
• Residents’ courtyard parking
• On-street permit parking available via local authority
• Striking living room with vaulted ceiling and bespoke bookcase with ladder
• Unique split-level layout with excellent natural light throughout
• Elevated kitchen overlooking the main living space
• Additional raised dining platform / ideal home office area
• Three generous bedrooms, all with in-built wardrobes
• Principal bedroom with en-suite shower room
• Well-appointed main bathroom with three-piece suite
• Excellent internal storage including large under-kitchen area
• Rare opportunity to acquire a distinctive and highly individual West End home
More Details
Situation: Communal Garden
Council Tax Band: E
Tenure: Freehold
Your home may be repossessed if you do not keep up repayments on your mortgage.
There may be a fee for mortgage advice. The actual amount you pay will depend upon your circumstances. The fee is up to 1% but a typical fee is 0.3% of the amount borrowed.
Similar Properties
Looking To Sell Or Let?
Rettie is one of the most trusted and well-respected names in property. Our unrivalled market knowledge helps people from around the world buy, sell, let and develop property in Scotland and the North East of England - from city apartments and rural cottages to large townhouses and prime country homes, farms and estates. We deal with some of the most prestigious properties on the market, but provide the same exceptional standards of service and value for money to all our clients.
