3/6, 16 Castlebank Place, Glasgow Harbour, Glasgow, G11 6BX
Offers Over £169,000
Apartment
2 Bedrooms
2 Bathrooms
1 Reception Room
677 sq.ft
Underground Parking
Property Description
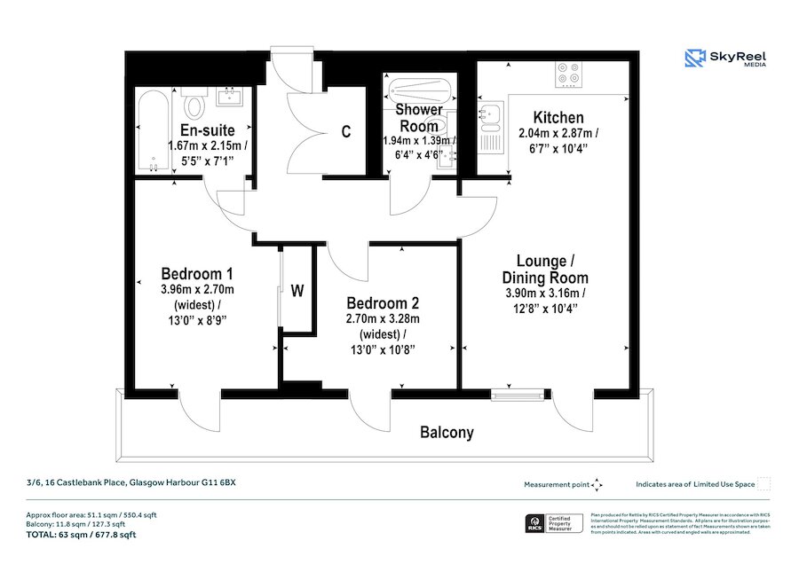
Occupying a third-floor position within the landmark Glasgow Harbour development, this appealing two-bedroom apartment enjoys bright west-facing aspects and an enviable setting on the banks of the River Clyde. Well-presented and comfortably proportioned, the accommodation offers a superb blend of style, comfort and convenience, ideal for a range of buyers.
The internal accommodation includes a bright and spacious living/dining room, a modern, open plan kitchen two double bedrooms The principal bedroom benefits from a well-appointed en suite bathroom, while a stylish three-piece shower room serves the remainder of the property. A particular highlight is the superb west-facing balcony, which extends the full length of the property and can be accessed from living room and both bedrooms. This generous outdoor space provides a particularly pleasant outlook over towards The River Clyde. The development itself is well maintained and offers lift access to each level, ensuring ease of access, while an allocated parking space adds significant convenience.
Castlebank Place forms part of the highly desirable Glasgow Harbour development, perfectly positioned between the vibrant West End and the city centre. The property is within easy reach of a wide selection of local amenities, including cafés, restaurants and bars in Finnieston and on Byres Road, as well as excellent shopping at Partick Retail Park and the nearby Morrisons supermarket. The University of Glasgow, Kelvingrove Park and Museum, and the SEC campus are all close at hand. Excellent transport links are available via Partick Train and Subway Station, regular bus services, and swift access to the Clydeside Expressway and motorway network, making this an exceptionally convenient location for commuters.
Accommodation:
- Video security entry system
- Foyer with lift and stair access to each level
- L-shaped reception hall with useful storage cupboard off
- Bright living/dining room with access to west facing balcony extending the full length of the flat which offers a pleasant view along The River Clyde
- Open plan kitchen complete with a range of base and wall units and integrated appliances
- Bedroom one with door to balcony and fitted wardrobes
- Stylish en suite bathroom comprising three-piece suite
- Bedroom two with access to balcony
- Modern three-piece shower room
- Electric heating
- Double glazing
- Residents’ courtyard gardens
- Allocated parking space within secure underground residents’ car park
More Details
Situation: Contact branch
Council Tax Band: E
Tenure: Freehold
Your home may be repossessed if you do not keep up repayments on your mortgage. There may be a fee for mortgage advice. The actual amount you pay will depend upon your circumstances.
Similar Properties
Looking To Sell Or Let?
Rettie is one of the most trusted and well-respected names in property. Our unrivalled market knowledge helps people from around the world buy, sell, let and develop property in Scotland and the North East of England - from city apartments and rural cottages to large townhouses and prime country homes, farms and estates. We deal with some of the most prestigious properties on the market, but provide the same exceptional standards of service and value for money to all our clients.
