47 Vancouver Walk, Athletes' Village, Glasgow, G40 4TP
Property Description
Under offer at Closing Date- Wednesday 18th March 2026.
Peacefully positioned within a cul-de-sac of the coveted Athletes’ Village, this thoughtfully arranged three bedroom mid-terrace home offers intelligently designed, energy-efficient accommodation across three levels. Situated just moments from a scenic bend in the River Clyde, the Athletes’ Village has established itself as one of Glasgow’s most exciting residential quarters, originally created to host international athletes during the 2014 Commonwealth Games and now home to a thriving, well connected community. The property delivers comfortable modern living within a quiet, family friendly setting, equally well suited to commuters seeking swift access across the City.
Extending over three floors, the home has a notably practical configuration, especially appealing to professional couples, young families or those in need of adaptable space for home working. Built with sustainability at its core, the development was conceived as a benchmark for contemporary urban regeneration, with high performance glazing, enhanced insulation, solar panels and renewable technologies integrated throughout; ensuring warmth, improved efficiency and lower day-to-day running costs.
The principal living space instantaneously impresses, centred around a broad front facing window that frames attractive green views towards the River Clyde and draws an abundance of natural light into the room. Designed with a bright, open and highly cohesive layout, the living area flows seamlessly into the kitchen, creating a free-moving environment that works effortlessly for both everyday family life and entertaining. While the kitchen and living area make a natural connection, glazed doors to the rear provide direct access to an enclosed garden with dedicated parking.
The first floor hosts two well proportioned bedrooms, each offering flexibility for family living, guest accommodation or home office use. A stylish family bathroom serves this level, finished in a clean, contemporary style.
The uppermost floor is dedicated to the principal bedroom suite. Generously sized and thoughtfully arranged, the room is defined by a soaring vaulted ceiling height and allows a sense of separation from the rest of the home.
The house benefits from both a private front garden and a private enclosed rear garden. The rear garden incorporates dedicated off-street parking, with electric vehicle charging provision available within the development, reflecting the forward-thinking design ethos that defines the wider neighbourhood.
Dalmarnock and the Athletes’ Village continue to evolve as one of Glasgow’s most progressive and family friendly communities. With Riverbank Primary School positioned within the development itself, convenient access to supermarkets and everyday amenities, and excellent public transport links via Dalmarnock railway station, the location is exceptionally well placed for commuters. Swift connections into Glasgow City Centre, the wider city and routes across the Central Belt ensure the property appeals equally to professionals and families seeking modern living with genuine connectivity. The nearby Cuningar Loop Footbridge provides immediate pedestrian access to Cuningar Loop, opening up expansive parkland, woodland walks and riverside trails quite literally on the doorstep, completing what is a highly balanced and exceptional setting.
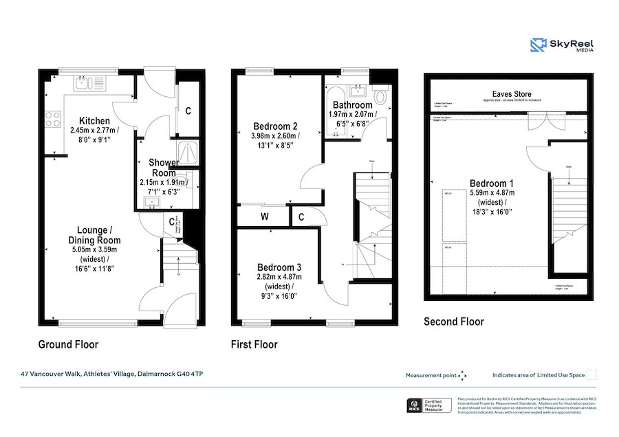
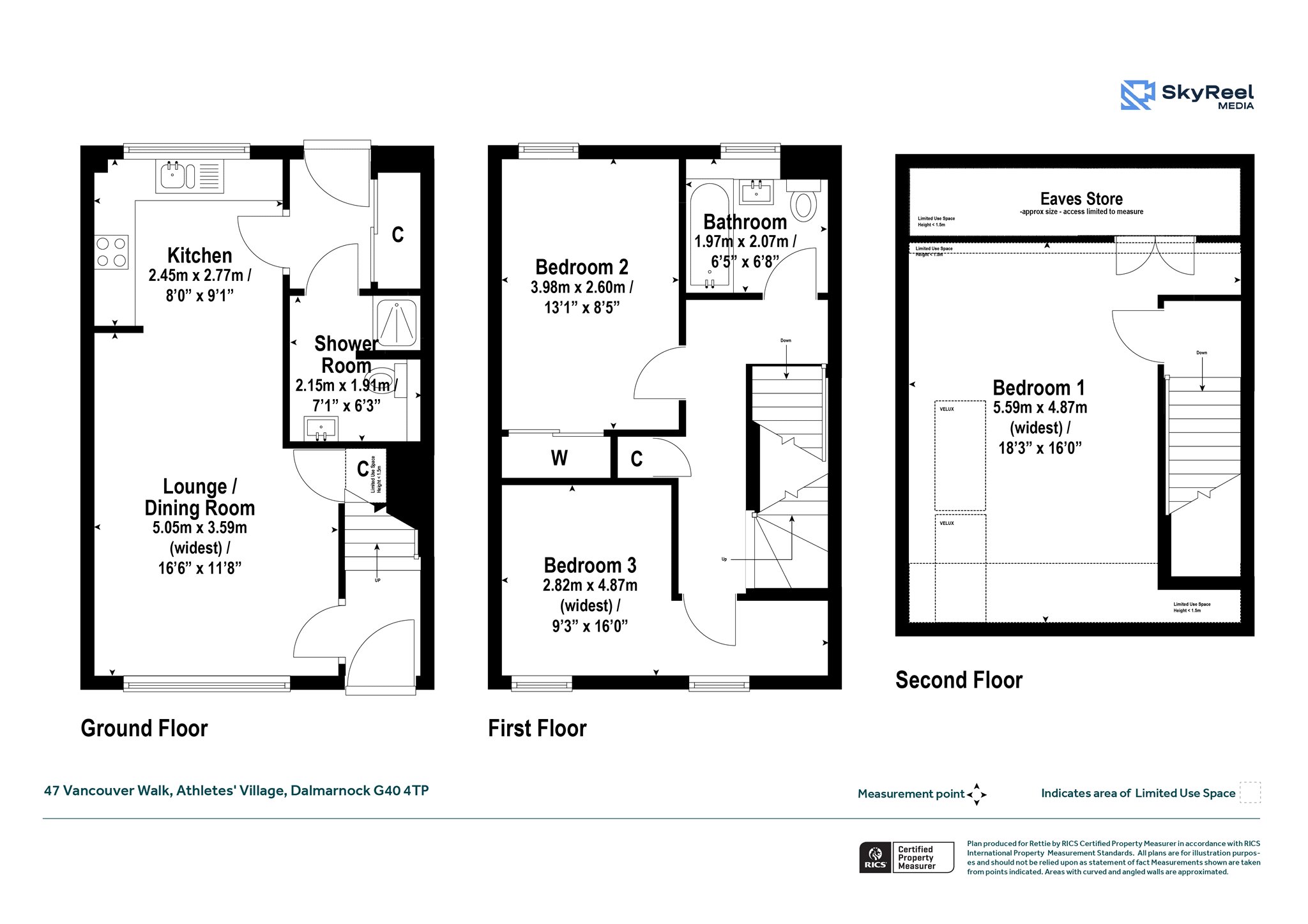
Accommodation
- Private front garden and pathway from riverside to front door.
- Entrance hallway with stairway to upper level.
- Fabulous lounge with broad window to the front, that captures a gorgeous outlook over the front garden towards the river, with further access to an understairs storage cupboard.
- Lovely fitted kitchen open to the living room, with integrated appliances, space for dining and window to the rear.
- Utility room accessed from the kitchen provides a door to the garden, with integrated washing appliances and storage.
- Ground floor shower room is accessible from the utility space and provides welcome convenience.
- Stairway from ground floor entrance hallway leads us to the first floor landing with storage off.
- Bedroom two with integrated wardrobes and window to the rear.
- Bedroom three has bright riverside views from two windows to the front.
- Three piece family bathroom with shower over bath and window to the rear.
- Stairs from the first floor landing bring us to the upper level.
- Principal bedroom is of excellent proportions, with tall Velux window granting wonderful views over the river, with further access to imperative eaves storage space.
- Private rear lawned garden enclosed by fencing, with private dedicated parking space and electric car charging.
- Gas central heating.
- Double glazing.
- Roof mounted solar panels.
- Recently upgraded LVT flooring on ground floor.
More Details
EPC: C
Council Tax: C
Tenure: Freehold
Your home may be repossessed if you do not keep up repayments on your mortgage.
There may be a fee for mortgage advice. The actual amount you pay will depend upon your circumstances. The fee is up to 1% but a typical fee is 0.3% of the amount borrowed.
Similar Properties
Looking To Sell Or Let?
Rettie is one of the most trusted and well-respected names in property. Our unrivalled market knowledge helps people from around the world buy, sell, let and develop property in Scotland and the North East of England - from city apartments and rural cottages to large townhouses and prime country homes, farms and estates. We deal with some of the most prestigious properties on the market, but provide the same exceptional standards of service and value for money to all our clients.
