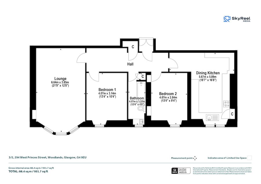
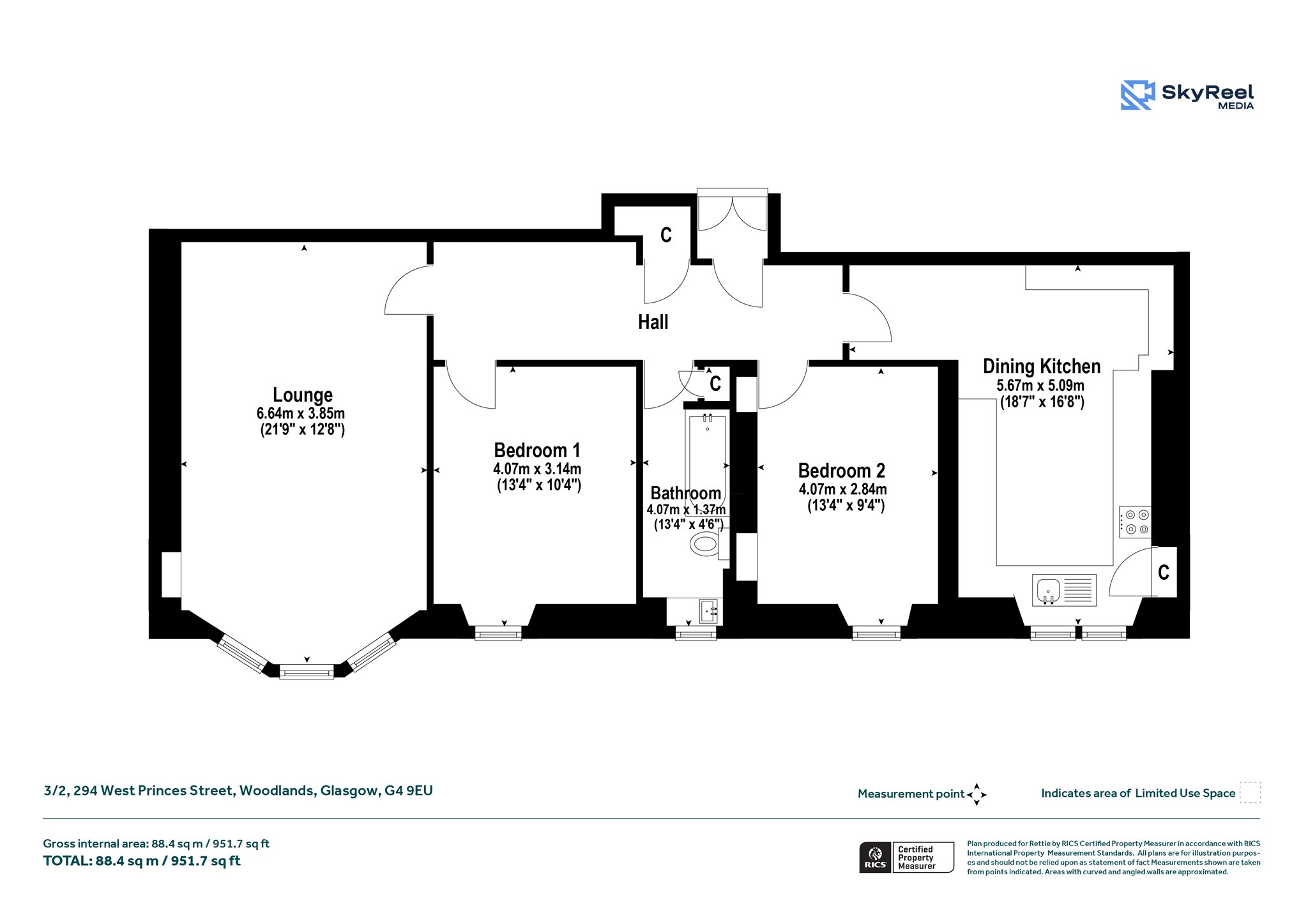
3/2, 294 West Princes Street, Woodlands, Glasgow, G4 9EU
Property Description
Located in the highly popular Woodlands district, this immediately impressive two-bedroom apartment occupies a prominent third-floor position within a handsome traditional sandstone tenement building. Beautifully presented throughout and offered in true walk-in condition, the property enjoys excellent natural light and a wonderful sense of space, perfectly combining period character with modern style.
The accommodation is inviting and of comfortable proportions, with a welcoming reception hallway leading to a superb bay-windowed lounge that is flooded with natural light and provides an elegant and comfortable living space. The impressive dining kitchen is both stylish and practical, offering generous worktop space and ample room for dining, making it ideal for both everyday living and entertaining. There are two spacious double bedrooms, each thoughtfully presented, while a modern three-piece bathroom completes the accommodation.
The Woodlands area is one of Glasgow’s most vibrant and sought-after neighbourhoods, renowned for its charming streets, attractive architecture and outstanding local amenities. A fantastic selection of independent cafés, restaurants, bars and boutiques can be found nearby, while the nearby Great Western Road and Byres Road offers an even wider range of shopping, dining and cultural attractions. Residents also benefit from easy access to the beautiful green spaces of Kelvingrove Park, as well as excellent public transport links and convenient access to the city centre, universities and major road networks.
This exceptional apartment offers a rare opportunity to acquire a beautifully presented home in one of Glasgow’s most popular and convenient locations.
Accommodation:
- Security entry system
- Communal entrance close
- Storm door entrance vestibule leading to welcoming reception hall with wooden flooring and useful storage cupboard off
- Fabulous lounge with three section bay window, wooden flooring and shelved press
- Impressive dining kitchen complete with a range of base and wall units, appliances, bespoke worktops/carpentry to include a cleverly created dining area. Two section window to the front
- Bedroom one with window to the front
- Bedroom two with window to the front
- Modern three-piece bathroom comprising bath, over bath shower, toilet and wash hand basin. Window to the front
- Gas central heating
- Sash and case windows
- Well-maintained shared garden to the rear of the building
- Availability of on street residents’ parking permit
More Details
EPC: C
Council Tax: D
Tenure: FREEHOLD
Your home may be repossessed if you do not keep up repayments on your mortgage.
There may be a fee for mortgage advice. The actual amount you pay will depend upon your circumstances. The fee is up to 1% but a typical fee is 0.3% of the amount borrowed.
Similar Properties
Looking To Sell Or Let?
Rettie is one of the most trusted and well-respected names in property. Our unrivalled market knowledge helps people from around the world buy, sell, let and develop property in Scotland and the North East of England - from city apartments and rural cottages to large townhouses and prime country homes, farms and estates. We deal with some of the most prestigious properties on the market, but provide the same exceptional standards of service and value for money to all our clients.
