Flat E, 23 Skaterigg Gardens, Jordanhill, Glasgow, G13 1ST
Offers Over £225,000
First Floor Apartment
2 Bedrooms
1 Bathroom
1 Reception Room
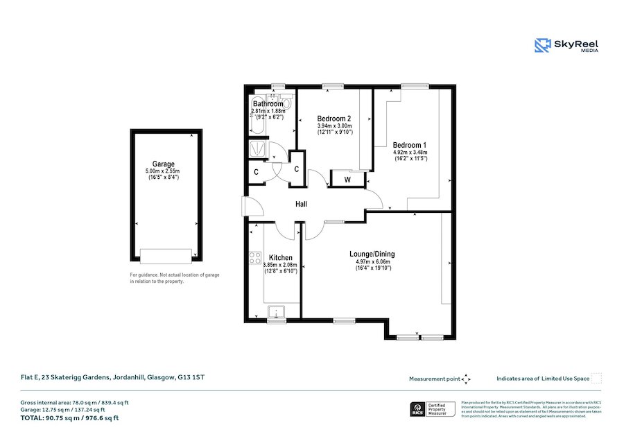
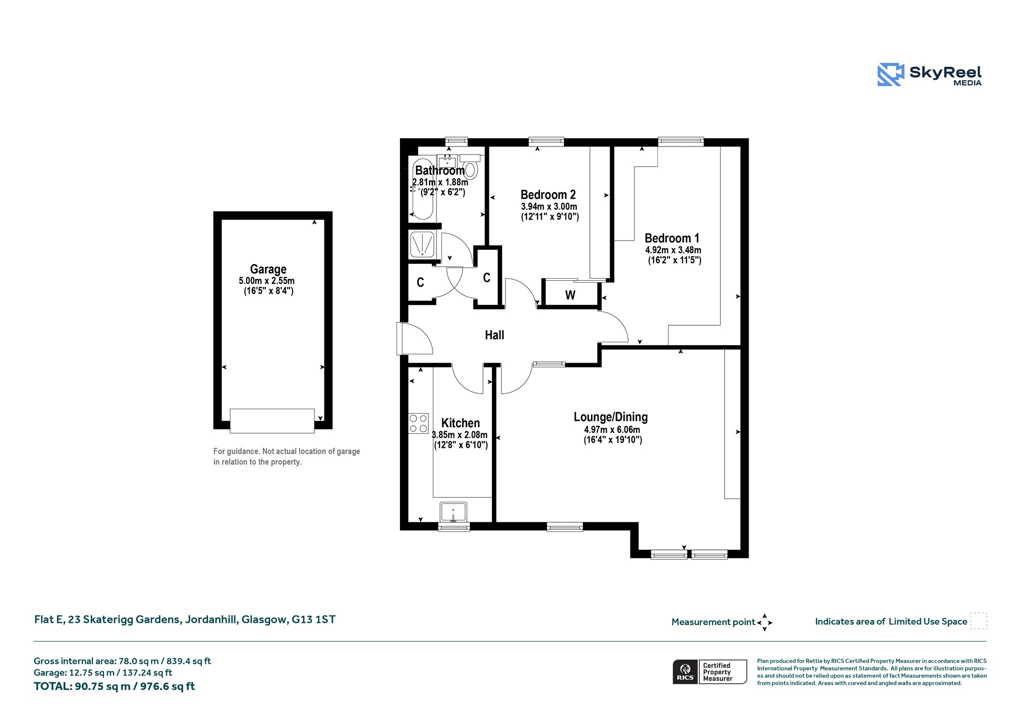
976 sq.ft
Property Description
Occupying a preferred first floor position within an attractive and well-maintained development built by Messrs Ambion Homes, this immaculately presented two-bedroom apartment offers an exciting opportunity to acquire a beautifully appointed home in the highly desirable Jordanhill district.
The property is presented in excellent order throughout and enjoys an abundance of natural light, creating a bright and welcoming ambience from the moment you step inside. The accommodation is generously proportioned and thoughtfully laid out, perfectly suited to both comfortable everyday living and stylish entertaining.
At the heart of the home is a superb main lounge/dining room – an expansive space with ample room for both lounge and dining furniture, ideal for hosting family and friends. The separate modern kitchen is well-appointed, featuring contemporary cabinetry and quality fittings, with excellent storage and workspace.
There are two generous double bedrooms, each offering comfortable accommodation and flexibility for use as a guest room or home office if required. The stylish four-piece bathroom is finished to a high standard, comprising a bath, separate shower enclosure, wash hand basin and WC, creating a luxurious and practical space. In addition, the apartment benefits from ample internal storage, ensuring a clutter-free living environment.
A particularly valuable feature of this property is the inclusion of a private single garage, providing secure parking and additional storage — a rare and highly sought-after asset in this location.
The property falls within the List One catchment area for Jordanhill School, widely regarded as one of Scotland’s highest performing state schools, adding significant appeal for families.
Jordanhill itself is one of Glasgow’s most prestigious and sought-after residential districts. The area offers an excellent selection of local amenities including independent shops, cafés and restaurants in nearby Hyndland and Broomhill, as well as larger supermarkets and retail facilities. There are excellent transport links with regular bus services and convenient rail connections providing easy access to Glasgow City Centre and beyond. For those who enjoy outdoor pursuits, the area benefits from attractive green spaces and leisure facilities, making it an ideal setting for a balanced and convenient lifestyle.
This is a rare opportunity to acquire a beautifully presented apartment in a prime Jordanhill address, combining generous accommodation, superb natural light, private garage and access to outstanding local schooling.
Accommodation:
- Security entry system
- Communal entrance hall
- Welcoming reception hall with two useful storage cupboards off
- Fabulous main lounge/dining room with two section window to the front and additional window to the front
- Impressive kitchen complete with a range of base and wall units, integrated appliances and window to the front
- Bedroom one with two section window to the rear, fitted wardrobes and fitted storage/dressing area
- Bedroom two with window to the rear and fitted wardrobes
- Modern four-piece bathroom comprising bath, separate shower enclosure, toilet and wash hand basin. Window to the rear
- Electric heating
- Double glazing
- Residents’ parking
- Well-tended communal garden grounds
More Details
Council Tax Band: F
EPC: B
Tenure: Freehold
Your home may be repossessed if you do not keep up repayments on your mortgage. There may be a fee for mortgage advice. The actual amount you pay will depend upon your circumstances.
Similar Properties
Looking To Sell Or Let?
Rettie is one of the most trusted and well-respected names in property. Our unrivalled market knowledge helps people from around the world buy, sell, let and develop property in Scotland and the North East of England - from city apartments and rural cottages to large townhouses and prime country homes, farms and estates. We deal with some of the most prestigious properties on the market, but provide the same exceptional standards of service and value for money to all our clients.
