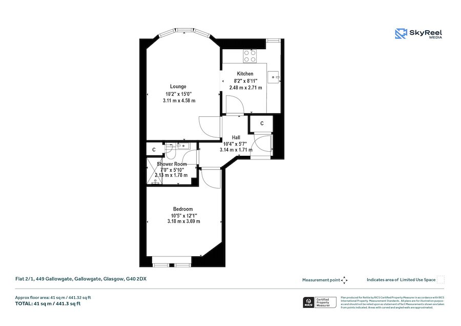
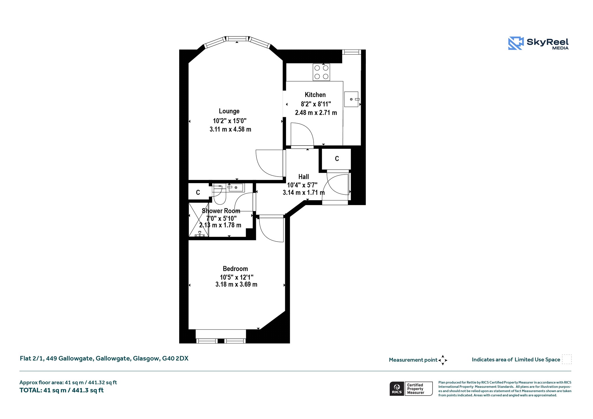
Flat 2/1, 449 Gallowgate, Gallowgate, Glasgow, G40 2DX
Property Description
Under offer at Closing Date - Tuesday 28th April 2026.
Situated at the epicentre of Glasgow’s exciting East End transformation, this lovely one bedroom apartment at 449 Gallowgate is poised a short distance from the creative energy of the Barras and the independent spirit of the Merchant City. Famous for its vibrant fusion of culture and recreation, and this stylish second floor home presents a brilliant opportunity to take advantage of one of the City’s most rapidly evolving neighbourhoods.
The highlight of the property is the bright front lounge that benefits from open outlooks, finished in deep contemporary tones and proportioned to accommodate both living and dining. The flow is effortless, leading directly into a modern, recently renovated kitchen featuring sleek cabinetry. The bedroom is quietly positioned to the rear of the building and is of double proportions, while the strikingly modern shower room has been recently upgraded with contemporary black fixtures and crisp subway tiling.
Perhaps the most unique feature of the home is the shared roof terrace. This elevated sanctuary provides a dynamic roofscape and breathtaking panoramic views across Glasgow, where you can trace the city’s skyline from the Glasgow Necropolis and the Cathedral to the various church spires that define the horizon.
The Gallowgate area is exceptionally well-connected, offering a short, scenic walk into the Merchant City and Glasgow City Centre. For those looking to enjoy local culture, the nearby BAaD (Barras Art and Design) and St Luke’s provide an eclectic mix of music and dining. Excellent transport links via nearby Bellgrove and High Street train stations ensure the rest of the city is within easy reach, making this an ideal base for urban professionals or those seeking a stylish East End retreat.
Accommodation
- Security entry system.
- Entrance hallway with integrated storage.
- Kitchen featuring modern dark-toned cabinetry, an overhead pulley, lending access to the living room.
- An inviting front-facing living area with three section window and space for dining.
- A well-proportioned double bedroom with twin windows and a peaceful outlook.
- Recently upgraded three-piece shower room including a walk-in shower with black profile screen, vanity storage, and contemporary finishes.
- An exceptional outdoor communal roof terrace space with breathtaking views of some of the city’s historic landmarks.
- Electric heating.
- On street parking.
More Details
EPC: D
Council Tax: A
Tenure: Freehold
Your home may be repossessed if you do not keep up repayments on your mortgage.
There may be a fee for mortgage advice. The actual amount you pay will depend upon your circumstances. The fee is up to 1% but a typical fee is 0.3% of the amount borrowed.
Similar Properties
Looking To Sell Or Let?
Rettie is one of the most trusted and well-respected names in property. Our unrivalled market knowledge helps people from around the world buy, sell, let and develop property in Scotland and the North East of England - from city apartments and rural cottages to large townhouses and prime country homes, farms and estates. We deal with some of the most prestigious properties on the market, but provide the same exceptional standards of service and value for money to all our clients.
