3/1, 9 Parkgrove Terrace, Kelvingrove, Glasgow, G3 7SD
Offers Over £249,000
Upper Floor Apartment
2 Bedrooms
1 Bathroom
1 Reception Room
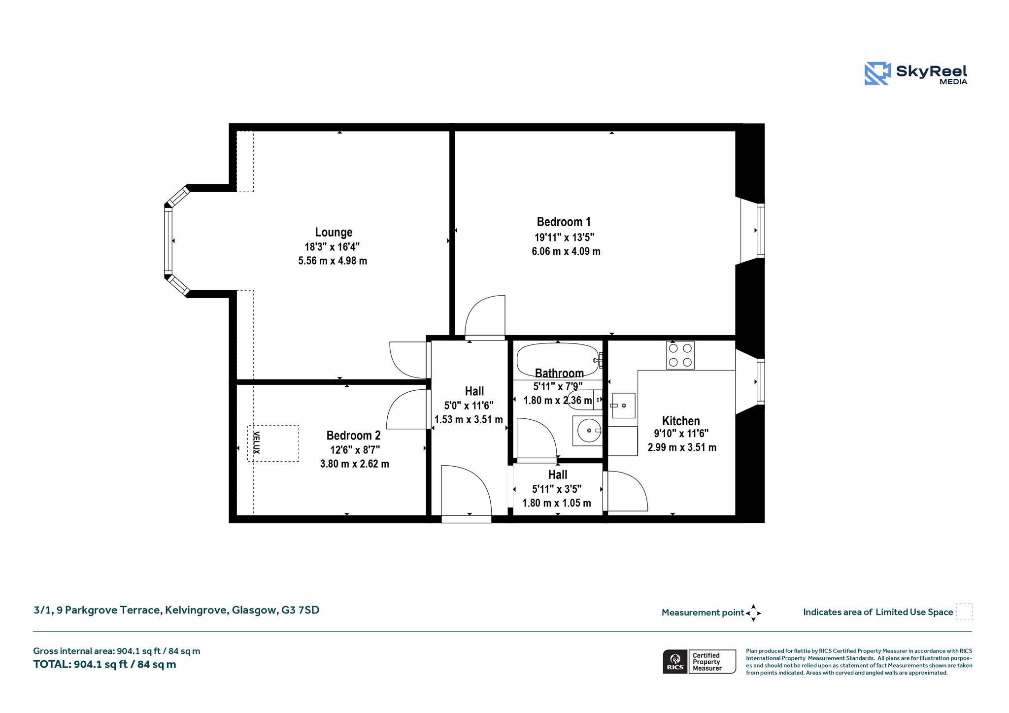
904 sq.ft
Communal Garden
On Street/Permit
Property Description
Unobstructed sweeping views of Kelvingrove Park are to be adored from the bay windowed lounge of this immaculate two bedroom top floor apartment. Parkgrove Terrace is a lesser known address, hidden behind the trees of Kelvingrove park and enviably positioned beside the entrance at the corner of Kelvingrove Street and Derby Street.
The apartment enjoys a wonderfully peaceful elevated position on the top floor, where the outlook to the front becomes the true centrepiece of the home. From the elegant three-section bay window, the eye is drawn across the uninterrupted greenery of Kelvingrove Park, with its mature trees, winding pathways and open lawns stretching away towards the striking terraces of the Park District beyond. It is a particularly captivating perspective that changes beautifully with the seasons and provides a sense of openness and calm rarely found so close to the city centre.
The accommodation is well balanced and thoughtfully arranged. The principal bedroom is particularly impressive in scale, offering a notably generous space that exceeds comparable properties. Throughout, the apartment is presented in excellent walk-in condition, creating a home that is immediately comfortable to occupy while also providing a practical and easily enjoyed layout for day-to-day living.
Despite this serene setting, the apartment is exceptionally well placed for everyday convenience and lifestyle. A short stroll leads into the heart of Finnieston, now widely regarded as one of Glasgow’s most fashionable districts, celebrated for its superb collection of restaurants, cafés, bars and independent eateries. Kelvingrove Park itself offers immediate access to scenic riverside walks, the Kelvingrove Art Gallery & Museum and the University of Glasgow, while excellent transport connections are nearby including Exhibition Centre Station, the Clydeside Expressway and the M8 motorway, ensuring swift access across the city and beyond.
Altogether, the property will be an ideal purchase for professionals seeking a stylish city home, while also offering an attractive and practical option for students or those connected to the nearby university.
Accommodation
- Secure communal entrance.
- Inviting reception hallway.
- Lovely lounge with three section bay window to the front, granting captivating panoramic views right across Kelvingrove Park and up towards the towering terraces of the Park area.
- Fitted kitchen with run of white base units and matching cabinetry, tiled splashback, window to the rear and space for casual dining.
- Principal bedroom is of very impressive proportions, with a double glazed window to the rear displaying charming views over to the rear of the old Kelvingrove Parish Church, formerly the Finnieston Free Church and now housing residences.
- Bedroom two is also a double bedroom, with a Velux window to the front.
- Three piece bathroom with shower over bath with fresh tiling and flooring in addition to toilet and wash hand basin with mirror.
- Availability of on street residents’ parking.
- Communal rear garden.
More Details
Council Tax: D
EPC: D
Tenure: Freehold
Your home may be repossessed if you do not keep up repayments on your mortgage.
There may be a fee for mortgage advice. The actual amount you pay will depend upon your circumstances. The fee is up to 1% but a typical fee is 0.3% of the amount borrowed.
Similar Properties
Looking To Sell Or Let?
Rettie is one of the most trusted and well-respected names in property. Our unrivalled market knowledge helps people from around the world buy, sell, let and develop property in Scotland and the North East of England - from city apartments and rural cottages to large townhouses and prime country homes, farms and estates. We deal with some of the most prestigious properties on the market, but provide the same exceptional standards of service and value for money to all our clients.
