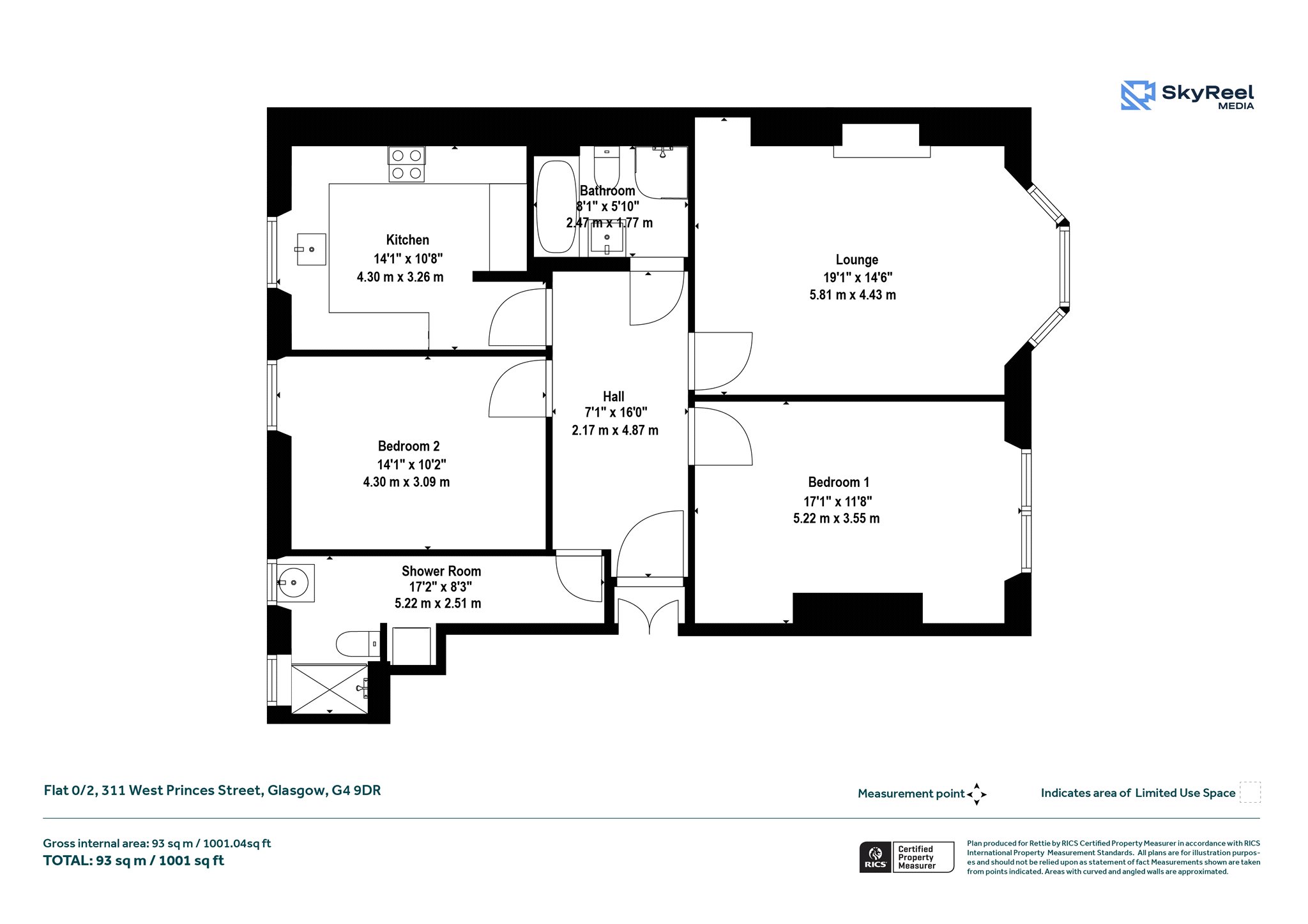
Flat 0/2, 311 West Princes Street, Woodlands, Glasgow, G4 9DR
Offers Over £245,000
Ground Floor Apartment
2 Bedrooms
2 Bathrooms
1 Reception Room
1,001 sq.ft
Private Garden
On Street/Permit
Property Description
A beautifully appointed two-bedroom ground floor tenement apartment, set within a handsome traditional blonde sandstone tenement on West Princes Street, offering stylish, upgraded accommodation alongside the rare benefit of a private front terrace.
This impressive apartment has been extensively improved and carefully refined by the current owners, resulting in a bright, contemporary interior that is presented in true walk-in condition. From the moment you step inside, it is immediately apparent that a great deal of thought and attention to detail has gone into the renovation—creating a home which is both highly functional and aesthetically pleasing. The property will appeal to a broad spectrum of buyers, from young professionals and couples to students and academics seeking to take full advantage of this vibrant West End location.
West Princes Street is perfectly placed for enjoying everything that Glasgow’s West End has to offer. A superb selection of cafés, bars, restaurants and independent retailers can be found within a short walk on Great Western Road, Woodlands Road and Gibson Street. The property is also ideally positioned for access to the University of Glasgow and The Glasgow School of Art, making it an excellent choice for those working or studying within the area. Kelvingrove Park is close at hand, offering beautiful green space, while excellent public transport links—including nearby subway stations and bus routes—provide easy access to the City Centre and beyond.
Internally, the accommodation is both spacious and of a high specification. The entrance hallway provides access to all principal apartments and includes useful storage. To the front, the bay-window living room is a bright and comfortable space, enhanced by high ceilings and attractive proportions—perfect for both relaxing and entertaining.
The kitchen has been re-fitted to an exceptional standard, featuring a full complement of integrated appliances, sleek cabinetry including double-height wall units, and high-quality design finishes that create a clean, modern aesthetic. Both bedrooms are generous king-sized rooms, offering excellent flexibility for a variety of living arrangements, with ample space for freestanding furniture, desks or additional storage.
The main bathroom is beautifully finished with a white four-piece suite, complemented by stylish grey tiling, a vanity unit and chrome heated towel rail. In addition, the property benefits from a separate cloakroom area which incorporates a further shower room—an extremely valuable feature, particularly for those sharing the apartment, allowing for a comfortable and practical day-to-day living arrangement.
Externally, the private front terrace provides a rare and highly desirable outdoor space—ideal for enjoying a morning coffee or unwinding in the evening.
Attributes
- Beautifully presented two-bedroom ground floor tenement apartment
- Private front terrace – a rare feature within the area
- Extensively upgraded and refurbished interior
- Bright bay-window living room with attractive proportions
- Stunning re-fitted kitchen with integrated appliances and high-quality finishes
- Two generous king-sized bedrooms with flexible use
- Stylish four-piece main bathroom with contemporary tiling and fittings
- Additional shower room/cloakroom – ideal for sharing
- Excellent storage within the hallway
- Gas central heating
- Secure entry to communal close
- Prime West End location close to cafés, restaurants and amenities
- Walking distance to University of Glasgow and Glasgow School of Art
- Easy access to Kelvingrove Park and public transport links
- Ideal for professionals, students and investors
More Details
Situation: Private Garden
Council Tax Band: D
Tenure: Freehold
Your home may be repossessed if you do not keep up repayments on your mortgage.
There may be a fee for mortgage advice. The actual amount you pay will depend upon your circumstances. The fee is up to 1% but a typical fee is 0.3% of the amount borrowed.
Similar Properties
Looking To Sell Or Let?
Rettie is one of the most trusted and well-respected names in property. Our unrivalled market knowledge helps people from around the world buy, sell, let and develop property in Scotland and the North East of England - from city apartments and rural cottages to large townhouses and prime country homes, farms and estates. We deal with some of the most prestigious properties on the market, but provide the same exceptional standards of service and value for money to all our clients.
