Knaresby, 6 Newton Avenue, Elderslie, Johnstone, PA5 9BB

Elderslie, Johnstone, PA5 9BB
Under Offer
Pin View on map

Offers Over £485,000

House

Detached House

Bed

4 Bedrooms

Bathroom

3 Bathrooms

Reception

4 Reception Rooms

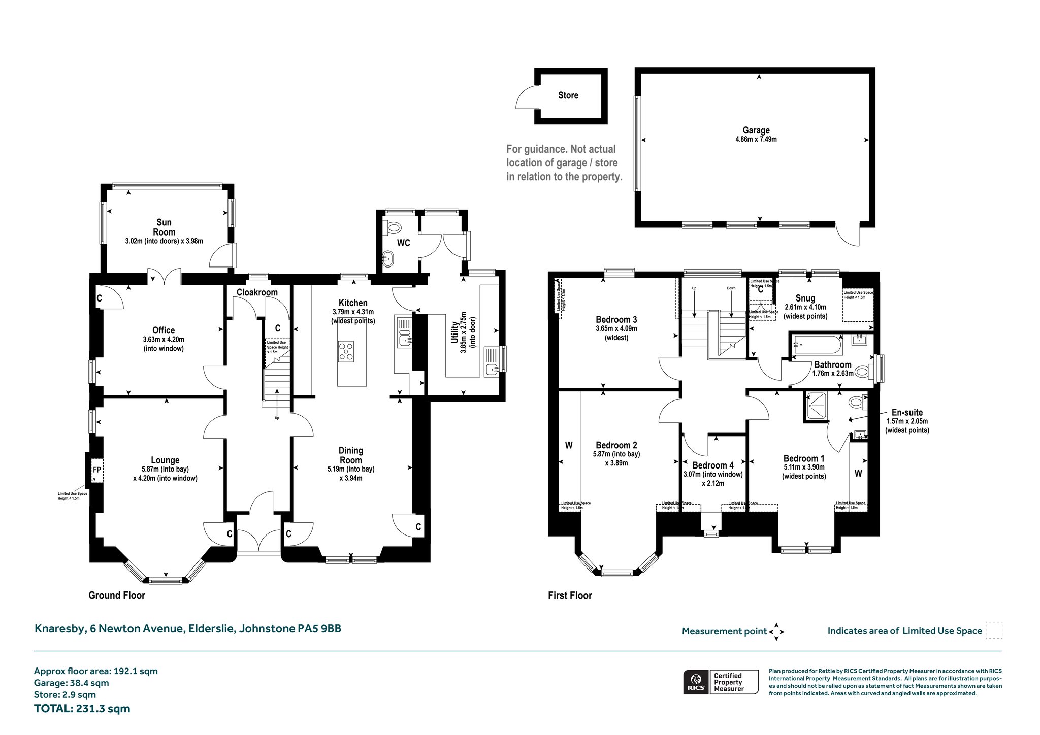
Size

2,195 sq.ft

Tree

Private Garden

Garage

Garage

Telephone

Property Description

CLOSING DATE THURSDAY 5TH FEBRUARY AT 12 NOON

Set upon one of Elderslie’s most sought-after addresses, Knaresby is a traditional detached villa built in 1905 and was owned by renowned Paisley Butcher and Fishmonger James Allison, our clients are only the third owners of this beautiful property.   The house has been fully modernised throughout and now presents an exceptional blend of period charm and contemporary luxury. Occupying a generous, mature plot, the home provides outstanding family accommodation with beautifully finished interiors and thoughtfully landscaped gardens.

The ground floor offers a wealth of versatile living space, beginning with the elegant formal lounge, where a striking bay window floods the room with natural light. Across the hall, the formal dining room provides the perfect setting for both family gatherings and entertaining. A stylish sitting room extends seamlessly into the sun room, creating a bright and welcoming space overlooking the landscaped rear garden. To the rear of the property, a superb dining kitchen — fitted with modern cabinetry and premium work surfaces and quality integrated appliances — serves as the heart of the home. From here, access is provided to a practical utility room and a contemporary WC.

The upper level hosts four bedrooms, with the principal bedroom enhanced by fitted storage. A three-piece shower room services the bedrooms, while a flexible box room provides the ideal home office, nursery or walk-in wardrobe, depending on lifestyle requirements.

Every detail of this home has been considered, with the modernisation extending to upgraded gas central heating, double glazing and an CCTV system, ensuring comfort and peace of mind.

Externally, the property sits within impressive garden grounds, carefully maintained and landscaped to create an oasis of greenery and privacy. The sweeping driveway offers substantial off-street parking, while a detached garage to the rear adds further convenience.

Elderslie provides both primary and secondary schools, reliable public transport, and convenient local shopping at the Phoenix Retail Park. The surrounding countryside offers a variety of sports and leisure opportunities, including fishing, golf, and equestrian activities. Residents also benefit from easy access to the Braehead Shopping Centre and the M8 motorway, which connects to major towns and cities across Scotland’s central belt, as well as Glasgow International Airport.

Freehold

More Details

Situation: Private Garden
Council Tax Band: F
Tenure: Freehold

Contact Us

Alison Anderson

Alison Anderson

Associate Director
Roland Brownlee

Roland Brownlee

Mortgage & Protection Advisor
Mortgage Calculator
Monthly payments
Please set an interest rate.

Your home may be repossessed if you do not keep up repayments on your mortgage. There may be a fee for mortgage advice. The actual amount you pay will depend upon your circumstances.

Tax Calculator
LBTT calculator for properties purchased in Scotland. Stamp Duty calculator for properties purchased in England.
Land & buildings transaction tax (LBTT)
= £0
New build house with stone and timber cladding

Looking To Sell Or Let?

Rettie is one of the most trusted and well-respected names in property. Our unrivalled market knowledge helps people from around the world buy, sell, let and develop property in Scotland and the North East of England - from city apartments and rural cottages to large townhouses and prime country homes, farms and estates. We deal with some of the most prestigious properties on the market, but provide the same exceptional standards of service and value for money to all our clients.