Park View House, 560 Clarkston Road, Netherlee, Glasgow, G44 3RT
Property Description
Rear Parking Available
Park View House is an exceptional, double-fronted sandstone villa set within one of Netherlee’s most prestigious addresses. This unique end-terrace home combines striking period character with impressive proportions, bay window frontage, and a highly flexible layout arranged over three expansive levels—offering five double bedrooms and a host of beautifully preserved original features.
Lovingly maintained by its current owners, this outstanding family residence offers a scale and style rarely available on the open market.
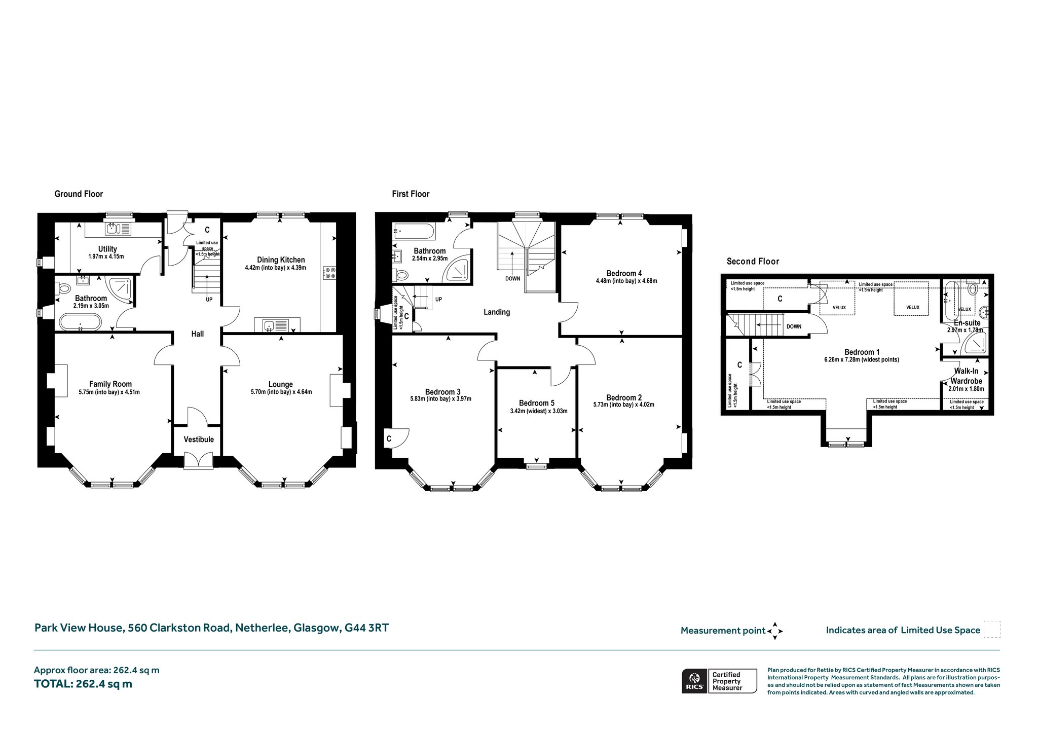
Ground Floor
A welcoming vestibule opens into a grand reception hallway, showcasing original woodwork and an elegant staircase. To the front, two spacious bay-windowed rooms—currently used as a formal lounge and family room—feature decorative fireplaces, high ceilings, and ornate detailing.
To the rear, a formal dining room overlooks the mature garden, while the generous dining kitchen is well-equipped with a range of wall and base units, integrated appliances, and ample space for informal dining and entertaining.
A stylish ground floor bathroom with freestanding bath and a separate utility room with excellent built-in storage complete the ground level.
First Floor
The bright, spacious landing leads to three double bedrooms—two of which feature bay windows with open aspects across the leafy expanse of Linn Park. The fourth bedroom is currently configured as an excellent home office or study. A modern three-piece family bathroom completes this level with tasteful contemporary fittings.
Second Floor
The top floor is home to a luxurious principal suite, complete with Velux windows, a generous walk-in wardrobe, a contemporary en-suite shower room, and a relaxing seating area—an ideal private retreat within the home.
Exterior & Grounds
Set within substantial and private garden grounds to both the front and rear, the property enjoys mature planting, expansive lawns, and a mono-block patio and path. The rear garden offers a peaceful and secluded setting, bordered by established trees and shrubs. A particularly rare benefit is rear access parking, providing both convenience and privacy.
Location
Netherlee is one of East Renfrewshire’s most sought-after residential suburbs, highly regarded for its outstanding schools, strong community atmosphere, and excellent local amenities. Residents enjoy a wide selection of independent shops, cafés, and restaurants, as well as easy access to sports facilities, health clubs, golf courses, and scenic parks. The area also benefits from excellent transport links, with convenient road and rail connections to Glasgow City Centre and beyond.
Freehold
More Details
Situation: Private Garden
Council Tax Band: G
Tenure: Freehold
Your home may be repossessed if you do not keep up repayments on your mortgage. There may be a fee for mortgage advice. The actual amount you pay will depend upon your circumstances.
Similar Properties
Looking To Sell Or Let?
Rettie is one of the most trusted and well-respected names in property. Our unrivalled market knowledge helps people from around the world buy, sell, let and develop property in Scotland and the North East of England - from city apartments and rural cottages to large townhouses and prime country homes, farms and estates. We deal with some of the most prestigious properties on the market, but provide the same exceptional standards of service and value for money to all our clients.
