Robin Hill, Hazelden Road, Newton Mearns, Glasgow, East Renfrewshire, G77 6RR
Offers Over £1,250,000
Detached House
7 Bedrooms
8 Bathrooms
6 Reception Rooms
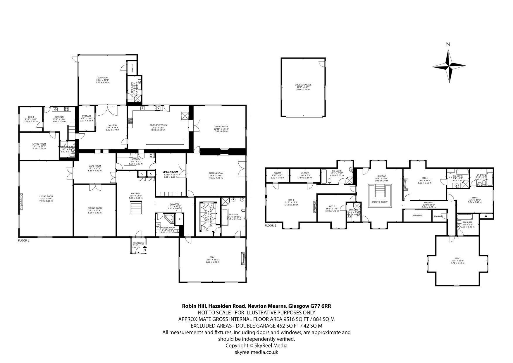
7,868 sq.ft
Private Garden
Property Description
‘Robin Hill’ represents a truly remarkable family residence set amidst the rolling countryside on the edge of Glasgow City. Framed by acres of manicured gardens and formal grounds, the property blends the serenity of a rural retreat with the convenience of city proximity - a rare opportunity to acquire a home of scale, elegance, and flexibility within such a peaceful yet accessible setting.
From the moment you approach through the secure electric entrance gates, a sense of privacy and prestige is immediately evident. Mature landscaping envelopes the sweeping monobloc driveway, which leads past manicured borders to an extensive parking area and the double garage, establishing an impressive introduction to this substantial home.
A welcoming entrance vestibule opens into a breathtaking galleried reception hallway, where a grand central staircase sets the tone for the home’s spacious, light-filled interior. The ground floor accommodation unfolds with a natural flow - a series of beautifully proportioned public rooms designed for both relaxed family living and refined entertaining. The formal drawing room is a statement of sophistication, with multi-aspect windows capturing the surrounding gardens and countryside, while intricate cornicing and a feature fireplace add to its timeless charm.
At the heart of the property lies a magnificent family kitchen and dining area. Perfectly appointed with an extensive range of bespoke cabinetry and high-quality integrated appliances, the kitchen provides a wonderful space for everyday family life. An adjoining utility room ensures excellent practicality, while direct access to the gardens enhances the sense of openness and connection to the outdoors. The principal bedroom suite on this level offers a serene sanctuary - a spacious and beautifully appointed room enjoying tranquil garden views. A generous dressing room and a luxurious five-piece en-suite bathroom, complete with spa bath and separate shower, complete the suite to a notably high standard.
Elsewhere, the ground floor accommodates a games room, ideal for family recreation, and an impressive conservatory-style gymnasium, equipped with a sauna, steam room, and shower facilities - the perfect retreat for health and relaxation at home. A further fantastic feature of this fine home is a self contained guest annex, providing independent living accommodation with its own lounge, bedroom, kitchen, and shower room. This flexible space is perfectly suited for guests, extended family, or live-in support, offering privacy and comfort without compromise.
Ascending the grand staircase, the upper landing forms the heart of the first floor - bright, spacious, and elegantly proportioned. From here, access is provided to five generous double bedrooms, each complete with its own en-suite bathroom. Every bedroom has been designed to maximise comfort and light, while extensive built-in storage throughout the upper floor underscores the home’s excellent practicality and thoughtful design.
The gardens and surrounding grounds of ‘Robin Hill’ are a defining feature of this property - meticulously maintained and beautifully landscaped to create a setting of rare tranquillity. Sweeping lawns are interspersed with mature specimen trees, flowering shrubs, and well-tended borders, creating colour and interest throughout the seasons. A feature sun deck offers the perfect space for outdoor dining and entertaining, while a series of intimate seating areas provide private vantage points from which to enjoy the peaceful rural backdrop.
To the side of the property lies a fully enclosed paddock, ideal for equestrian or hobby use, adding to the versatility and country appeal of this outstanding home.
‘Robin Hill’ is a home that masterfully balances scale, luxury, and comfort. With its blend of formal elegance and contemporary functionality, it offers a rare opportunity for families seeking space, privacy, and connection to nature - all within easy reach of Glasgow’s amenities, East Renfrewshire schools, and transport links. Every aspect of this property - from its grand architectural presence to its intimate, carefully curated interiors - reflects a home designed to be lived in and loved for generations.
Freehold
More Details
Situation: Private Garden
Council Tax Band: H
Tenure: Freehold
Your home may be repossessed if you do not keep up repayments on your mortgage. There may be a fee for mortgage advice. The actual amount you pay will depend upon your circumstances.
Similar Properties
Looking To Sell Or Let?
Rettie is one of the most trusted and well-respected names in property. Our unrivalled market knowledge helps people from around the world buy, sell, let and develop property in Scotland and the North East of England - from city apartments and rural cottages to large townhouses and prime country homes, farms and estates. We deal with some of the most prestigious properties on the market, but provide the same exceptional standards of service and value for money to all our clients.
