8 Invergarry Grove, Thornliebank, Glasgow, G46 8UE

Thornliebank, Glasgow, G46 8UE
Under Offer
Pin View on map

Offers Over £295,000

House

Semi Detached House

Bed

3 Bedrooms

Bathroom

2 Bathrooms

Reception

3 Reception Rooms

Tree

Private Garden

Garage

Garage

Telephone

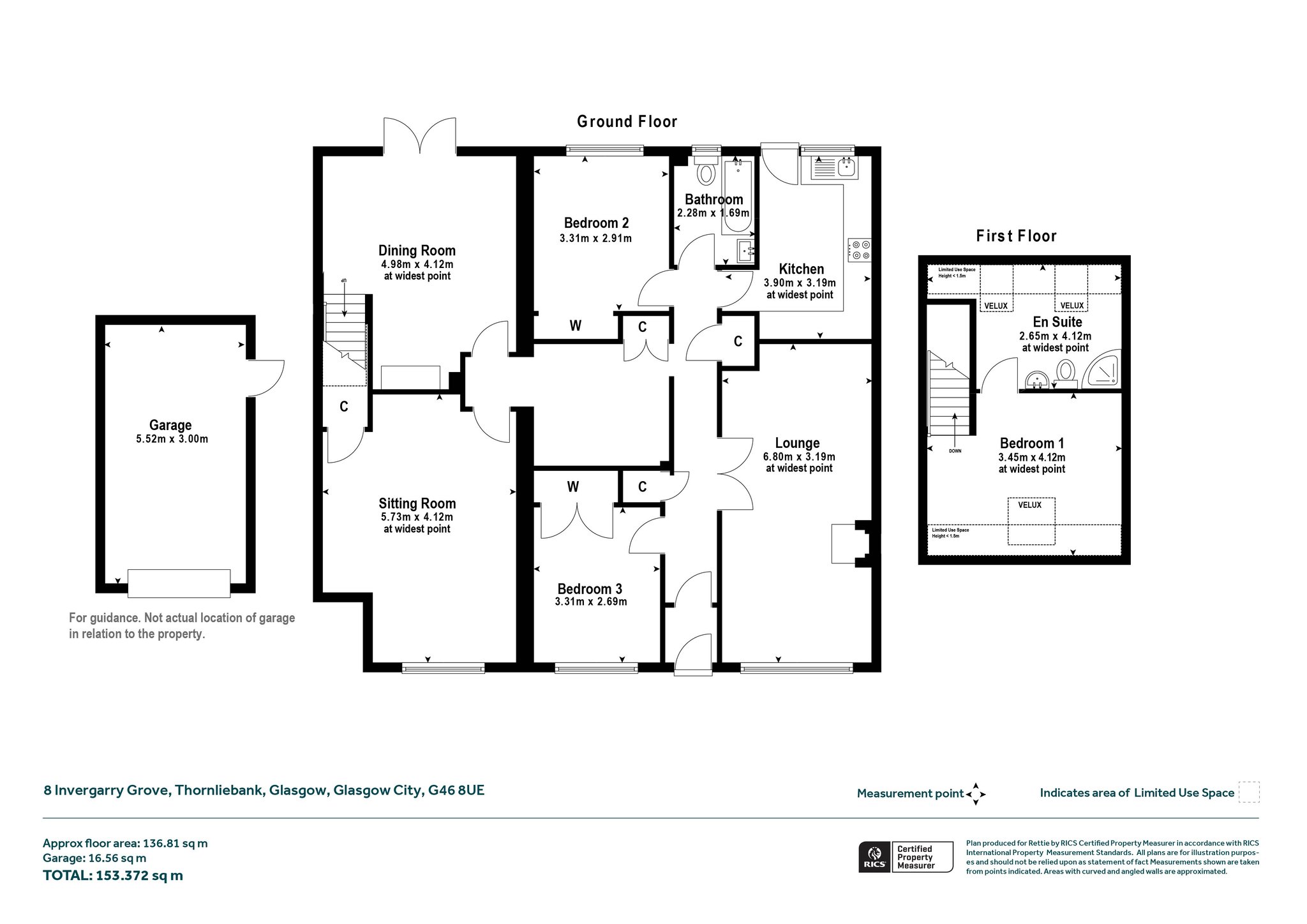
Property Description

Nestled within the peaceful residential enclave of Invergarry Grove, near the renowned David Lloyd Rouken Glen, this deceptively spacious three-bedroom semi-detached home is a rare find. With generous accommodation and beautifully maintained gardens.

Upon entry, a welcoming hallway leads into a lounge, highlighted by a central fireplace and ample space for relaxing or entertaining. A second sitting room enjoys pleasant views over the front garden. The separate formal dining room, complete with French doors opening to the garden, also houses the staircase to the upper level, adding charm and character to the space. The well-equipped kitchen features a range of wall-mounted and floor-standing units and direct access to the rear garden - ideal for al fresco dining. Also on this level are two double bedrooms, each with built-in wardrobes, and a family bathroom with a three-piece suite.

Upstairs, the principal bedroom provides a private and peaceful sanctuary, boasting Velux windows that flood the space with natural light, built-in storage, and an en suite shower room.

Externally, the property offers a detached garage and a private driveway, ensuring convenient off-street parking. The attractive front and rear gardens offer superb outdoor space. Located within a well-established and quiet cul-de-sac, this home benefits from close proximity to a host of local amenities. These include the adjacent David Lloyd Leisure Club, Rouken Glen Park, and local golf courses. Excellent public transport links and easy access to the M77 motorway provide seamless connectivity to Glasgow City Centre and beyond.

More Details

Council Tax: E
EPC: D
Tenure: Freehold

Contact Us

Erica McFarlane

Erica McFarlane

Senior Sales Negotiator
Roland Brownlee

Roland Brownlee

Mortgage & Protection Advisor
Mortgage Calculator
Monthly payments
Please set an interest rate.

Your home may be repossessed if you do not keep up repayments on your mortgage. There may be a fee for mortgage advice. The actual amount you pay will depend upon your circumstances.

Tax Calculator
LBTT calculator for properties purchased in Scotland. Stamp Duty calculator for properties purchased in England.
Land & buildings transaction tax (LBTT)
= £0
New build house with stone and timber cladding

Looking To Sell Or Let?

Rettie is one of the most trusted and well-respected names in property. Our unrivalled market knowledge helps people from around the world buy, sell, let and develop property in Scotland and the North East of England - from city apartments and rural cottages to large townhouses and prime country homes, farms and estates. We deal with some of the most prestigious properties on the market, but provide the same exceptional standards of service and value for money to all our clients.