335 Albert Drive, Pollokshields, Glasgow, G41 5HJ
Property Description
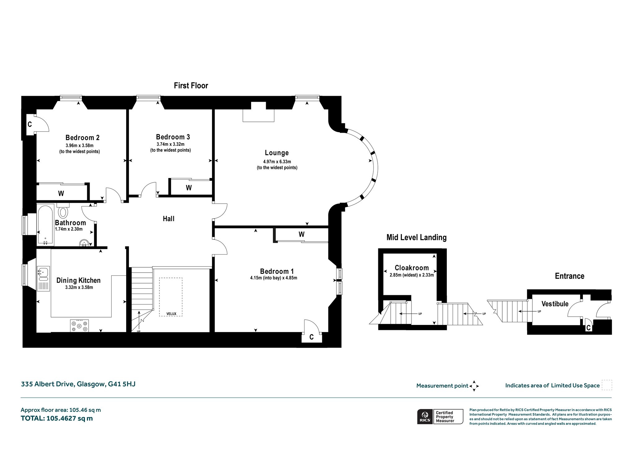
Albert Drive is a wonderfully spacious, three bedroom upper conversion, nestled in this tree-lined pocket of Pollokshields. This beautiful property offers generous accommodation in the form of four principal apartments, with a modern, dining sized kitchen.
Externally, the property is approached via a communal driveway with shared parking to the front. To the rear, there is a generous, level private garden featuring a sun house and two useful sheds, offering both relaxation and storage space. Early viewing is highly recommended for this sought-after address.
The accommodation comprises a generous entrance vestibule, leading up to a welcoming reception hallway, beautifully lit by a traditional Victorian skylight. The stunning formal sitting room features dual-aspect windows, including a large bay window, offering lovely views along Albert Drive. There are three bedrooms: a spacious principal bedroom with views to Albert Drive, and two further bedrooms, both enjoying aspects over the side garden. The modern, dining-sized kitchen is well-appointed with a good range of floor and wall-mounted units, and enjoys peaceful views over the rear garden. Completing the accommodation is a stylish three-piece family bathroom with shower over the bath.
The property also benefits from gas central heating, sash and case windows, cornicing and traditional doors and deep skirtings.
Pollokshields is one of the most sought-after areas in the West of Scotland, renowned for its outstanding blend of amenities and excellent transport links. The area offers an impressive selection of restaurants, bars, and cafés, both within Pollokshields itself and in the nearby neighbourhoods of Strathbungo and Shawlands. Nearby green spaces include Maxwell Park, Queen’s Park, and Pollok Country Park, home to the renowned Burrell Collection.
There are excellent transport links, with three mainline train stations within walking distance — Pollokshields West, Pollokshields East, and Maxwell Park — as well as Shields Road Underground. Glasgow City Centre is less than one stop away, offering a wealth of retail options including House of Fraser, John Lewis, and a wide range of high street brands. Silverburn Shopping Centre is just 3.6 miles away, approximately a 20-minute drive. A range of respected private schools and nurseries are also nearby, including Hutchesons’ Grammar and Glasgow Academy Prep School.
More Details
Situation: Private Garden
Council Tax Band: F
Tenure: Freehold
Your home may be repossessed if you do not keep up repayments on your mortgage.
There may be a fee for mortgage advice. The actual amount you pay will depend upon your circumstances. The fee is up to 1% but a typical fee is 0.3% of the amount borrowed.
Similar Properties
Looking To Sell Or Let?
Rettie is one of the most trusted and well-respected names in property. Our unrivalled market knowledge helps people from around the world buy, sell, let and develop property in Scotland and the North East of England - from city apartments and rural cottages to large townhouses and prime country homes, farms and estates. We deal with some of the most prestigious properties on the market, but provide the same exceptional standards of service and value for money to all our clients.
