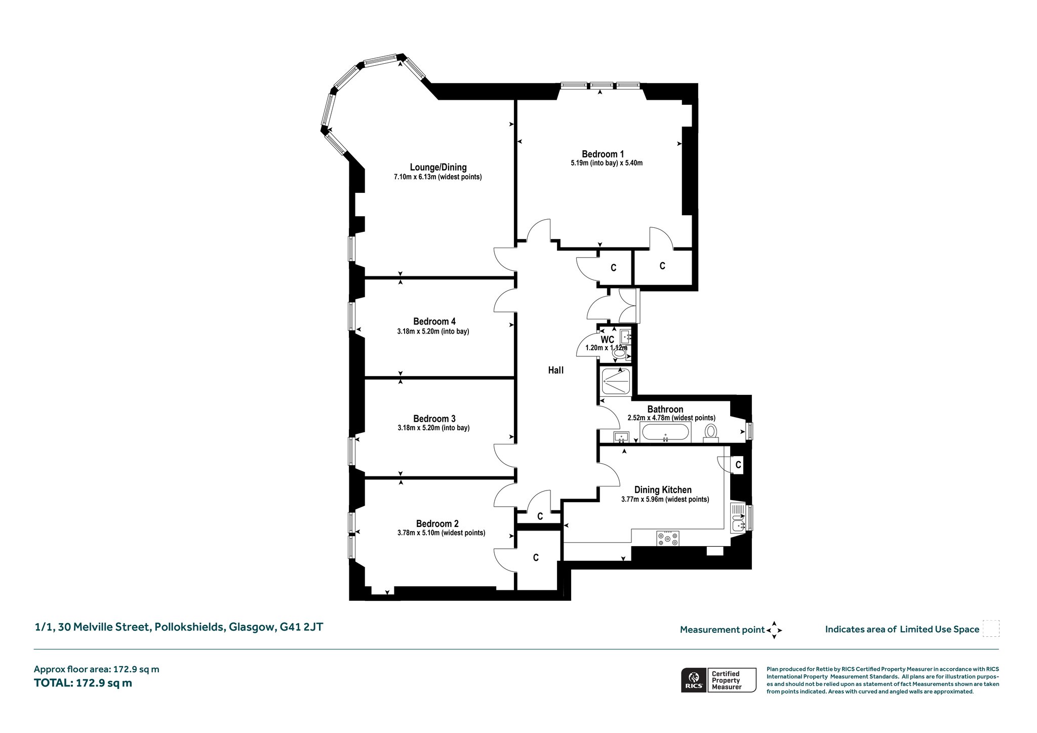
1/1, 30 Melville Street, Pollokshields, G41 2JT

Pollokshields, G41 2JT
Sold
Pin View on map

Offers Over £340,000

House

First Floor Apartment

Bed

4 Bedrooms

Bathroom

2 Bathrooms

Reception

1 Reception Room

Tree

Communal Garden

Parking

On Street/Permit

Telephone

Property Description

An impressive first-floor apartment set within a traditional blonde sandstone tenement on tree-lined Melville Street, in the ever-popular area of Pollokshields.

Accessed via a secure door entry system into a tidy and well-kept communal close, the property offers a fantastic amount of flexible living space, full of character and period detail.

Internally, the accommodation comprises a broad and welcoming reception hallway with two useful storage cupboards, a bright and spacious bay-windowed lounge/dining room, and four well-proportioned double bedrooms. The main bedroom is particularly spacious, featuring large front-facing windows that allow for plenty of natural light, along with the added benefit of built-in storage.

A generous dining kitchen sits to the rear of the property, offering good workspace, ample storage, and plenty of room for a large dining table. The layout is completed by a three-piece bathroom and a separate WC — both well-presented and practical.

This home retains many original features, including intricate cornicing and sash-style windows, and also benefits from gas central heating and double glazing.

Melville Street offers a peaceful setting yet is just a short walk from a fantastic range of local amenities. Popular cafés and restaurants are close by, with further options nearby at Strathbungo. The area is well served by transport links, including Pollokshields East and West train stations, making commuting into the city straightforward.

More Details

Situation: Communal Garden
Council Tax Band: E
Tenure: Freehold

Contact Us

Alice Beedham

Alice Beedham

Sales Negotiator
Claire Black CIOBS

Claire Black CIOBS

Mortgage & Protection Advisor
Mortgage Calculator
Monthly payments
Please set an interest rate.

Your home may be repossessed if you do not keep up repayments on your mortgage. There may be a fee for mortgage advice. The actual amount you pay will depend upon your circumstances.

Tax Calculator
LBTT calculator for properties purchased in Scotland. Stamp Duty calculator for properties purchased in England.
Land & buildings transaction tax (LBTT)
= £0
New build house with stone and timber cladding

Looking To Sell Or Let?

Rettie is one of the most trusted and well-respected names in property. Our unrivalled market knowledge helps people from around the world buy, sell, let and develop property in Scotland and the North East of England - from city apartments and rural cottages to large townhouses and prime country homes, farms and estates. We deal with some of the most prestigious properties on the market, but provide the same exceptional standards of service and value for money to all our clients.