2/2, 16 Keir Street, Pollokshields, Glasgow, G41 2NW
Property Description
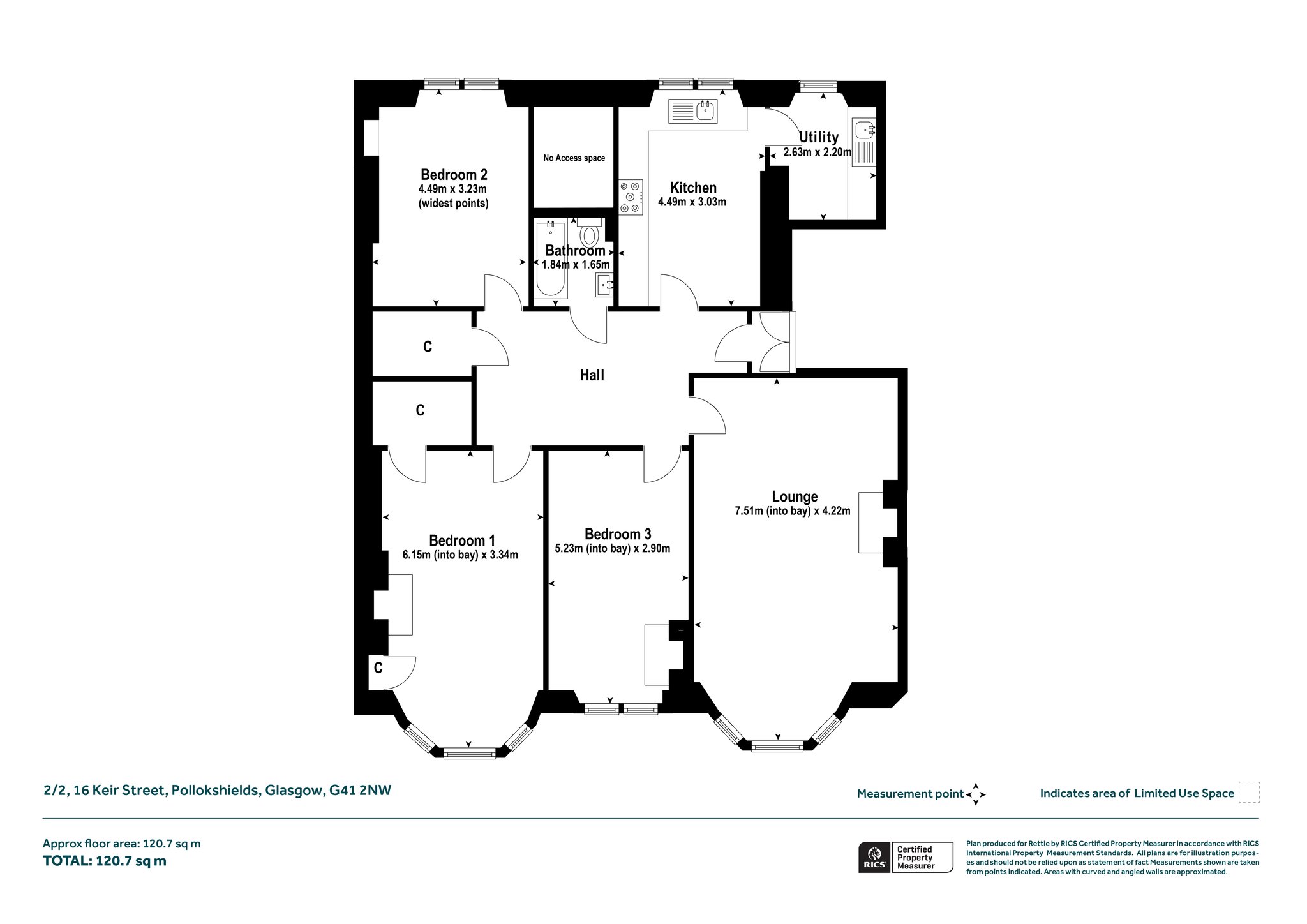
Keir Street is a spacious, 3-bedroom flat, presented throughout with tasteful décor, skilfully blending modern and traditional features. Internally, this is an extremely spacious and well-appointed three-bedroom apartment benefiting from a utility room off the dining kitchen (what would have been the Maid’s room originally).
In brief, accommodation extends to; large reception hallway, 3-piece bathroom complete with bath (shower over). There are three large double bedrooms, spacious bay windowed sitting room and a traditional dining sized kitchen. The kitchen is fitted with handmade floor and wall mounted wood units and solid oak worktops. There is also sufficient space for a family dining table.
The home benefits from Gas Central Heating and beautiful original period features including deep skirting, original feature fireplaces, cornicing ceiling rose, and original butler’s bells.
The flat is situated within a handsome blonde sandstone tenement at the foot of Keir Street, adjacent to Maxwell Road. The building benefits from a fully enclosed residents’ garden to the rear that is predominantly laid to lawn with separate area for refuse stores.
This property is located in the popular Glasgow district of Pollokshields, on the Southside of the city. This area is known for the superb selection of local amenity such as retail shops, restaurants, boutiques, cafes and bars. As such, this fantastic apartment is certain to appeal to a broad sector of the market including growing families, parents buying for students and young professionals who wish to fully immerse themself into inner city apartment life with the option of nearby parkland. A variety of public transport services are also readily available with multiple bus routes, train and underground services less than 10-minute walk away.
More Details
Situation: Communal Garden
Council Tax Band: D
Tenure: Freehold
Your home may be repossessed if you do not keep up repayments on your mortgage. There may be a fee for mortgage advice. The actual amount you pay will depend upon your circumstances.
Similar Properties
Looking To Sell Or Let?
Rettie is one of the most trusted and well-respected names in property. Our unrivalled market knowledge helps people from around the world buy, sell, let and develop property in Scotland and the North East of England - from city apartments and rural cottages to large townhouses and prime country homes, farms and estates. We deal with some of the most prestigious properties on the market, but provide the same exceptional standards of service and value for money to all our clients.
