Flat 3/1, 3 Strathyre Street, Shawlands, Glasgow, G41 3LL
Property Description
A gorgeous top floor, one bedroomed flat positioned in the heart of Shawlands.
This red sandstone tenement building is accessed via secure door entry system into a well-kept communal close and stairwell.
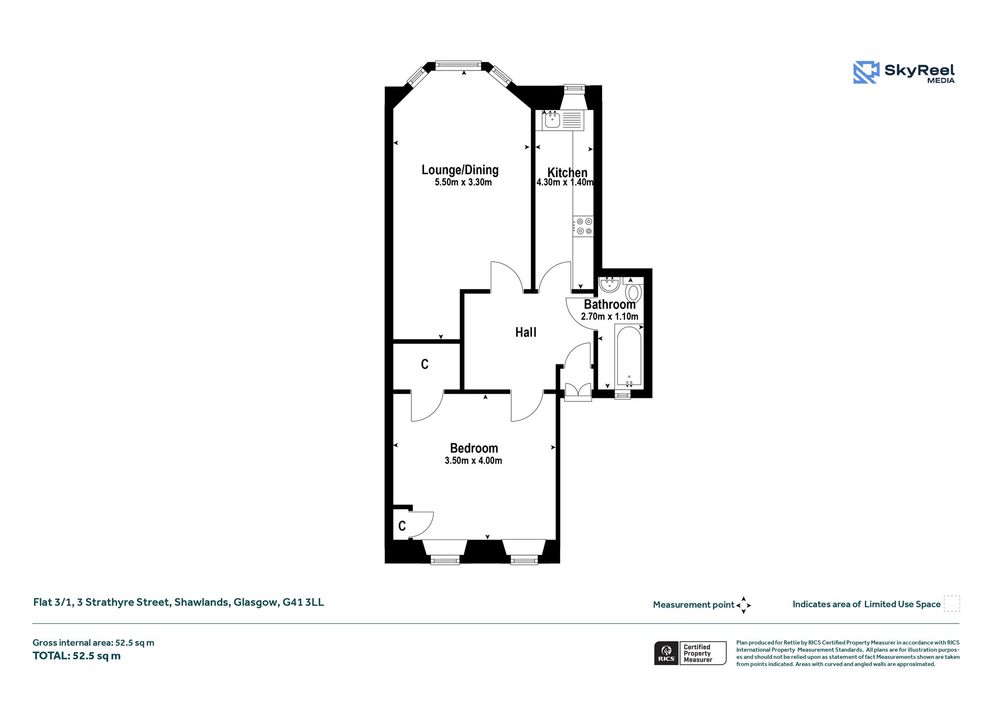
The accommodation of the flat itself comprises of welcoming reception hallway, beautiful bay windowed lounge with feature fireplace and dining recess, kitchen with a range of base and wall mounted units and tiled splashback, double sized bedroom and tiled bathroom with white three piece suite and over bath shower.
The property also benefits from double glazing, gas central heating, high quality floor coverings and a modern, contemporary decor throughout.
Situated in the heart of Shawlands, this property is ideally placed for the area’s renowned selection of cafes, bars, independent shops, and restaurants, as well as excellent public transport links providing swift access to Glasgow city centre and beyond.
More Details
Situation: Communal Garden
Council Tax Band: D
Tenure: Freehold
Your home may be repossessed if you do not keep up repayments on your mortgage.
There may be a fee for mortgage advice. The actual amount you pay will depend upon your circumstances. The fee is up to 1% but a typical fee is 0.3% of the amount borrowed.
Similar Properties
Looking To Sell Or Let?
Rettie is one of the most trusted and well-respected names in property. Our unrivalled market knowledge helps people from around the world buy, sell, let and develop property in Scotland and the North East of England - from city apartments and rural cottages to large townhouses and prime country homes, farms and estates. We deal with some of the most prestigious properties on the market, but provide the same exceptional standards of service and value for money to all our clients.
