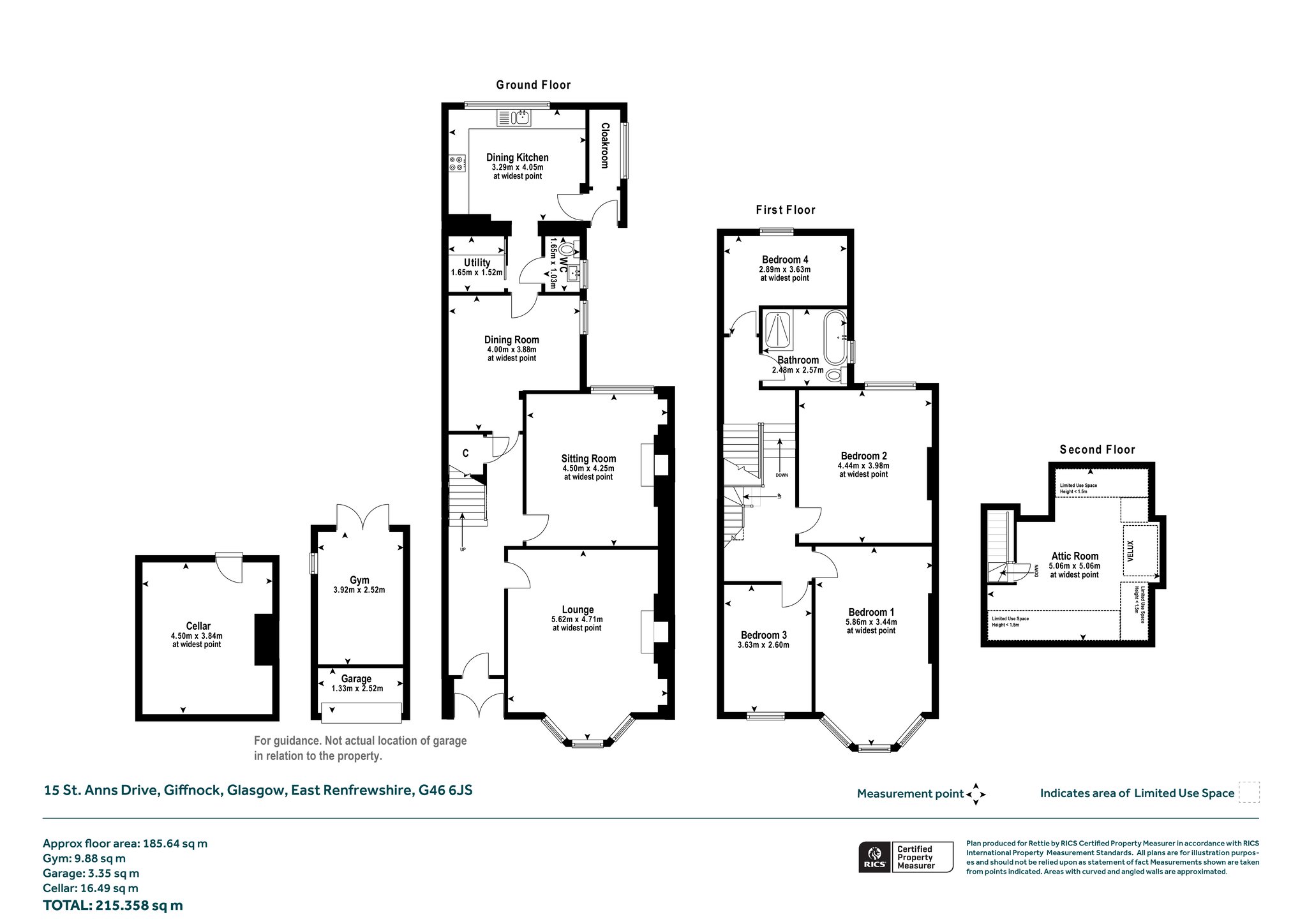
15 St. Anns Drive, Giffnock, Glasgow, East Renfrewshire, G46 6JS
Property Description
Located in the heart of highly sought-after Giffnock and just a short walk from the vibrant amenities of Fenwick Road, this beautifully presented four-bedroom semi-detached sandstone villa offers a rare opportunity to acquire an exceptional family home. Blending period character with contemporary upgrades, the property provides flexible and generous accommodation throughout—perfectly positioned within the catchment for East Renfrewshire’s most acclaimed schools.
A welcoming entrance vestibule leads into a striking tiled reception hallway with understair storage and a sweeping staircase to the upper level. To the front, the elegant bay-windowed lounge is enhanced by an original fireplace and intricate ceiling cornicing. To the rear, a bright and spacious family room offers peaceful garden views. The stylish dining/morning room flows into a well-appointed kitchen, fitted with a range of wall and base units, complementary worktops, and ample space for a breakfast table. A guest WC, cloakroom, and separate utility room complete the ground floor.
Upstairs, a broad landing provides access to four well-proportioned bedrooms. The bay-windowed principal bedroom enjoys open outlooks over St Ann’s, while two additional double bedrooms and a fourth room—ideal as a study or nursery—overlook the rear garden. A luxurious family bathroom features a roll-top bath, walk-in shower, and high-end fittings throughout.
A fixed staircase leads to a fully floored and lined attic, providing excellent storage and future development potential (subject to planning consent). Additional benefits include gas central heating and double glazing.
Externally, the monoblocked driveway offers off-street parking and leads to a detached garage, partially converted to create a flexible studio space with French doors, while still retaining front storage. The generous rear garden is mostly laid to lawn with a decked terrace—ideal for al fresco dining and entertaining.
About Giffnock
Giffnock is one of Glasgow’s most desirable suburban neighbourhoods, renowned for its strong sense of community, tree-lined avenues, and excellent local amenities. Fenwick Road, the area’s bustling hub, offers a range of independent cafés, restaurants, shops, and services. Giffnock also benefits from superb transport links, including nearby train stations and major road routes, providing convenient access to Glasgow city centre and beyond. The area is especially popular with families, thanks to its proximity to top-performing schools and beautiful parks such as Rouken Glen.
This outstanding home combines timeless charm, modern comfort, and prime location—early viewing is highly recommended to appreciate the quality and lifestyle on offer.
Freehold
EPC D
More Details
Situation: Private Garden
Council Tax Band: G
Tenure: Freehold
Your home may be repossessed if you do not keep up repayments on your mortgage. There may be a fee for mortgage advice. The actual amount you pay will depend upon your circumstances.
Similar Properties
Looking To Sell Or Let?
Rettie is one of the most trusted and well-respected names in property. Our unrivalled market knowledge helps people from around the world buy, sell, let and develop property in Scotland and the North East of England - from city apartments and rural cottages to large townhouses and prime country homes, farms and estates. We deal with some of the most prestigious properties on the market, but provide the same exceptional standards of service and value for money to all our clients.
