16 Eddington Drive, Newton Mearns, Glasgow, G77 5AX
Property Description
Rettie are delighted to present this exceptional five-bedroom detached bungalow, set within a peaceful and prestigious location just off Ayr Road
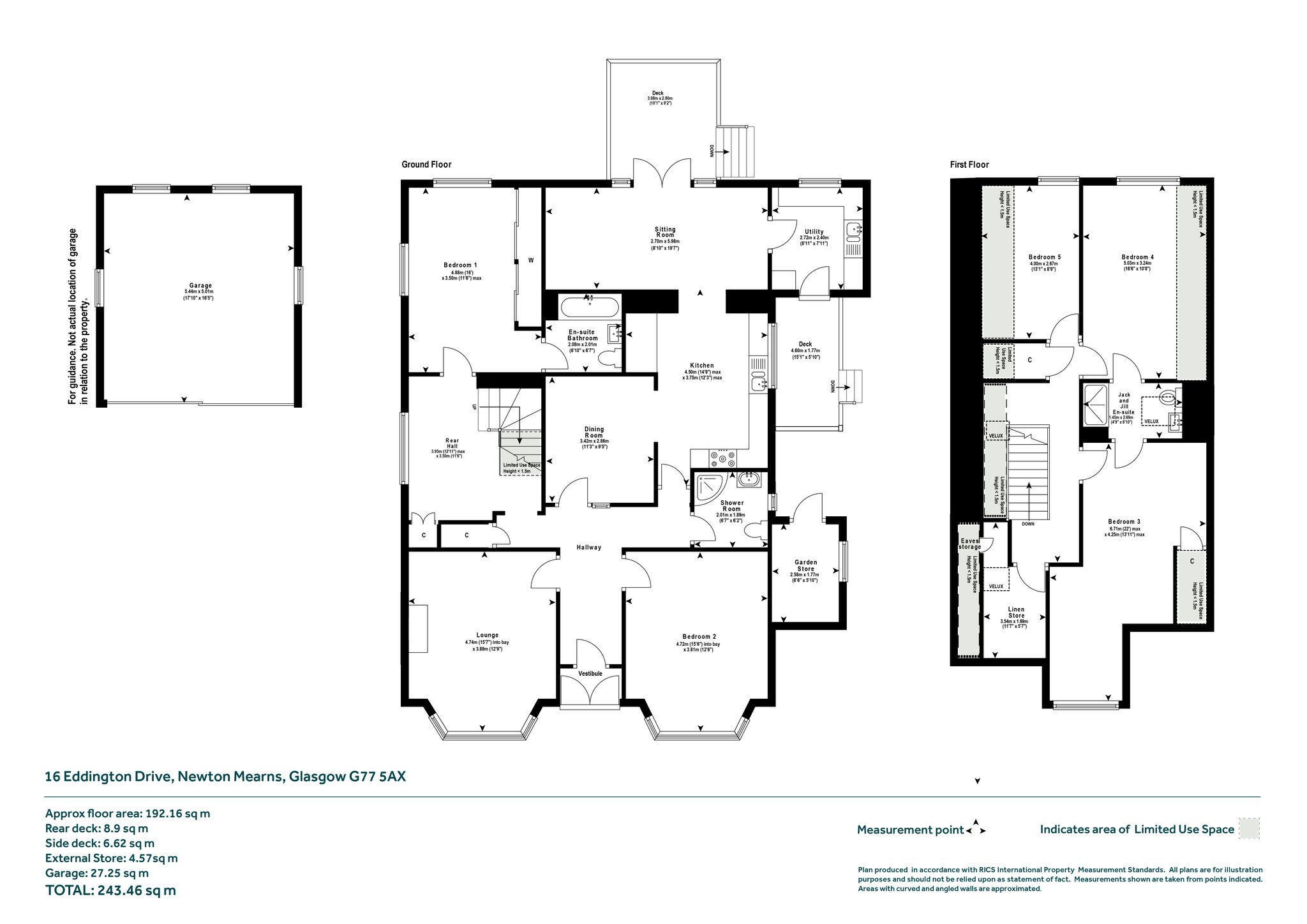
This impressive and spacious detached home offers versatile family living across two levels, set within the highly desirable residential pocket of Newton Mearns. With five bedrooms, multiple reception rooms, a private rear garden, and a detached double garage, this home combines style, comfort, and practicality.
On the ground floor, the entrance vestibule leads into a welcoming hallway with storage. At the front of the property, the bay-windowed lounge provides a bright and relaxing space, while a second bay-windowed double bedroom offers flexibility for guests or family members. A centrally positioned dining room creates the perfect setting for family meals and entertaining. To the rear, the garden room opens directly onto the garden deck through French doors, offering seamless indoor-outdoor living. The modern kitchen is fitted with ample unit, complimentary worktop surfaces and is further complemented by a practical utility room that leads to further private terrace. The ground floor further benefits from a generous principal bedroom with fitted wardrobes and an en-suite bathroom, as well as a shower room and a versatile rear hall that can be used as a study or dressing area and provides access to the upper level.
Upstairs, there are three further well-proportioned bedrooms. The largest, Bedroom 3, is a bright and spacious double, while Bedrooms 4 and 5 provide excellent flexibility as children’s rooms, a home office, or guest accommodation. A well-appointed jack and jill ensuite shower service both bedroom three and four and additional linen storage complete the first floor.
Externally, the property is enhanced by two decked areas, perfect for outdoor dining and entertaining, along with a landscaped rear garden offering excellent privacy. A detached double garage and an external store provide further convenience and storage. The property also benefits from gas central heating and double glazing.
Eddington Drive is ideally positioned within Newton Mearns, one of Glasgow’s most sought-after suburbs. The property lies within the catchment area for highly regarded primary and secondary schools and is well placed for a wide range of amenities including local shops, supermarkets, leisure facilities, and parks. Excellent transport links ensure easy access to Glasgow city centre, East Kilbride, and surrounding areas.
More Details
Council Tax: F
EPC: C
Tenure: Freehold
Your home may be repossessed if you do not keep up repayments on your mortgage. There may be a fee for mortgage advice. The actual amount you pay will depend upon your circumstances.
Similar Properties
Looking To Sell Or Let?
Rettie is one of the most trusted and well-respected names in property. Our unrivalled market knowledge helps people from around the world buy, sell, let and develop property in Scotland and the North East of England - from city apartments and rural cottages to large townhouses and prime country homes, farms and estates. We deal with some of the most prestigious properties on the market, but provide the same exceptional standards of service and value for money to all our clients.
