29 Sandray Gardens, Newton Mearns, Glasgow, East Renfrewshire, G77 5GX
Offers Over £450,000
Detached House
4 Bedrooms
4 Bathrooms
3 Reception Rooms
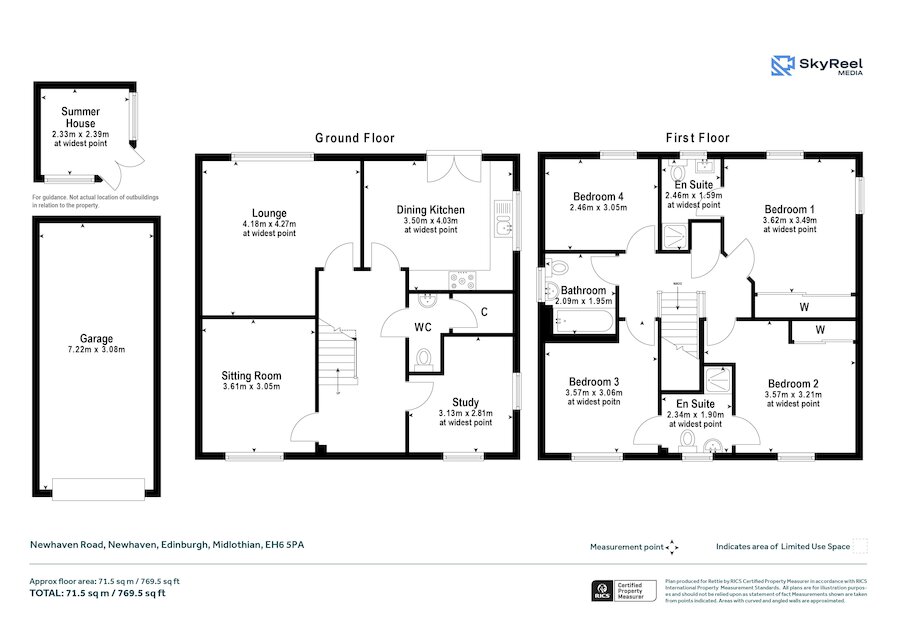
162 sq.m
Private Garden
Garage
Property Description
Built in 2021 by Taylor Wimpey, this well-presented four-bedroom detached villa is located within the highly sought-after Maidenhill development.
The popular ‘Hume’ house style, offers flexible and spacious accommodation perfectly suited to modern family living.
On the ground floor, the home comprises a welcoming reception hall, a generous lounge situated to the rear with views over the private garden, and a stylish dining kitchen. The kitchen is well-appointed with a range of wall and floor-mounted units, complementary worktop surfaces, and integrated appliances, and it provides direct access to the rear garden—ideal for entertaining or family gatherings. Also on this level is a bright family room overlooking the front of the property, a versatile dining room or study, and a convenient guest WC.
Upstairs, the principal bedroom benefits from fitted wardrobes and a contemporary ensuite shower room. Bedrooms two (with fitted wardrobes) and three share a modern Jack and Jill ensuite, while bedroom four is well-sized and flexible in use. A well-appointed house bathroom completes the upper floor accommodation.
Further features include gas central heating and double glazing throughout. Externally, the property enjoys a well-tended corner plot with landscaped gardens and a paved terrace that offer excellent privacy and shelter, perfect for outdoor entertaining. Another feature of the garden is a summer house which can be used as additionl living or working space. A driveway provides off-street parking and leads to a single detached garage.
The property sits within the catchment area for some of Scotland’s highest attaining primary and secondary schools which includes the newly built Maidenhill Primary School which is a short walk away. The area also has a host of local amenities including banks, healthcare centres, libraries, supermarkets and is close to The Avenue shopping centre. Local sports and recreational facilities include Parklands Country Club, Cathcart, Williamwood and Whitecraigs Golf Clubs and several of private bowling, tennis and rugby clubs along with East Renfrewshire Council's own excellent sports and leisure facilities at Eastwood Toll.
More Details
Council Tax: G
EPC: B
Tenure: Freehold
Your home may be repossessed if you do not keep up repayments on your mortgage. There may be a fee for mortgage advice. The actual amount you pay will depend upon your circumstances.
Similar Properties
Looking To Sell Or Let?
Rettie is one of the most trusted and well-respected names in property. Our unrivalled market knowledge helps people from around the world buy, sell, let and develop property in Scotland and the North East of England - from city apartments and rural cottages to large townhouses and prime country homes, farms and estates. We deal with some of the most prestigious properties on the market, but provide the same exceptional standards of service and value for money to all our clients.





































































