Flat 3D, Southwood Court, Rosemount Avenue, Newton Mearns, Glasgow, East Renfrewshire, G77 5TN

Newton Mearns, Glasgow, East Renfrewshire, G77 5TN
Under Offer
Pin View on map

Offers Over £285,000

House

First Floor Apartment

Bed

2 Bedrooms

Bathroom

2 Bathrooms

Reception

2 Reception Rooms

Tree

Communal Garden

Garage

Garage

Telephone

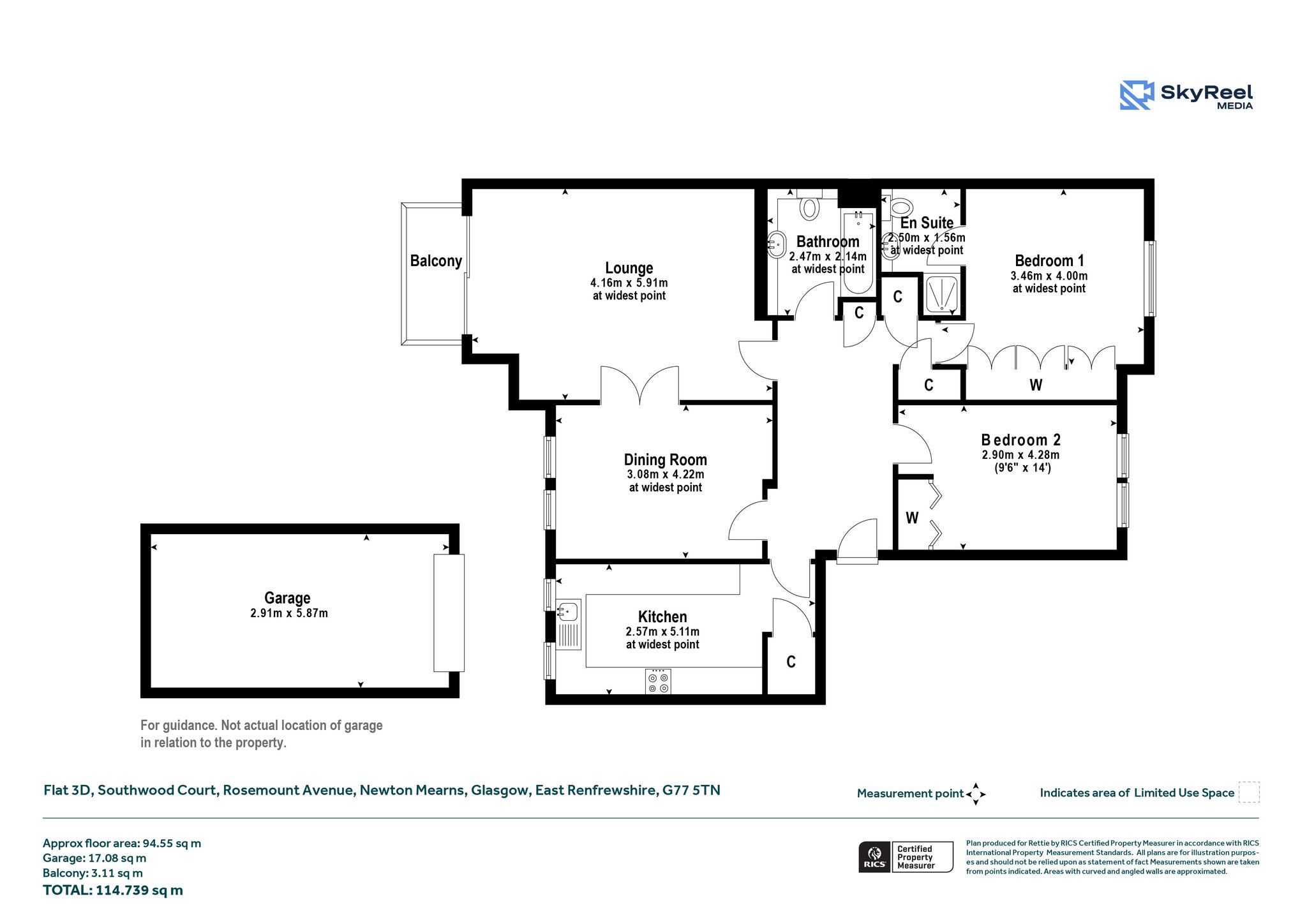
Property Description

Set within the highly desirable Mearnskirk development in Newton Mearns, this beautifully presented and generously proportioned two-bedroom apartment offers peaceful, leafy surroundings combined with stylish and comfortable living. Located in a small, exclusive block of just four apartments, this home provides a rare opportunity to enjoy spacious accommodation in one of the area’s most soughtafter residential enclaves.

The welcoming reception hallway gives access to all main apartments and includes multiple storage cupboards. The impressive lounge is a standout feature - bright and spacious, with dual-aspect windows and direct access to a private balcony, creating an ideal space for relaxation and entertaining. Adjacent is a well-proportioned dining room, perfect for hosting and flexible enough to serve as a home office if required.

The contemporary kitchen is fitted with ample units, generous worktop space, and room for casual dining. Both bedrooms are excellent doubles. The principal bedroom benefits from fitted wardrobes and an ensuite shower room. Bedroom two also includes fitted storage and is served by a well-appointed family bathroom.

The property further benefits from gas central heating, double glazing, and extensive storage throughout. Externally, the home includes a private garage, along with well-maintained communal grounds that enhance the peaceful, leafy setting. The balcony offers an attractive outdoor seating space, perfect for enjoying the tranquil surroundings of Mearnskirk.

Mearnskirk is one of Newton Mearns’ most admired residential pockets, known for its beautiful tree?lined avenues, landscaped grounds, and easy access to an excellent range of amenities. The area is served by outstanding local schooling, plentiful walking routes, nearby parks, and convenient transport links to Glasgow city centre and surrounding areas. Local shops, cafés, sports facilities, and supermarkets are all within easy reach, making this an ideal location for buyers seeking both convenience and a serene, established community setting.

More Details

Council Tax: G
EPC: C
Tenure: Freehold

Contact Us

Erica McFarlane

Erica McFarlane

Senior Sales Negotiator
Roland Brownlee

Roland Brownlee

Mortgage & Protection Advisor
Mortgage Calculator
Monthly payments
Please set an interest rate.

Your home may be repossessed if you do not keep up repayments on your mortgage.

There may be a fee for mortgage advice. The actual amount you pay will depend upon your circumstances. The fee is up to 1% but a typical fee is 0.3% of the amount borrowed.

Tax Calculator
LBTT calculator for properties purchased in Scotland. Stamp Duty calculator for properties purchased in England.
Land & buildings transaction tax (LBTT)
= £0
New build house with stone and timber cladding

Looking To Sell Or Let?

Rettie is one of the most trusted and well-respected names in property. Our unrivalled market knowledge helps people from around the world buy, sell, let and develop property in Scotland and the North East of England - from city apartments and rural cottages to large townhouses and prime country homes, farms and estates. We deal with some of the most prestigious properties on the market, but provide the same exceptional standards of service and value for money to all our clients.