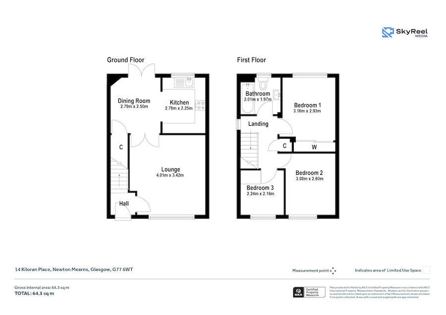
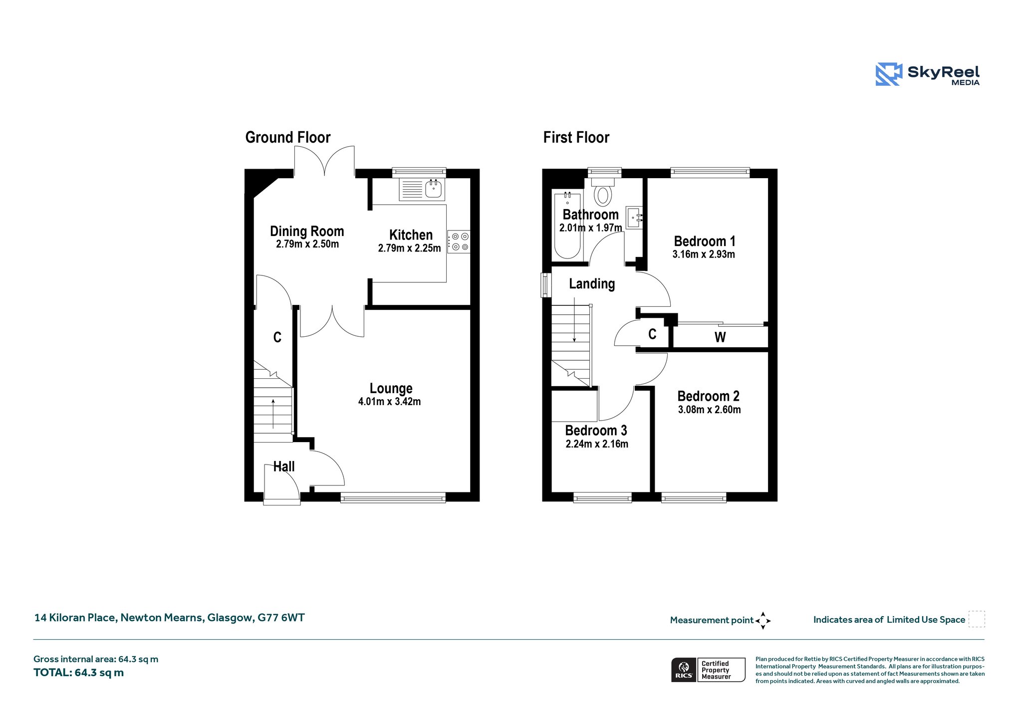
14 Kiloran Place, Newton Mearns, Glasgow, G77 6WT

Newton Mearns, Glasgow, G77 6WT
Under Offer
Pin View on map

Offers Over £260,000

House

Semi Detached House

Bed

3 Bedrooms

Bathroom

1 Bathroom

Reception

2 Reception Rooms

Size

882 sq.ft

Parking

Off Street Parking

Telephone

Property Description

Located in the heart of ever popular Newton Mearns, this beautifully presented three bedroom semi-detached villa offers bright, well proportioned accommodation set across two levels. Ideal for young families, couples, or downsizers, the property provides a versatile layout, private gardens, and a convenient position close to excellent schools, amenities, and transport links.

Ground Floor
A welcoming entrance hallway leads into the spacious lounge, positioned to the front and filled with natural light. From here, double doors open into the dining room, creating a seamless flow for everyday living and entertaining. The dining room provides direct access to the large back garden. A useful understairs cupboard provides additional storage.

The kitchen sits off the dining room and offers a practical layout with good storage and generous worktop space.

First Floor
The upper level features three bedrooms, all offering comfortable proportions. The main bedroom overlooks the rear garden, while the second bedroom is another double. The third bedroom works well as a child’s room, home office or dressing room.

A well appointed family bathroom completes the accommodation on this level, along with additional storage off the landing.

Exterior
The property enjoys private front and rear gardens, providing a safe and enclosed space for children or pets, with potential for further landscaping or extension (subject to consents).

The surrounding area provides access to some of Scotland’s highest attaining primary and secondary schools. A wide selection of amenities is available nearby, including supermarkets, healthcare centres, libraries, and The Avenue Shopping Centre. Residents also benefit from excellent leisure facilities such as Parklands Country Club, several renowned golf clubs, various private sports clubs, and East Renfrewshire Council’s own sports and leisure centre at Eastwood Toll.

More Details

EPC: C
Council Tax: E
Tenure: Freehold

Contact Us

Erica McFarlane

Erica McFarlane

Senior Sales Negotiator
Roland Brownlee

Roland Brownlee

Mortgage & Protection Advisor
Mortgage Calculator
Monthly payments
Please set an interest rate.

Your home may be repossessed if you do not keep up repayments on your mortgage.

There may be a fee for mortgage advice. The actual amount you pay will depend upon your circumstances. The fee is up to 1% but a typical fee is 0.3% of the amount borrowed.

Tax Calculator
LBTT calculator for properties purchased in Scotland. Stamp Duty calculator for properties purchased in England.
Land & buildings transaction tax (LBTT)
= £0
New build house with stone and timber cladding

Looking To Sell Or Let?

Rettie is one of the most trusted and well-respected names in property. Our unrivalled market knowledge helps people from around the world buy, sell, let and develop property in Scotland and the North East of England - from city apartments and rural cottages to large townhouses and prime country homes, farms and estates. We deal with some of the most prestigious properties on the market, but provide the same exceptional standards of service and value for money to all our clients.