30 Calico Road, Newton Mearns, Glasgow, G77 6GA

Newton Mearns, Glasgow, G77 6GA
Under Offer
Pin View on map

Offers Over £345,000

House

Semi Detached House

Bed

3 Bedrooms

Bathroom

3 Bathrooms

Reception

1 Reception Room

Tree

Private Garden

Parking

Off Street Parking

Telephone

Property Description

Located within the sought-after Mac & Mic development in Newton Mearns, this stunning modern family home offers beautifully presented accommodation throughout, paired with exceptional kerb appeal and a superb rear garden. Finished in stylish, neutral décor and set within an excellent school catchment area, the property is ideal for families seeking contemporary living in a prime residential setting.

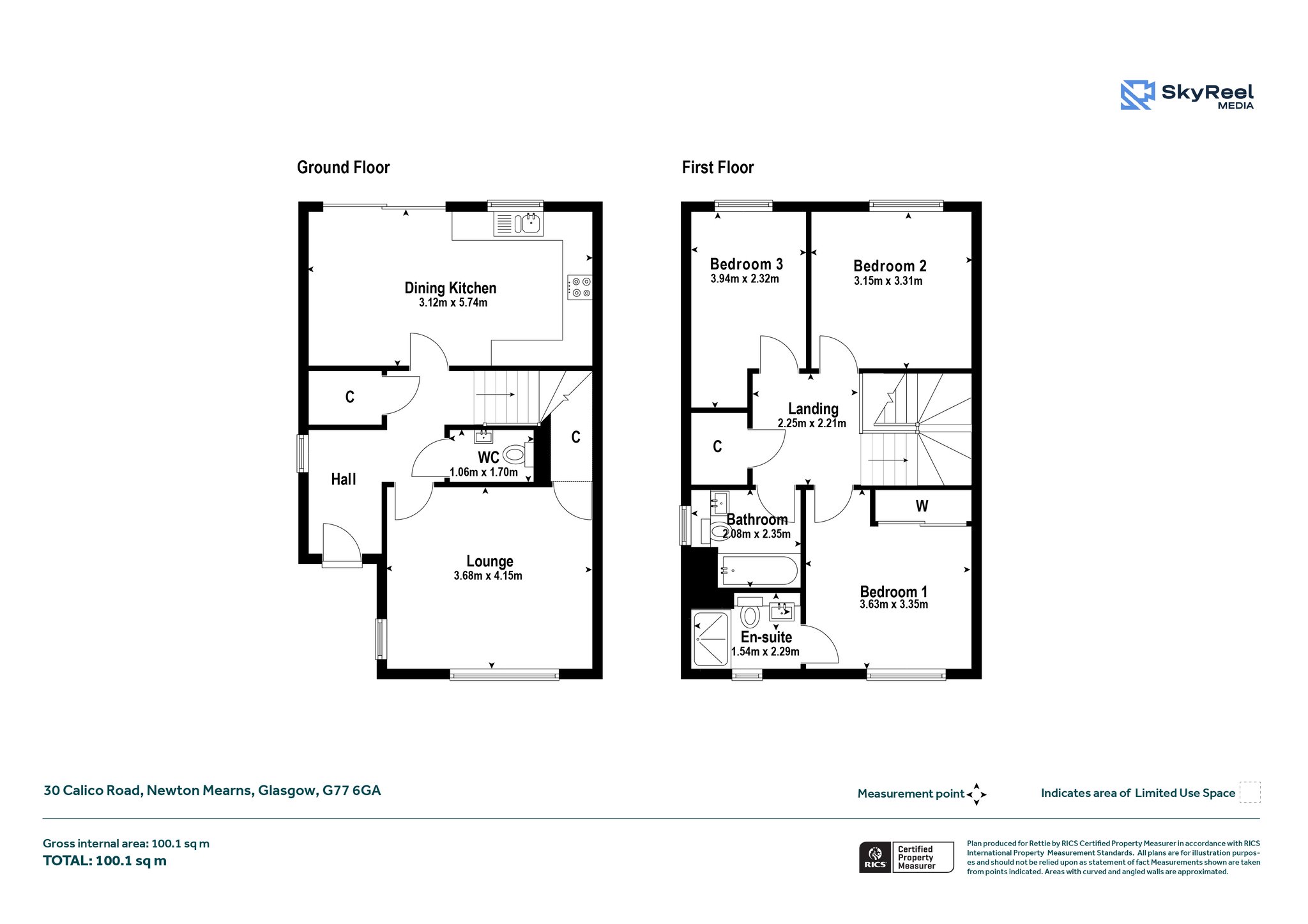
The welcoming entrance hall provides access to a bright lounge positioned to the front of the property. To the rear, the impressive open-plan dining kitchen spans the width of the house, offering ample space for family dining and entertaining. Modern units and generous worktop space create a stylish and practical cooking environment, while French doors lead directly out to the rear garden patio. A convenient WC and useful storage cupboards complete the ground floor.

The upper level features three well-proportioned bedrooms. The principal bedroom benefits from fitted wardrobes and a contemporary en-suite shower room. Bedrooms two and three are both spacious and versatile. A modern family bathroom and additional storage are located off the bright landing area.

This superb home further benefits from gas central heating, double glazing, and excellent built-in storage throughout. Externally, the property includes a driveway to the front, providing private off-street parking. The rear garden is a standout feature, boasting a generous patio area perfect for outdoor dining, leading onto a well-maintained lawn.

Situated in one of Newton Mearns’ most desirable new developments, the property enjoys close proximity to a wide range of local amenities, including shopping, cafés, parks and leisure facilities. The area is renowned for its outstanding school catchment, with some of the best primary and secondary schools in the country. Excellent transport links ensure convenient access to Glasgow city centre and surrounding areas, while nearby green spaces and walking routes provide a peaceful balance to modern family life.

Freehold
Council Tax: E
EPC: C

More Details

Situation: Private Garden
Council Tax Band: E
Tenure: Contact Branch

Contact Us

Sophie Boyd

Sophie Boyd

Sales Negotiator
Roland Brownlee

Roland Brownlee

Mortgage & Protection Advisor
Mortgage Calculator
Monthly payments
Please set an interest rate.

Your home may be repossessed if you do not keep up repayments on your mortgage.

There may be a fee for mortgage advice. The actual amount you pay will depend upon your circumstances. The fee is up to 1% but a typical fee is 0.3% of the amount borrowed.

Tax Calculator
LBTT calculator for properties purchased in Scotland. Stamp Duty calculator for properties purchased in England.
Land & buildings transaction tax (LBTT)
= £0
New build house with stone and timber cladding

Looking To Sell Or Let?

Rettie is one of the most trusted and well-respected names in property. Our unrivalled market knowledge helps people from around the world buy, sell, let and develop property in Scotland and the North East of England - from city apartments and rural cottages to large townhouses and prime country homes, farms and estates. We deal with some of the most prestigious properties on the market, but provide the same exceptional standards of service and value for money to all our clients.