3 Picketlaw Lane, Eaglesham, G76 0BN

Eaglesham, G76 0BN
New
Pin View on map

Offers Over £315,000

House

Detached House

Bed

3 Bedrooms

Bathroom

2 Bathrooms

Reception

1 Reception Room

Tree

Private Garden

Parking

Off Street Parking

Telephone

Property Description

This beautifully presented three-bedroom detached home is located in the desirable Eaglesham development, built by McTaggart and Mickel Homes.

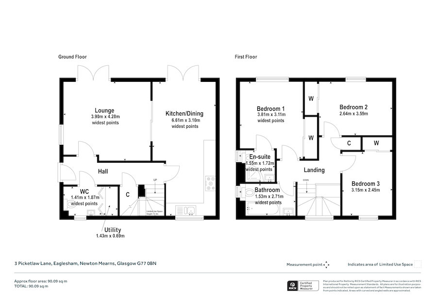
Picketlaw Lane is situated in the charming semi-rural village of Eaglesham, offering easy access to East Renfrewshire’s renowned schools. The accommodation is arranged over two levels and comprises:

Ground Floor: A bright and inviting entrance hall with a storage cupboard and guest WC, as well as a built-in utility store. The spacious sitting room overlooks the rear garden and features sliding doors that lead into the dining area, which opens up to the kitchen. The well-appointed kitchen includes a range of wall-mounted and floor-standing units with complementary worktop surfaces.

First Floor: A generous upper landing connects to all three bedrooms. The principal bedroom features fitted wardrobes and an en-suite shower room. Bedrooms two and three are both good-sized doubles, each with built-in wardrobe space. A family bathroom completes the layout.

Additional features of the home include gas central heating and double glazing. There is a driveway at the side of the property, with additional parking available at the front. The home is set within beautifully landscaped gardens that offer privacy and shelter, with a large rear lawn and terrace perfect for entertaining.

Eaglesham is a picturesque conservation village, celebrated for its 18th-century planning and architecture, and was designated Scotland’s first outstanding conservation area in 1960. The village provides a selection of local shops, hotel, bars, restaurants, and a popular primary school. It is also within the catchment area for some of Scotland’s top-performing schools, including some of the country's most prestigious independent schools. The surrounding countryside offers tranquil country lanes, fishing, and several well-regarded golf courses, including the nearby Bonnyton Golf Club. There are regular bus services to the city center, and local train stations at Busby and Clarkston provide easy access to Glasgow. Both Glasgow and Prestwick Airports are within easy reach.

Freehold
EPC: C
Council Tax: F

More Details

Situation: Private Garden
Council Tax Band: F
Tenure: Contact Branch

Request More Details

Erica McFarlane

Erica McFarlane

Senior Sales Negotiator
Roland Brownlee

Roland Brownlee

Mortgage & Protection Advisor
Mortgage Calculator
Monthly payments
Please set an interest rate.

Your home may be repossessed if you do not keep up repayments on your mortgage.

There may be a fee for mortgage advice. The actual amount you pay will depend upon your circumstances. The fee is up to 1% but a typical fee is 0.3% of the amount borrowed.

Tax Calculator
LBTT calculator for properties purchased in Scotland. Stamp Duty calculator for properties purchased in England.
Land & buildings transaction tax (LBTT)
= £0
New build house with stone and timber cladding

Looking To Sell Or Let?

Rettie is one of the most trusted and well-respected names in property. Our unrivalled market knowledge helps people from around the world buy, sell, let and develop property in Scotland and the North East of England - from city apartments and rural cottages to large townhouses and prime country homes, farms and estates. We deal with some of the most prestigious properties on the market, but provide the same exceptional standards of service and value for money to all our clients.