Craigneuk, Galashiels, Scottish Borders, TD1 1UQ

Scottish Borders, TD1 1UQ
Under Offer
Pin View on map

Offers Over £440,000

House

Detached House

Bed

3 Bedrooms

Bathroom

1 Bathroom

Reception

2 Reception Rooms

Size

1,528 sq.ft

Plot

About 8.30 Acres

Tree

Private Garden

Garage

Garage

Parking

Off Street Parking

Telephone

Property Description

CLOSING DATE TUESDAY MAY 5TH AT 12 NOON

Nestled in a true beauty spot in the Gala Water Valley between Galashiels and Clovenfords, Craigneuk is a wonderfully unique offering. Comprising a three-bedroom property, generous garden and 7 acre paddock the property offers flexibility, privacy and a wealth of opportunity for an incoming purchaser.

Retained within the same ownership for over 45 years, Craigneuk has been a labour of love for the current vendors. The property sits back from the banks of the Gala Water with a generous enclosed plot of some 8.3 acres. Much of the garden is laid to lawn with supplementary specimen trees, a separate vegetable garden and stream running through the edge of the boundary. An array of outbuildings offer a variety of storage options or could be used to house livestock and or horses.

Note that a section of the garden at the south-east end of the boundary is owned by a third party and may be available to purchase by separate negotiation. This piece of land has been used and maintained by the current owners during their entire ownership of the property. Please refer to the site plan.

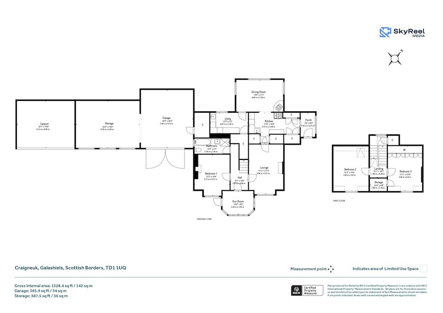
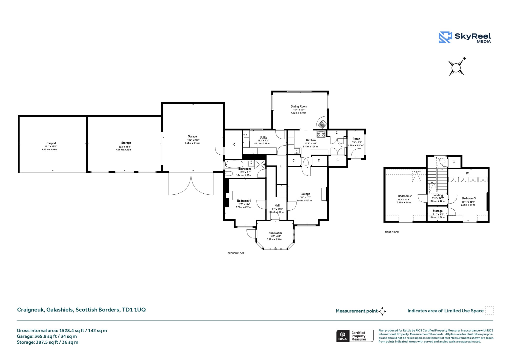
The property itself comprises a generous sitting room, sunroom, open plan kitchen/living/dining space, large utility room, bathroom and second reception room – which could be utilised as a third bedroom. Upstairs there are two good sized double bedrooms with fine views of the gardens sloping down to the water’s edge.

The property is accessed from the B710 by means of a drove road track which is well maintained, coming over the brow of the hill you are struck by the surrounding green space and fine views of the Bowland Valley – the unique position of the property allows complete privacy whilst being quickly and easily connected to nearby Galashiels with its array of local amenities, schooling and shops. There are train stations at both Stow & Galashiels offering a twice hourly service to Edinburgh Waverley Station.

Accommodation Comprises

Ground Floor

Sun-Room, Hallway, Sitting Room, Kitchen/Dining/Living Room, Utility, Bathroom, Lounge/Bedroom 3.

First Floor

Two large double bedrooms, one with walk-in cupboard.

Externally the property benefits from a large driveway, general outbuilding with power, potting shed and store. The wraparound gardens are laid to mostly lawn – there is an additional paddock extending to circa 2.87 HA.

Directions

From the A7 take the junction marked Bowland/Clovenfords onto the B710, follow the road past the entrance to Bowland Estate and up the hill, at a corner turn you will see a metal gate marked Craigneuk, follow the track and marked signposts at which point you will arrive at the property.

Coming from Clovenfords, take the exit at the roundabout onto Bowland Road which continues onto the B710 – follow the road for approx. 2 miles at which point the entrance to Craigneuk is marked by a signposted metal gate on the right.

More Details

EPC: F
Council Tax Band: D
Tenure: Freehold

Viewing by appointments via Rettie Borders.

Contact Us

Hugh Rettie

Hugh Rettie

Associate Director
Fraser Wardhaugh

Fraser Wardhaugh

Senior Sales Negotiator
Paul Banyard Cert CII (MP)

Paul Banyard Cert CII (MP)

Mortgage & Protection Advisor
Mortgage Calculator
Monthly payments
Please set an interest rate.

Your home may be repossessed if you do not keep up repayments on your mortgage.

There may be a fee for mortgage advice. The actual amount you pay will depend upon your circumstances. The fee is up to 1% but a typical fee is 0.3% of the amount borrowed.

Tax Calculator
LBTT calculator for properties purchased in Scotland. Stamp Duty calculator for properties purchased in England.
Land & buildings transaction tax (LBTT)
= £0
New build house with stone and timber cladding

Looking To Sell Or Let?

Rettie is one of the most trusted and well-respected names in property. Our unrivalled market knowledge helps people from around the world buy, sell, let and develop property in Scotland and the North East of England - from city apartments and rural cottages to large townhouses and prime country homes, farms and estates. We deal with some of the most prestigious properties on the market, but provide the same exceptional standards of service and value for money to all our clients.