4 Westgrove Apartments, Waverley Road, Melrose, Scottish Borders, TD6 9SL

Melrose, Scottish Borders, TD6 9SL
Sold
Pin View on map

Offers Over £325,000

House

Ground Floor Apartment

Bed

2 Bedrooms

Bathroom

1 Bathroom

Reception

1 Reception Room

Size

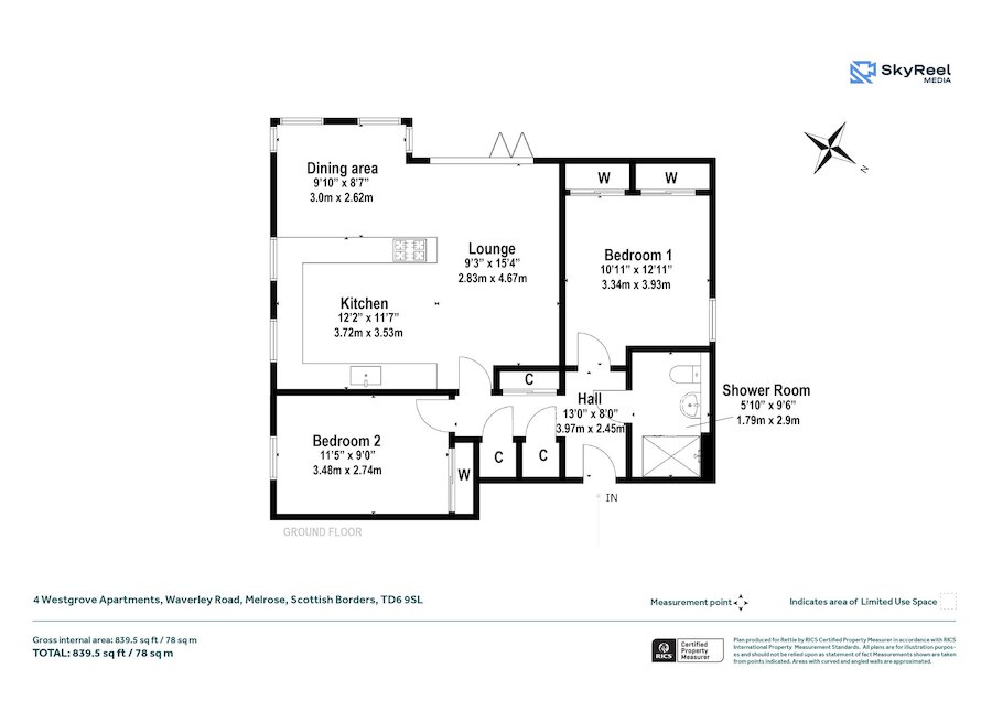
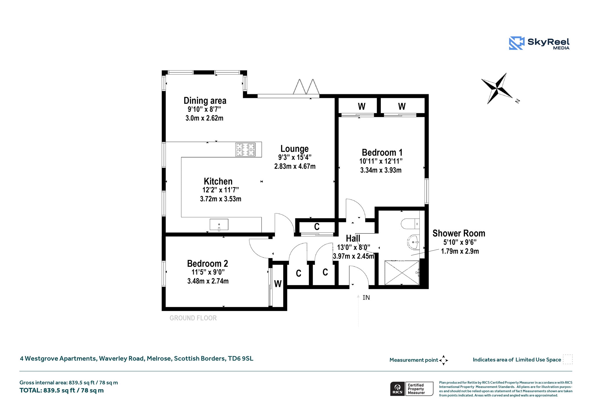
839 sq.ft

Parking

Off Street Parking

Telephone

Property Description

4 Westgrove Apartments is an outstanding, turn-key, two-bedroom ground floor apartment forming part of an exclusive over 55’s development in the heart of the sought after Border town of Melrose. With an attractive south-facing position, refined interiors, modern energy-efficient features, private allocated parking and convenient transport links, this wonderful contemporary apartment is perfect for those looking to enjoy the tranquillity of country living with local amenities on the doorstep.

Highlights Include

  • Immaculate, sleek modern kitchen with integrated appliances including; double oven, induction hob, dishwasher and washer/dryer.
  • South-facing aspect providing solar heat-gain and abundant natural light.
  • Bright and spacious open plan living/ dining/ kitchen.
  • Two spacious double bedrooms with built-in wardrobes.
  • Pristine bathroom with large walk-in shower.
  • Ample storage space internally.
  • Secure entry door system.
  • Lift access to all floors.
  • One allocated parking space with adequate visitors parking provision.
  • Allocated storage "lock-up" in the lower ground level.
  • Exclusive over- 55’s Development.

The property has been maintained to a spotless standard throughout offering an incoming purchaser the opportunity to obtain a perfect home with excellent local connections close at hand.

Accomodation Comprises

Entrance Hall, Open Plan Living/ Dining/ Kitchen, Two Bedrooms, Shower Room.

Externally the apartment benefits from a private parking space, visitors parking and an external storage room.

More Details

EPC Rating: C
Council Tax Band: D
Tenure: Freehold

Viewing by appointment via Rettie & Co.

Contact Us

Fraser Wardhaugh

Fraser Wardhaugh

Senior Sales Negotiator
Nicola Crombie

Nicola Crombie

Senior Sales Consultant
Paul Banyard Cert CII (MP)

Paul Banyard Cert CII (MP)

Mortgage & Protection Advisor
Mortgage Calculator
Monthly payments
Please set an interest rate.

Your home may be repossessed if you do not keep up repayments on your mortgage.

There may be a fee for mortgage advice. The actual amount you pay will depend upon your circumstances. The fee is up to 1% but a typical fee is 0.3% of the amount borrowed.

Tax Calculator
LBTT calculator for properties purchased in Scotland. Stamp Duty calculator for properties purchased in England.
Land & buildings transaction tax (LBTT)
= £0
New build house with stone and timber cladding

Looking To Sell Or Let?

Rettie is one of the most trusted and well-respected names in property. Our unrivalled market knowledge helps people from around the world buy, sell, let and develop property in Scotland and the North East of England - from city apartments and rural cottages to large townhouses and prime country homes, farms and estates. We deal with some of the most prestigious properties on the market, but provide the same exceptional standards of service and value for money to all our clients.