Offers Over £1,350,000
House
5 Bedrooms
4 Bathrooms
2 Reception Rooms
3,052 sq.ft
Private Garden
Off Street Parking
Property Description
This outstanding detached villa, dating from the 1870s, has been thoughtfully remodelled to create a cohesive, elegant and highly adaptable family home. It balances generous living space with a warm, practical layout, ideally suited to modern family life. To the front, there is private off-street parking, while to the rear lies a particularly special garden — private, mature and enjoying a sunny west-facing aspect.
Of note, the current owners originally acquired the upper and lower properties separately before sensitively reinstating the house as a single private dwelling. As part of this process, a striking central hall and staircase were introduced, creating a natural flow between the two levels. The addition of a utility room and ground floor wet room has further enhanced both functionality and day-to-day convenience.
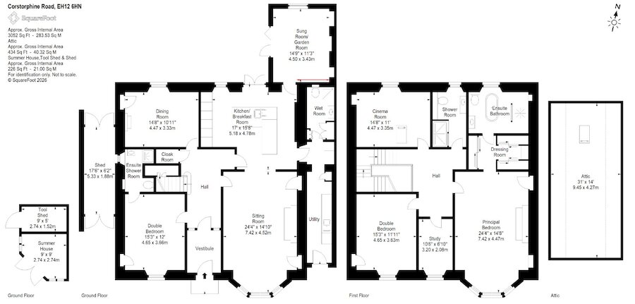
Ground Floor
The house is entered via an impressive entrance vestibule, leading into a wide and welcoming central hall. To the front, a superb bay-windowed sitting room with fireplace provides an elegant principal reception space, ideal for both formal entertaining and relaxed family use.
To the rear, the kitchen / breakfast room forms the heart of the home, fitted with a range of integrated appliances and offering ample space for dining. Double doors open directly onto the garden, creating an easy connection between indoor and outdoor living. The kitchen flows seamlessly into a charming garden room / snug - a versatile and comfortable space, perfectly positioned to enjoy the garden throughout the seasons.
Further accommodation on this level includes a formal dining room with fireplace overlooking the garden, a well-appointed utility room, and a contemporary wet room. A generous guest bedroom with en suite shower room completes the ground floor, offering excellent flexibility for visitors, home working or multi-generational living.
First Floor
A striking staircase rises to a bright upper landing. The principal bedroom is positioned to the front and benefits from a bay window, a dedicated dressing room with extensive storage, and a luxurious en suite bathroom with separate shower.
There are two further well-proportioned double bedrooms - one to the front and one to the rear - along with a single bedroom currently used as a study. A modern shower room serves these rooms.
Accessed via hatch and Ramsay ladder, a partially floored attic provides excellent additional storage.
Garden & Grounds
The rear garden is a true highlight - beautifully landscaped and enjoying a sunny west-facing orientation. Mature planting, well-established borders and a generous lawn create a private and tranquil setting, while a number of seating areas allow for sun throughout the morning, afternoon and evening. An attractive sunroom offers a peaceful retreat, complemented by a tool shed and a useful side store.
To the front, the property benefits from off-street parking for two cars, complete with EV Charger.
More Details
EPC: D
Council Tax Band: G
Tenure: Freehold
Viewing strictly by appointment.
Your home may be repossessed if you do not keep up repayments on your mortgage.
There may be a fee for mortgage advice. The actual amount you pay will depend upon your circumstances. The fee is up to 1% but a typical fee is 0.3% of the amount borrowed.
Similar Properties
Looking To Sell Or Let?
Rettie is one of the most trusted and well-respected names in property. Our unrivalled market knowledge helps people from around the world buy, sell, let and develop property in Scotland and the North East of England - from city apartments and rural cottages to large townhouses and prime country homes, farms and estates. We deal with some of the most prestigious properties on the market, but provide the same exceptional standards of service and value for money to all our clients.
