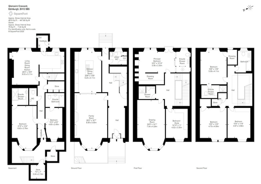
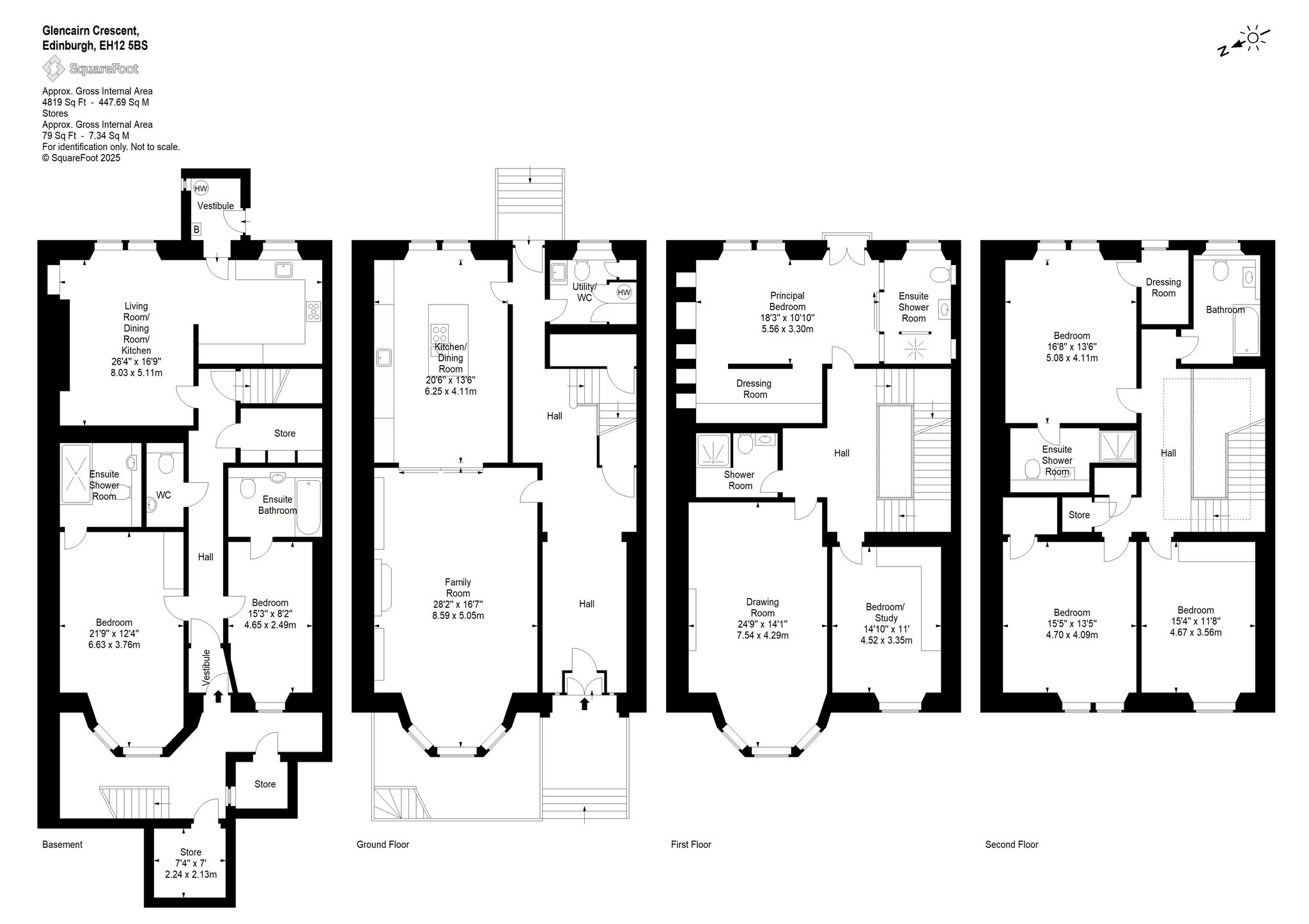
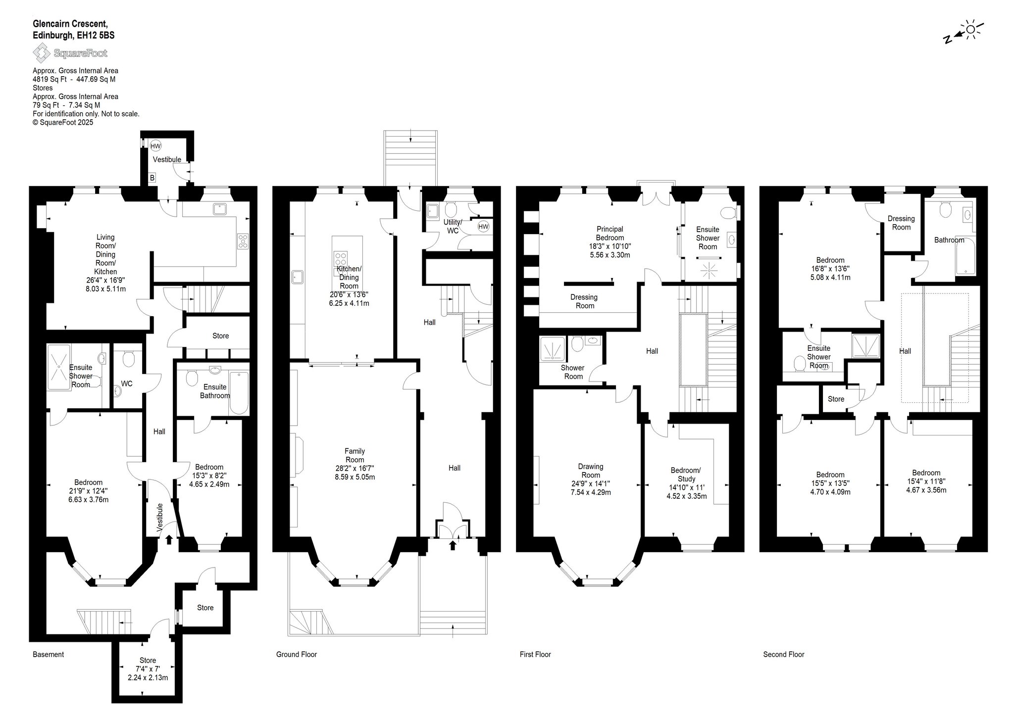
Property Description
An exceptional four-storey Victorian townhouse with a south-facing private garden and self-contained lower ground floor flat, located on one of Edinburgh’s most admired and architecturally significant crescents in the heart of the West End. Offering beautifully proportioned accommodation of over 4,800 sq ft, this is a wonderful opportunity to acquire a grand family home with flexible living and income potential, just moments from the city centre.
This elegant stone-built townhouse forms part of a distinguished Victorian crescent, designed with sweeping classical lines and enjoying an enviable setting opposite attractive residents’ gardens. Number 5 has been meticulously maintained and thoughtfully upgraded throughout, retaining a wealth of period features - including ornate cornicing, bay windows, original fireplaces, and a stunning central cupola - while also offering all the modern comforts required for contemporary living.
Spanning four floors, the property has been configured to offer versatile family accommodation alongside a self-contained lower ground floor flat - perfect for guests, extended family, or short-term rental use. The principal levels are flooded with natural light, and the south-facing rear aspect ensures sunshine throughout the day, particularly in the beautifully private garden.
Key Features
- Six Bedrooms
- Dedicated Home Office
- Divisible Lower Ground Floor Flat
- Private South Facing Garden
- Circa 4,819 sq ft
- Excellent Decorative Order Throughout
- Access to Private Residents’ Gardens (on subscription)
More Details
EPC: D
Council Tax Band: H
Tenure: Freehold
Viewing by appointment only.
Your home may be repossessed if you do not keep up repayments on your mortgage.
There may be a fee for mortgage advice. The actual amount you pay will depend upon your circumstances. The fee is up to 1% but a typical fee is 0.3% of the amount borrowed.
Similar Properties
Looking To Sell Or Let?
Rettie is one of the most trusted and well-respected names in property. Our unrivalled market knowledge helps people from around the world buy, sell, let and develop property in Scotland and the North East of England - from city apartments and rural cottages to large townhouses and prime country homes, farms and estates. We deal with some of the most prestigious properties on the market, but provide the same exceptional standards of service and value for money to all our clients.
