Property Description
This is a rare opportunity to acquire a stylishly presented and beautifully furnished four/five bedroomed house on Ann Street, viewed as one of the most prestigious residential addresses in Edinburgh. Ann Street is a row of elegantly proportioned Georgian townhouses designed by renowned portrait artist Henry Raeburn, and named after his wife, that line either side of a picture-perfect cobbled street.
The A-listed sandstone townhouse is packed with period character and a wealth of original features including Georgian sash and case windows with working shutters, flagstone flooring, ornate cornicework and marble fireplaces that have been sensitively and lovingly restored to their former glory. 
The handsome property has been upgraded and refurbished throughout with the addition of a stunning bespoke Peden & Pringle kitchen that opens to a wonderful sunroom and patio terrace to the rear of the property. 
The property sits on the doorstep of Stockbridge with its vibrant village atmosphere and excellent local amenities, Inverleith Park and the Royal Botanic Gardens. 
It is only a short walk to all the attractions in Edinburgh’s cosmopolitan city centre and lies within easy reach of the city’s major transport links.
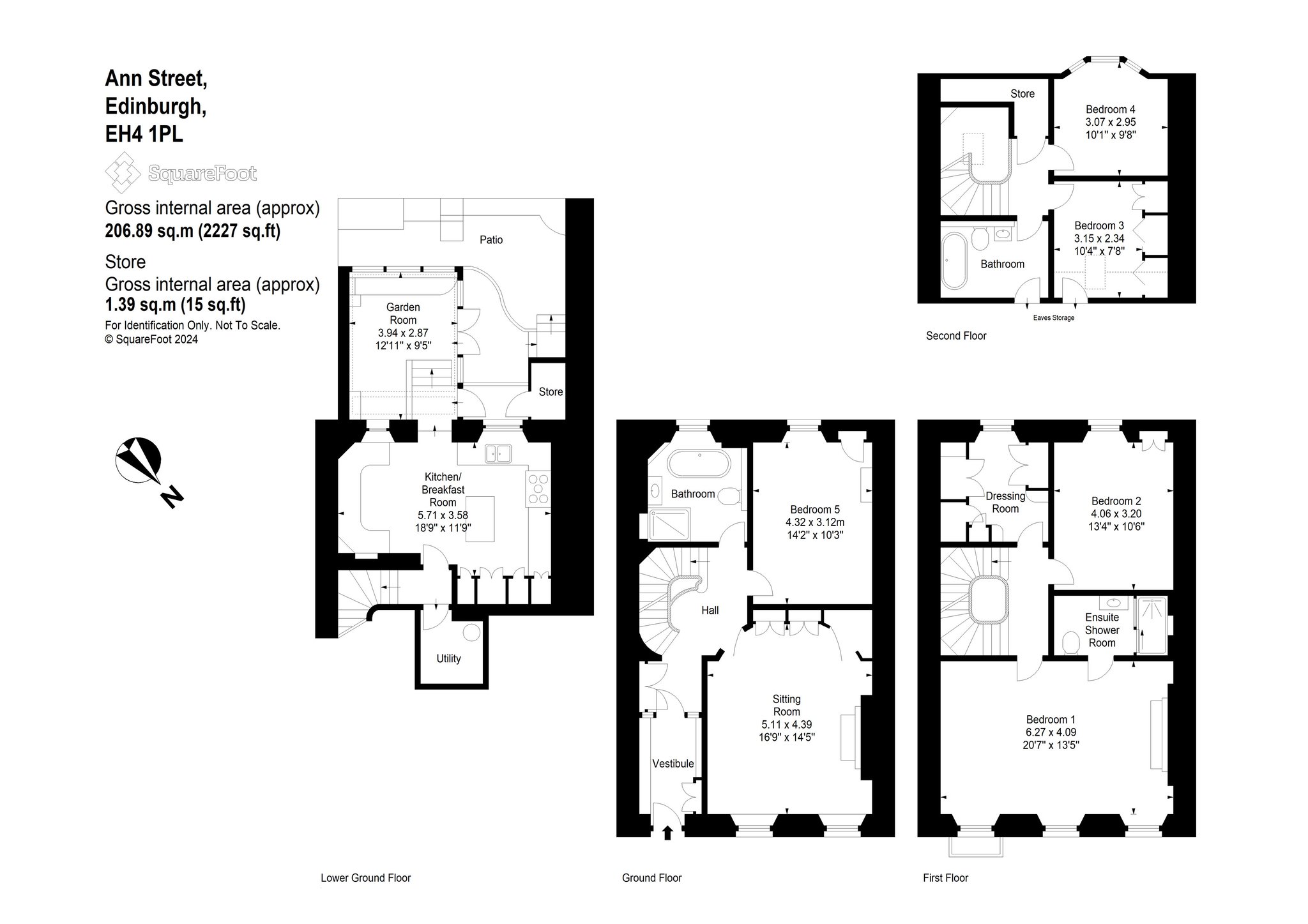
Summary Of Accommodation
Ground Floor
Entrance Vestibule, Reception Hall, Cloakroom Cupboard, Drawing Room, Bedroom Four & En-Suite Shower Room, Bathroom, Monitored Alarm System, Gas Central Heating 
First Floor
Principal Bedroom & En-suite Shower Room, Dressing Room, Double Bedroom Two
Second Floor
Two Further Bedrooms, Bathroom 
Lower Ground Floor
Open Plan Kitchen-Dining Room, Sunroom & Access to Rear Garden, Utility Room 
Outside Space
Landscaped Front Garden with Lawn, Floral Borders & Bin Storage, Sun Terrace to the Rear of the Property & Storage Shed
Residents’ Permit Parking is available on Ann Street and Pay & Display Parking on adjoining Upper Dean Terrace
More Details
EPC = D
Council Tax Band: H
Tenure: Freehold
Viewing by appointment.
Your home may be repossessed if you do not keep up repayments on your mortgage. There may be a fee for mortgage advice. The actual amount you pay will depend upon your circumstances.
Similar Properties
Looking To Sell Or Let?
Rettie is one of the most trusted and well-respected names in property. Our unrivalled market knowledge helps people from around the world buy, sell, let and develop property in Scotland and the North East of England - from city apartments and rural cottages to large townhouses and prime country homes, farms and estates. We deal with some of the most prestigious properties on the market, but provide the same exceptional standards of service and value for money to all our clients.

