11 Blantyre Terrace, Edinburgh, Midlothian, EH10 5AD
Property Description
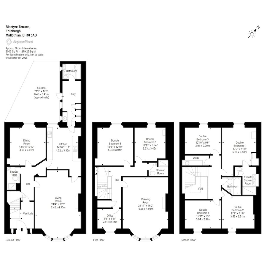
Spanning over 3,000 square feet, this meticulously refurbished, elegant townhouse provides wonderful family living in the middle of Merchiston and Morningside. Positioned over three floors, with fabulously proportioned rooms and an abundance of period features, the house offers seven bedrooms, as well as an office and private back gardens.
Entered via a beautifully grand front door, on the ground floor there is a large sitting room with bay window, dining room, kitchen leading out to utility and garden, as well as a handy shower room and another bathroom.
Upstairs on the first floor, there is a drawing room with bay window, two well proportioned double bedrooms, a handy, bright office/ playroom and a shower room.
On the second floor, there are four further double bedrooms, one with ensuite shower room and a family bathroom to service the other bedrooms. There is also an very useful secondary utility room on this floor.
A wonderful cupula provides light throughout making this a very bright home, and the private garden completes the space of such a wonderful home.
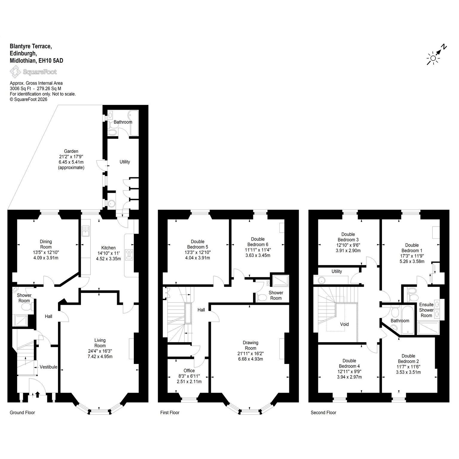
Spanning over 3,000 square feet, this meticulously refurbished, elegant townhouse provides wonderful family living in the middle of Merchiston and Morningside. Positioned over three floors, with fabulously proportioned rooms and an abundance of period features, the house offers seven bedrooms, as well as an office and private back gardens.
Entered via a beautifully grand front door, on the ground floor there is a large sitting room with bay window, dining room, kitchen leading out to utility and garden, as well as a handy shower room and another bathroom.
Upstairs on the first floor, there is a drawing room with bay window, two well proportioned double bedrooms, a handy, bright office/ playroom and a shower room.
On the second floor, there are four further double bedrooms, one with ensuite shower room and a family bathroom to service the other bedrooms. There is also an very useful secondary utility room on this floor.
A wonderful cupula provides light throughout making this a very bright home, and the private garden completes the space of such a wonderful home.
More Details
EPC: D
Council Tax Band: G
Tenure: Freehold
Your home may be repossessed if you do not keep up repayments on your mortgage.
There may be a fee for mortgage advice. The actual amount you pay will depend upon your circumstances. The fee is up to 1% but a typical fee is 0.3% of the amount borrowed.
Similar Properties
Looking To Sell Or Let?
Rettie is one of the most trusted and well-respected names in property. Our unrivalled market knowledge helps people from around the world buy, sell, let and develop property in Scotland and the North East of England - from city apartments and rural cottages to large townhouses and prime country homes, farms and estates. We deal with some of the most prestigious properties on the market, but provide the same exceptional standards of service and value for money to all our clients.
