Fixed Price £485,000
Lower Ground Apartment
2 Bedrooms
1 Bathroom
1 Reception Room
1,121 sq.ft
Private Garden
On Street/Permit
Property Description
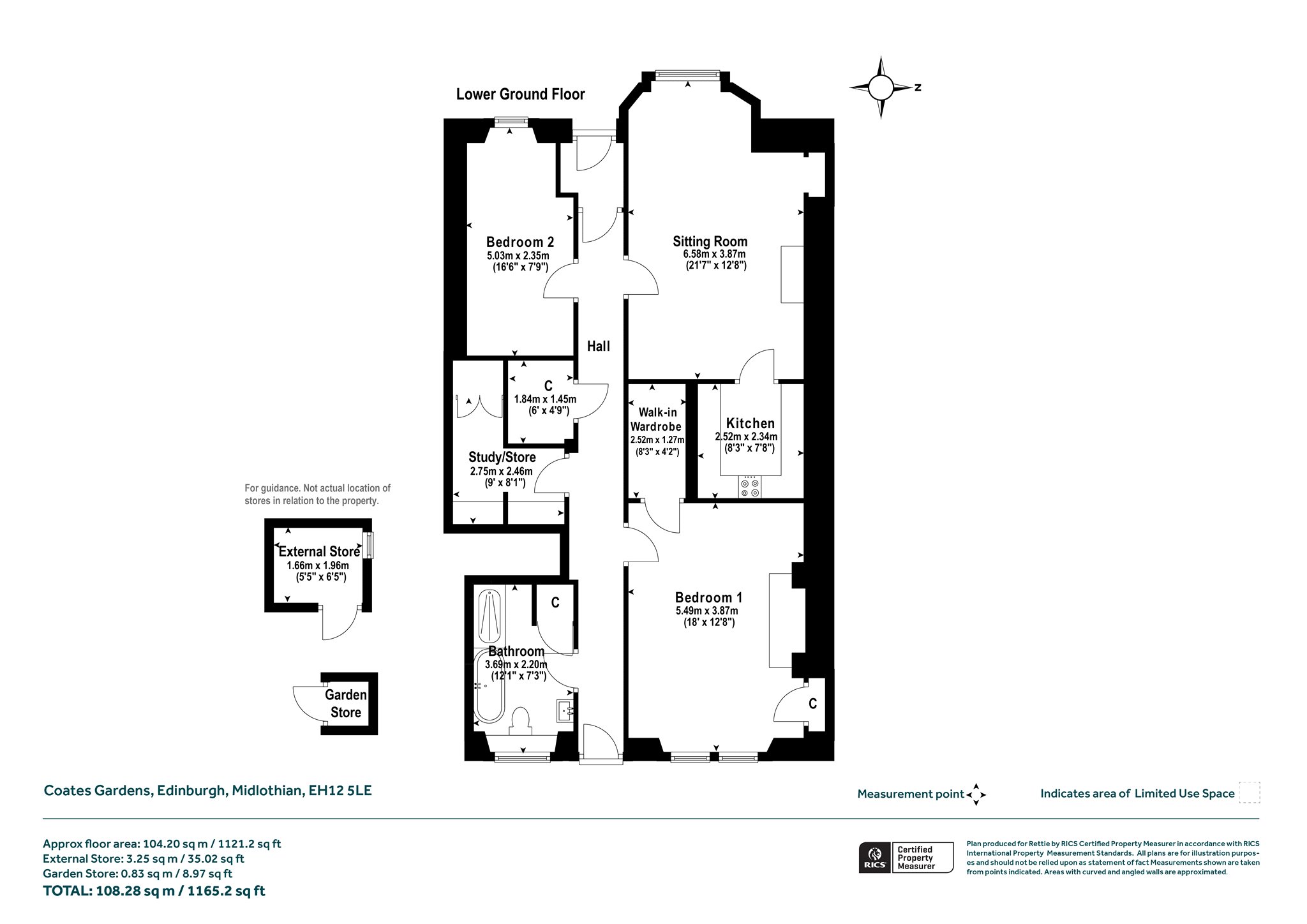
Situated in the heart of Edinburgh’s fashionable West End, 30A Coates Gardens is a beautifully presented two-bedroom plus study, main door, lower ground-floor apartment offering the perfect fusion of traditional charm and contemporary living. This rarely available property boasts a thoughtfully designed layout, including a generous sitting / dining room with working open fireplace, ideal for modern lifestyles, a statement fully fitted kitchen, two double bedrooms - the principal bedroom benefiting from a walk-in wardrobe area, stylish bathroom with free standing bath and separate shower, and a very useful study/home office room.
Private front patio space, East-facing tiered garden, good storage spaces, this property is presented in walk-in condition, together with its ideal location positioned moments from Haymarket Station and a short stroll to the city centre, this is an outstanding opportunity for professionals, downsizers, or investors seeking a turnkey home in an unbeatable location.
Summary Of Accommodation
Entrance Vestibule, Hall, Sitting Room/Dining Room, Kitchen, Principal Bedroom with walk-in Wardrobe, Bedroom Two, Bathroom, Study Space, Hall Storage Cupboard
Externally: Front Patio Area, Garden Store, Under Pavement Cellar, Rear Garden
More Details
EPC: C
Council Tax Band: F
Tenure: Freehold
Viewing by appointment.
Your home may be repossessed if you do not keep up repayments on your mortgage. There may be a fee for mortgage advice. The actual amount you pay will depend upon your circumstances.
Similar Properties
Looking To Sell Or Let?
Rettie is one of the most trusted and well-respected names in property. Our unrivalled market knowledge helps people from around the world buy, sell, let and develop property in Scotland and the North East of England - from city apartments and rural cottages to large townhouses and prime country homes, farms and estates. We deal with some of the most prestigious properties on the market, but provide the same exceptional standards of service and value for money to all our clients.
