Offers Over £2,000,000
Terraced House
5 Bedrooms
4 Bathrooms
2 Reception Rooms
3,589 sq.ft
Private Garden
Off Street Parking, On Street/Permit
Property Description
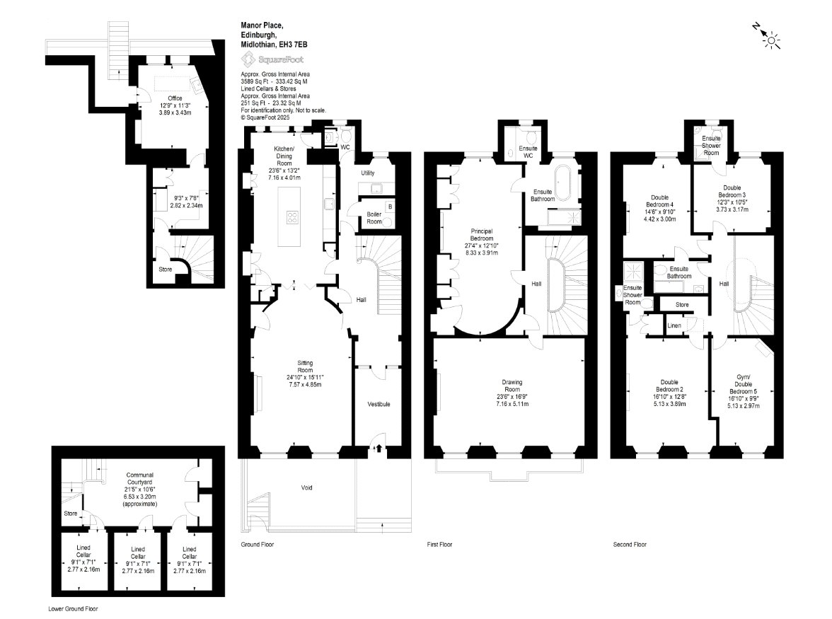
37 Manor Place is a distinguished stone-built townhouse in the heart of Edinburgh’s prestigious West End. Extending to approximately 3,589 sq ft, together with an additional 251 sq ft of lined cellars and stores, the property offers generous and flexible family accommodation.
Presented in exceptional condition throughout, the house has been finished to the highest of standards, with great attention to detail and the use of high-quality materials. The property showcases a beautiful and elegant stair that rises through the house, and it enjoys magnificent views to the front overlooking St Mary’s Episcopal Cathedral, with far-reaching vistas towards the Pentlands beyond.
A particular feature is the interconnection between the sitting room and the kitchen/dining room - a layout that is highly unusual in West End townhouses and creates a superb flow for both family living and entertaining.
37 Manor Place is available either as a standalone property or as part of a larger lot including the lower ground floor flat (available separately).
Key Features
- Elegant Georgian townhouse in Edinburgh’s West End
- Extending to 3,589 sq ft plus 251 sq ft of cellars and stores
- Finished to an exceptional standard with high quality materials
- Beautiful and elegant stair rising through the house
- Five bedrooms (four with en suite facilities)
- Grand reception rooms with period detailing
- Rare interconnection between sitting room and kitchen/dining room
- Magnificent front views overlooking St Mary’s Episcopal Cathedral
- Boot room, leading to a dedicated home office
- Private rear garden, low maintenance and perfect for outside dining
- Two clear off street parking spaces; rare in a city centre location
More Details
EPC: D
Council Tax Band: H
Tenure: Freehold
Viewing by appointment.
Your home may be repossessed if you do not keep up repayments on your mortgage. There may be a fee for mortgage advice. The actual amount you pay will depend upon your circumstances.
Similar Properties
Looking To Sell Or Let?
Rettie is one of the most trusted and well-respected names in property. Our unrivalled market knowledge helps people from around the world buy, sell, let and develop property in Scotland and the North East of England - from city apartments and rural cottages to large townhouses and prime country homes, farms and estates. We deal with some of the most prestigious properties on the market, but provide the same exceptional standards of service and value for money to all our clients.

