Property Description
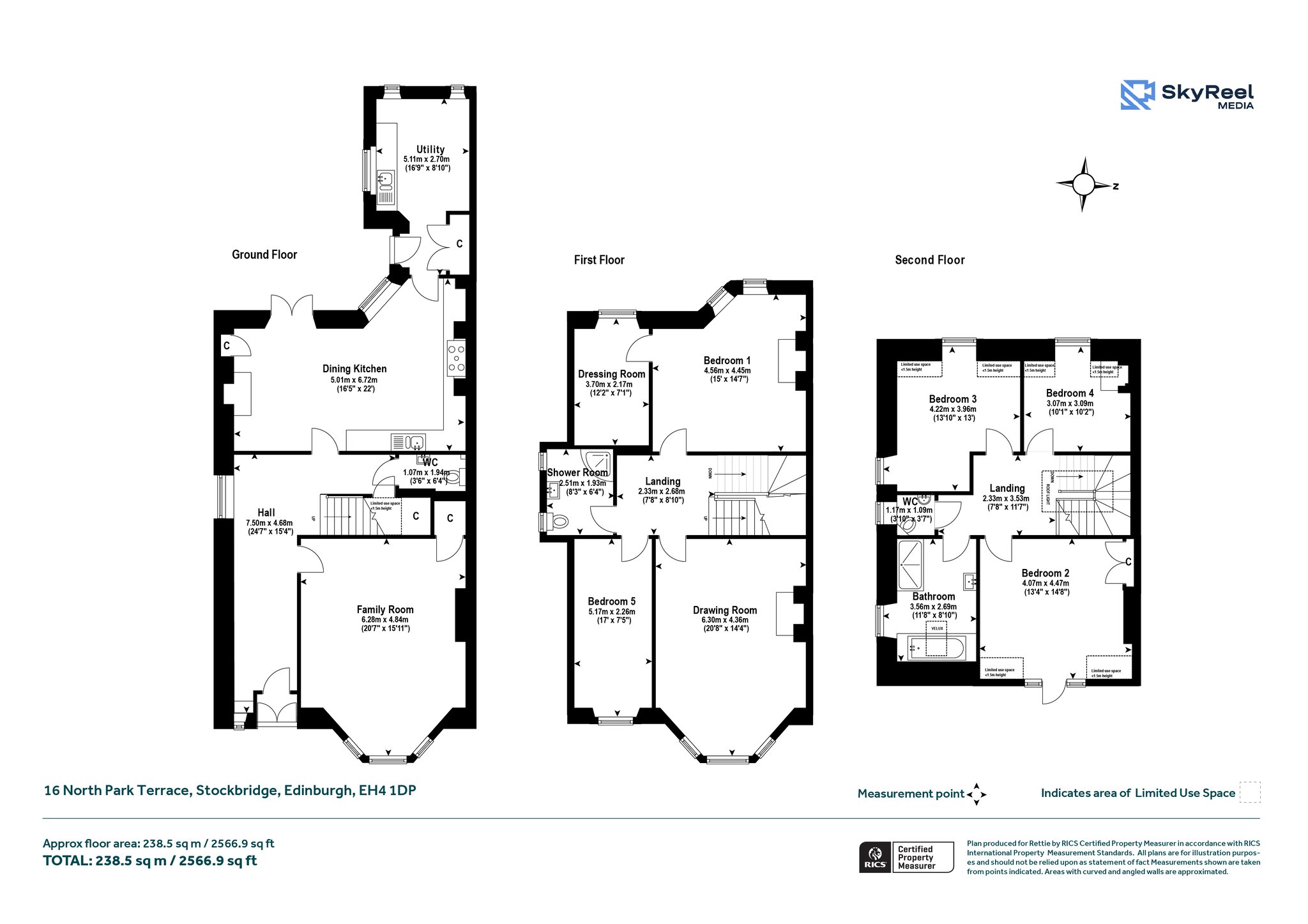
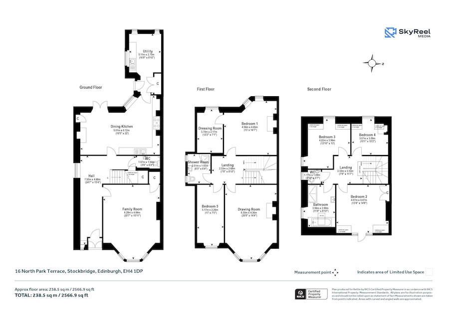
16 North Park Terrace is a beautifully presented Victorian end-of-terrace family home, extending to over 2,500 sq ft across three levels. Peacefully positioned at the end of a quiet cul-de-sac, the property enjoys a wonderful sense of privacy while boasting stunning open views across the Edinburgh Academicals Rugby pitches, Inverleith Park, Inverleith Pond and towards Edinburgh Castle. Carefully refurbished shortly after its acquisition by the present owners, this has been a much-loved and exceptionally well-maintained home, combining period character with practical family living. Original features, including high ceilings, decorative cornicing, a grand Victorian staircase, and a spectacular top-floor cupola, are retained throughout, adding elegance and charm while flooding the home with natural light.
Situated in the heart of Stockbridge, the property enjoys a generous west-facing rear garden captures the afternoon and evening sun, offering an ideal space for children to play and for family entertaining. North Park Terrace itself is renowned for its friendly and welcoming community, making it one of Stockbridge’s most desirable streets for families.
More Details
EPC: D
Council Tax Band: G
Tenure: Freehold
Viewing strictly by appointment.
Your home may be repossessed if you do not keep up repayments on your mortgage.
There may be a fee for mortgage advice. The actual amount you pay will depend upon your circumstances. The fee is up to 1% but a typical fee is 0.3% of the amount borrowed.
Similar Properties
Looking To Sell Or Let?
Rettie is one of the most trusted and well-respected names in property. Our unrivalled market knowledge helps people from around the world buy, sell, let and develop property in Scotland and the North East of England - from city apartments and rural cottages to large townhouses and prime country homes, farms and estates. We deal with some of the most prestigious properties on the market, but provide the same exceptional standards of service and value for money to all our clients.
