Offers Over £265,000
Ground Floor Apartment
2 Bedrooms
1 Bathroom
1 Reception Room
829 sq.ft
Communal Garden
Property Description
This spacious and well-presented two-bedroom lower ground and ground floor flat forms part of a traditional tenement in the highly desirable Leith Links area and benefits from the rare advantage of direct access to the communal garden.
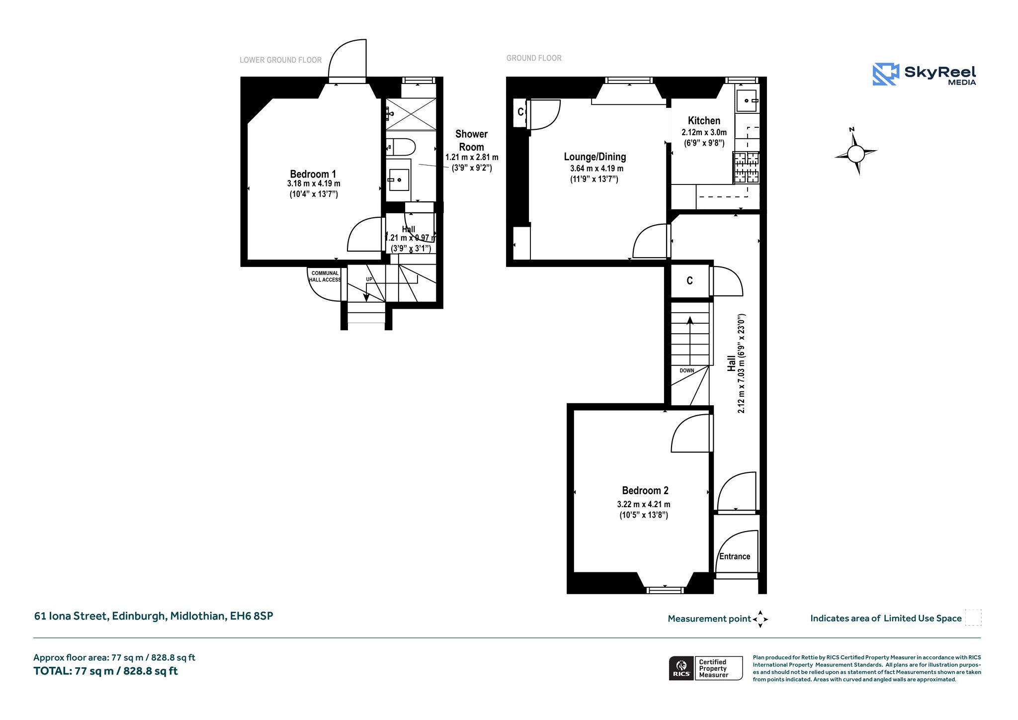
The accommodation is arranged over two levels and offers flexible, well-proportioned living space. On the ground floor, the property opens into a welcoming hall leading to a bright lounge/dining room, ideal for both everyday living and entertaining. The adjoining kitchen is neatly fitted with a range of units and worktop space, making excellent use of the available layout.
The lower ground floor hosts two generous double bedrooms, both offering excellent proportions and versatility for use as sleeping accommodation or home working space. A contemporary shower room is also located on this level, finished with modern fittings. Of particular note is the direct door access from the lower level to the communal rear garden, providing a convenient and appealing outdoor connection rarely found in similar properties.
Further benefits include gas central heating, good storage throughout, and a well-maintained communal stair and garden area.
Situated just moments from the open green spaces of Leith Links, the property is ideally placed for enjoying the vibrant amenities of Leith, including an excellent selection of cafés, restaurants and shops, along with superb transport links to the city centre and beyond.
This attractive home will appeal to a wide range of buyers, including professionals, first-time purchasers and investors alike.
Summary Of Accommodation
Ground Floor
Entrance hallway with storage, bright lounge/dining room, fitted kitchen, second double bedroom
Lower Ground
Hallway, Principal bedroom with outside access, Family shower room
External
Direct access to well-maintained communal rear garden.
Locatipn Summary
At the heart of Leith is The Shore, a lively area lined with award-winning restaurants, trendy cafés, traditional pubs, and artisan shops. The district also offers excellent cultural attractions, including the Royal Yacht Britannia at nearby Ocean Terminal and various galleries and creative spaces that showcase Leith’s artistic spirit.
Leith is exceptionally well-connected, with regular bus services and the Edinburgh Tram extension now providing direct links to the city centre and airport. The area is also popular with professionals due to its proximity to tech hubs, creative industries, and financial districts.
Green spaces such as Leith Links and the Water of Leith Walkway provide peaceful outdoor escapes, while a growing number of independent retailers, delis, and local markets contribute to Leith’s strong sense of community and charm.
With its distinctive character, excellent amenities, and ongoing regeneration, Leith continues to be one of the most desirable places to live in Edinburgh.
More Details
EPC: D
Council Tax Band: C
Tenure: Freehold.
Viewing by appointment via Rettie & Co.
Your home may be repossessed if you do not keep up repayments on your mortgage. There may be a fee for mortgage advice. The actual amount you pay will depend upon your circumstances.
Similar Properties
Looking To Sell Or Let?
Rettie is one of the most trusted and well-respected names in property. Our unrivalled market knowledge helps people from around the world buy, sell, let and develop property in Scotland and the North East of England - from city apartments and rural cottages to large townhouses and prime country homes, farms and estates. We deal with some of the most prestigious properties on the market, but provide the same exceptional standards of service and value for money to all our clients.
