Offers Over £1,150,000
Ground Floor Apartment
4 Bedrooms
4 Bathrooms
2 Reception Rooms
2,753 sq.ft
Private Garden
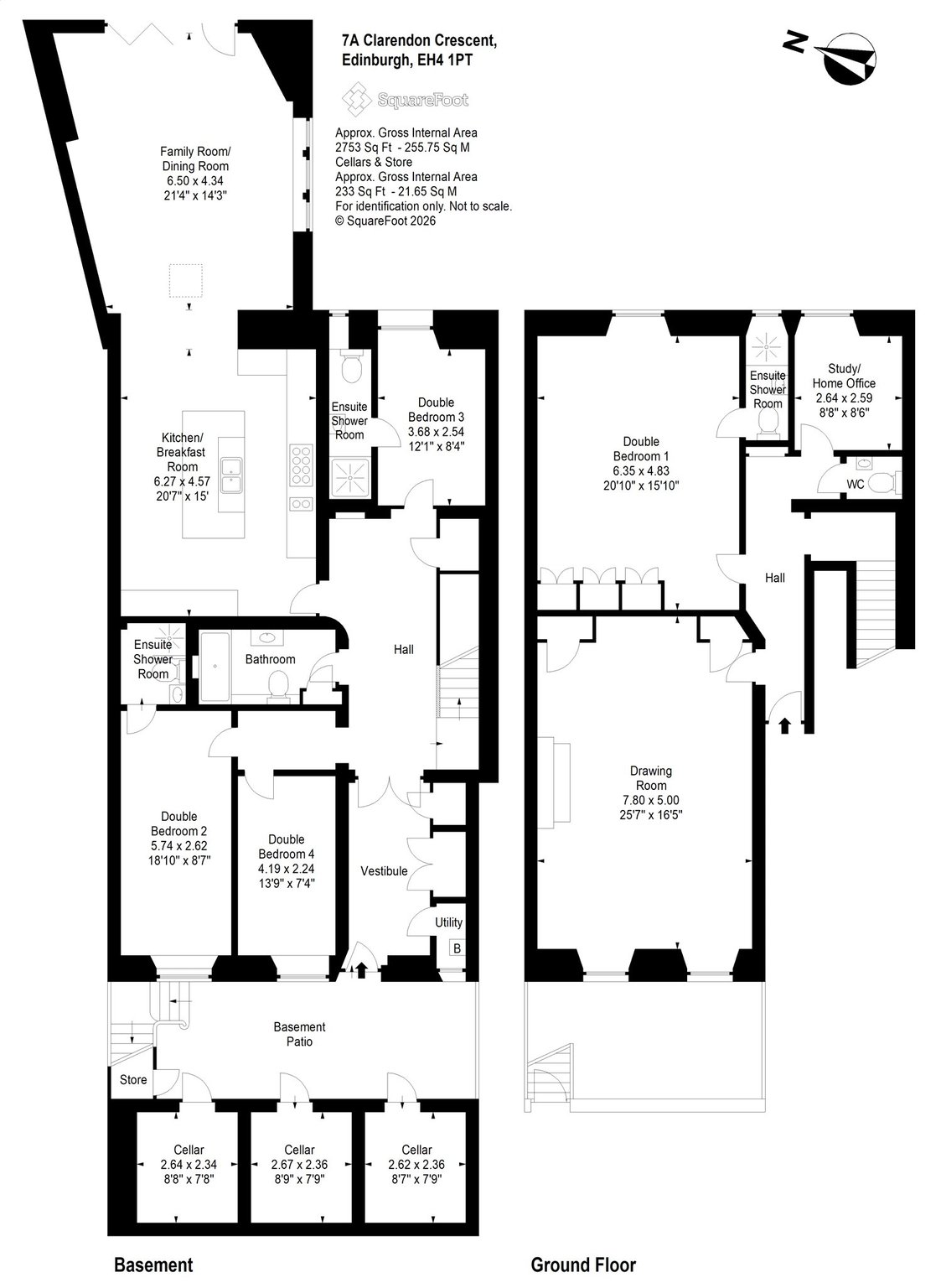
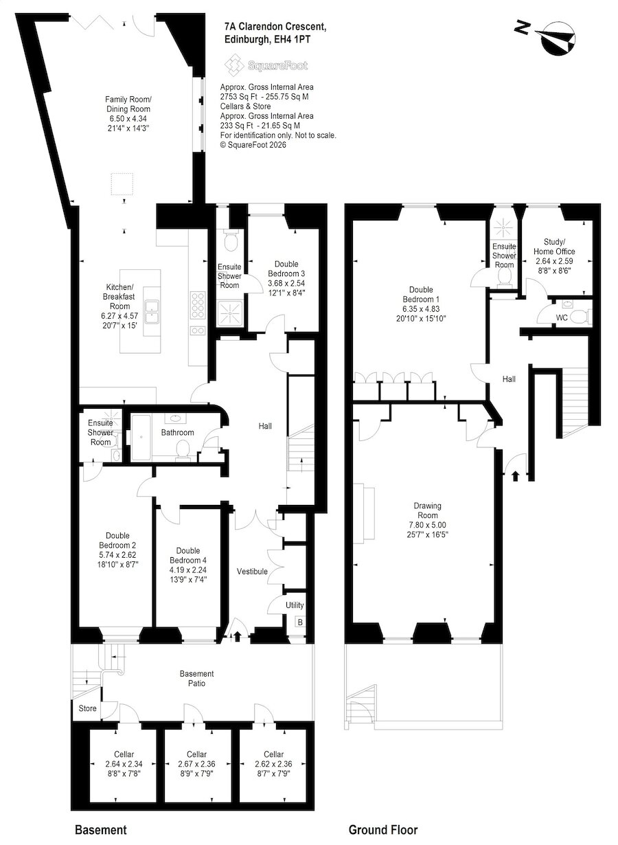
Property Description
An outstanding main door, four-bedroom duplex apartment arranged over the ground and lower ground floors of an elegant Georgian A-listed townhouse on the highly sought-after Clarendon Crescent, one of the most desirable addresses within Edinburgh’s historic West End. This exceptional home combines fine period architecture with beautifully considered contemporary living, offering generous proportions, elegant reception space and the rare benefit of a private garden in the heart of the city.
Entered via its own private main door, the property opens into a welcoming vestibule and reception hall which immediately sets the tone for the accommodation beyond, reflecting the scale and character expected of a distinguished period residence.
The magnificent open plan kitchen / dining / family room forms the heart of the home and provides a superbly designed space for both daily living and entertaining. Thoughtfully arranged to create distinct cooking, dining and relaxation areas, the room offers a wonderfully sociable environment and enjoys excellent natural light, making it an ideal setting for modern family life.
The lower ground floor provides three double bedrooms, two of which benefit from its own ensuite shower room, offering excellent flexibility for family members, guests or home working. This level also provides a stylish family bathroom and useful additional storage.
On the first floor, to the front of the property, overlooking the leafy views across the Crescent gardens, the drawing room is an elegant and beautifully proportioned space, perfectly suited to formal entertaining or quiet relaxation. The room retains a wonderful sense of period charm, complementing the contemporary elements found elsewhere within the property. The principal bedroom suite is generously proportioned and benefits from ensuite shower room. A further study / home office room and guest WC completes the accommodation on this level.
Externally, the property enjoys a private garden, offering a peaceful and sheltered outdoor space. The garden provides an ideal environment for outdoor dining, entertaining or simply enjoying a quiet retreat from city life.
Clarendon Crescent was designed by well-renowned architect John Tait, built between 1850 to 1853, and is peacefully situated equidistant to the New Town and Edinburgh’s West End, within a few minutes’ walk of the historic city centre as well as Stockbridge with its boutiques, cafes and restaurants. For a small annual fee (currently at £185 pa), residents can apply for a key to the wonderful adjacent Dean Gardens, offering the opportunity for lovely walks amongst these well-tended and beautiful gardens as well as bordering the Water of Leith below. Dean Tennis Club is also moments away offering three tennis courts and coaching opportunities.
Summary Of Accommodation
Lower Ground Floor
Entrance Vestibule, Hall, Kitchen / Dining / Family Room, Three Double Bedrooms (two with ensuite shower room), Family Bathroom, Excellent Storage.
Ground Floor
Hall, Drawing Room, Principal Bedroom with ensuite shower room, Study / Home Office, WC
Outdoor Space
Private enclosed garden with decking, patio area, astroturf and mature planting and shrubs, garden shed.
Three Under Pavement Cellars
More Details
EPC: C
CT Band: G
Tenure: Freehold
Viewing by appointment.
Your home may be repossessed if you do not keep up repayments on your mortgage.
There may be a fee for mortgage advice. The actual amount you pay will depend upon your circumstances. The fee is up to 1% but a typical fee is 0.3% of the amount borrowed.
Similar Properties
Looking To Sell Or Let?
Rettie is one of the most trusted and well-respected names in property. Our unrivalled market knowledge helps people from around the world buy, sell, let and develop property in Scotland and the North East of England - from city apartments and rural cottages to large townhouses and prime country homes, farms and estates. We deal with some of the most prestigious properties on the market, but provide the same exceptional standards of service and value for money to all our clients.
