21A South Oswald Road, The Grange, Edinburgh, EH9 2HQ
Property Description
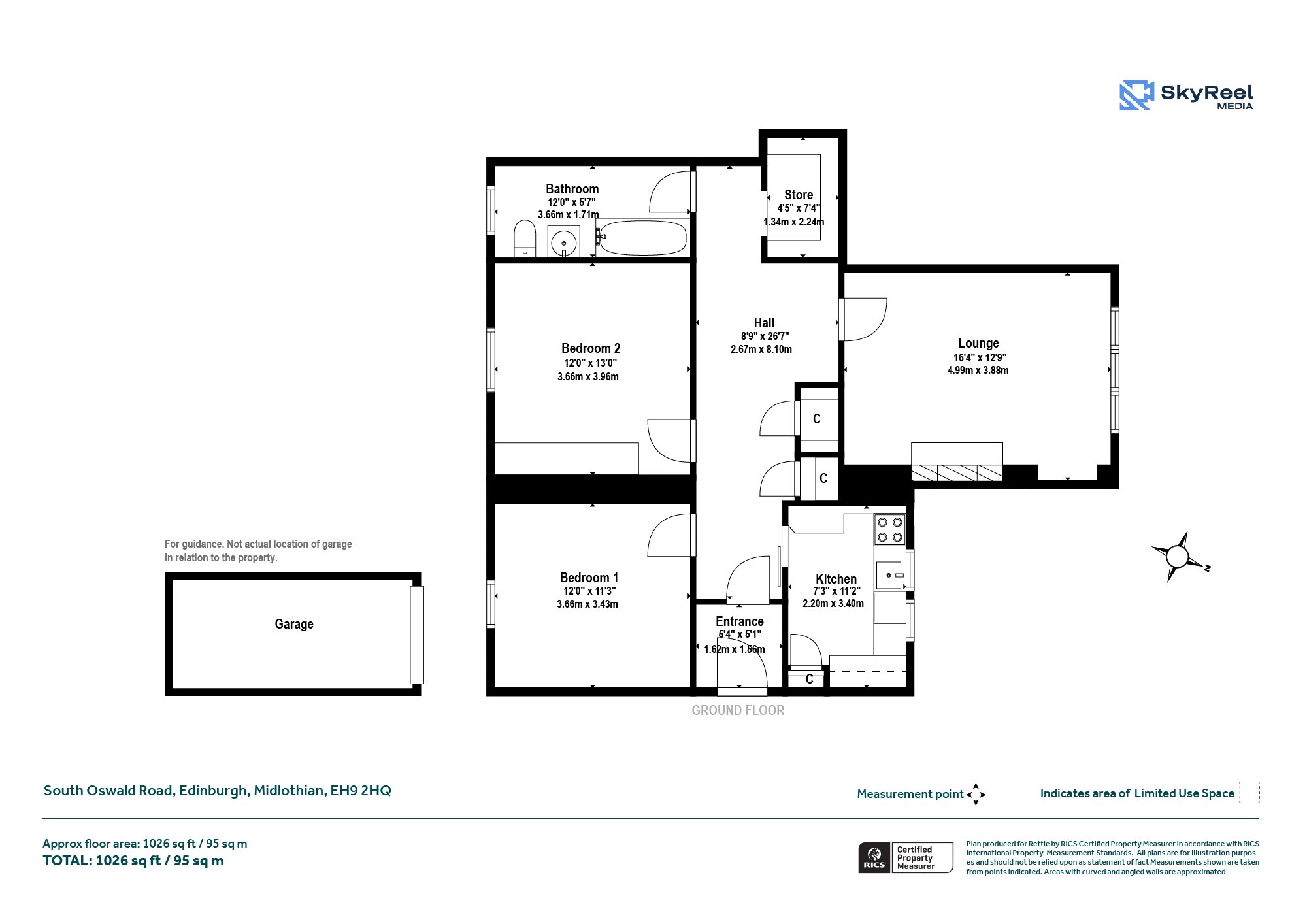
A perfectly formed two bedroom, ground floor apartment in the heart of the Grange, with a garage and private garden. Requiring modernisation, this property provides a unique opportunity to create a beautiful home in one of south Edinburgh's most desirable streets.
Consisting of two well sized bedrooms, a family bathroom, kitchen, large living room and a handy cupboard, the property provides the perfect space to create a modern two bedroom flat. A particular highlight of the property is the private garden, providing a tranquil outdoor retreat, as well as a private single garage which is rare in the neighbourhood.
Location
The Grange conservation area is often regarded as one of Edinburgh’s most desirable and coveted residential districts. Its leafy surroundings lie approximately one mile south of the city centre with Blacket and Newington to its east and Morningside and Bruntsfield to its west; all of which offer an excellent variety of independent retailers, Waitrose, Tesco, Marks & Spencer, numerous bars, coffee shops and restaurants. It is also well placed for access to Cameron Toll shopping centre, the main university buildings at George Square and King’s Buildings. A wide variety of recreational amenities are nearby including theatres, cinemas, The Royal Commonwealth Pool, Warrender Swimming Baths and numerous golf courses. There is also good access out of town to the city bypass and on to the Edinburgh International Airport and motorway network of central Scotland. Excellent schooling in both the private and public sector are catered for nearby.
More Details
EPC: C
Council Tax Band: F
Tenure: Freehold
Viewing by appointment via Rettie & Co.
Your home may be repossessed if you do not keep up repayments on your mortgage.
There may be a fee for mortgage advice. The actual amount you pay will depend upon your circumstances. The fee is up to 1% but a typical fee is 0.3% of the amount borrowed.
Similar Properties
Looking To Sell Or Let?
Rettie is one of the most trusted and well-respected names in property. Our unrivalled market knowledge helps people from around the world buy, sell, let and develop property in Scotland and the North East of England - from city apartments and rural cottages to large townhouses and prime country homes, farms and estates. We deal with some of the most prestigious properties on the market, but provide the same exceptional standards of service and value for money to all our clients.
