Property Description
Set on one of Edinburgh’s most iconic and admired cobbled lanes, 18B Circus Lane offers a rare opportunity to acquire a beautifully arranged mews home in an idyllic and highly sought after setting. With 1,249 sq ft of well designed accommodation, private garage parking, and an exceptional south-facing garden, this is a truly outstanding property in the heart of Stockbridge and the New Town.
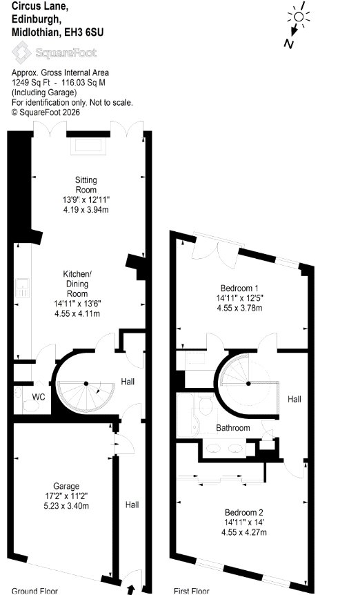
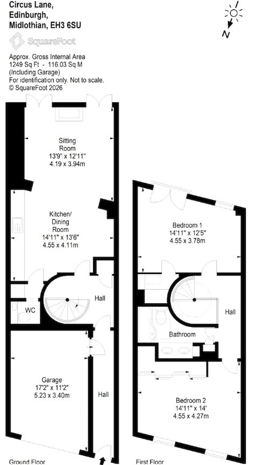
A welcoming hallway leads into the bright and spacious kitchen and dining room, thoughtfully laid out for everyday living and relaxed entertaining. This well-proportioned space benefits from excellent natural light, generous work surfaces, and ample room for a dining table. At the heart of the home lies the stunning south-facing living room, an uplifting and beautifully bright space. Two sets of French doors open directly onto the south-facing back garden, allowing sunlight to pour in throughout the day and creating a wonderful sense of indoor - outdoor flow - perfect for both relaxation and entertaining.
A convenient ground floor WC sits just off the hall, while the exceptionally valuable integral private garage provides secure parking or superb additional storage, an uncommon advantage in such a central location. A feature spiral staircase leads to the upper floor.
The first floor features two generous double bedrooms, each offering excellent proportions and flexibility for furnishings. Bedroom one enjoys pleasant natural light and a peaceful outlook, while bedroom two is equally spacious and ideal as a main bedroom, guest bedroom or home office. A centrally positioned family bathroom completes the level, fitted with both a bath and separate shower alongside good builtin storage.
The back garden itself is a truly rare find on Circus Lane: private, sheltered, beautifully orientated and bathed in sunshine. It offers a charming, peaceful space for outdoor dining and quiet enjoyment. From here, the property also enjoys direct access to a communal green, where a garden shed provides valuable extra storage.
The location of 18B Circus Lane is simply exceptional. Stockbridge sits just moments away and is renowned for its vibrant cafés, artisan shops, independent boutiques, popular restaurants and its muchloved weekly market. The Royal Botanic Garden, Water of Leith walkway, and the many amenities of the New Town are all within easy reach. Excellent public transport connections allow quick travel across Edinburgh, while the surrounding area offers an enviable lifestyle within walking distance of many of the city’s most desirable destinations.
More Details
EPC: D
Council Tax Band: F
Tenure: Freehold
Viewing strictly by appointment.
Your home may be repossessed if you do not keep up repayments on your mortgage.
There may be a fee for mortgage advice. The actual amount you pay will depend upon your circumstances. The fee is up to 1% but a typical fee is 0.3% of the amount borrowed.
Similar Properties
Looking To Sell Or Let?
Rettie is one of the most trusted and well-respected names in property. Our unrivalled market knowledge helps people from around the world buy, sell, let and develop property in Scotland and the North East of England - from city apartments and rural cottages to large townhouses and prime country homes, farms and estates. We deal with some of the most prestigious properties on the market, but provide the same exceptional standards of service and value for money to all our clients.
