Flat 8, 1 Maidencraig Court, Craigleith, Edinburgh, EH4 2BQ
Offers Over £185,000
Apartment
2 Bedrooms
1 Bathroom
1 Reception Room
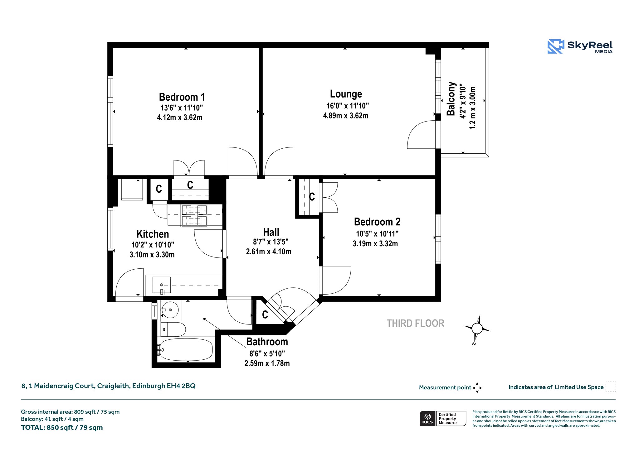
809 sq.ft
Communal Garden
On Street/Permit
Property Description
Situated within the Maidencraig Court development in the popular Craigleith district of Edinburgh, this bright and well-proportioned, two bedroom, third floor flat offers spacious accommodation throughout, lift access, unallocated residents’ parking and residents’ communal gardens.
The property was comprehensively refurbished throughout in 2017 by the present owners, is presented in good condition and would be Ideal for first-time buyers, professionals, downsizers or investors. The property enjoys a peaceful setting while remaining within easy reach of Edinburgh’s city centre and excellent local amenities.
Summary Of Accommodation
Hall, Lounge with access to Balcony, Two Double Bedrooms with fitted wardrobes, Bathroom, Storage Cupboard
The property benefits from double glazing throughout, and a combination of electric heating and communal gas central heating. The development is factored by Edinburgh City Council which includes part-grounds maintenance, lift service, and cleaning, lighting and maintenance of the communal areas. Buildings and contents insurance is the individual owners' responsibility.
Note: Communal Repairs & Maintenance - costs shared equally between 42 flats, a Statutory Notice requires owners to progress repairs to flat roof coverings and associated works during 2026. The sellers will remain liable for their share of these costs.
More Details
EPC: D
CT Band: C
Tenure: Freehold
Viewing by appointment.
Your home may be repossessed if you do not keep up repayments on your mortgage. There may be a fee for mortgage advice. The actual amount you pay will depend upon your circumstances.
Similar Properties
Looking To Sell Or Let?
Rettie is one of the most trusted and well-respected names in property. Our unrivalled market knowledge helps people from around the world buy, sell, let and develop property in Scotland and the North East of England - from city apartments and rural cottages to large townhouses and prime country homes, farms and estates. We deal with some of the most prestigious properties on the market, but provide the same exceptional standards of service and value for money to all our clients.
