Offers Over £240,000
Upper Floor Apartment
1 Bedroom
1 Bathroom
1 Reception Room
560 sq.ft
Communal Garden
On Street/Permit
Property Description
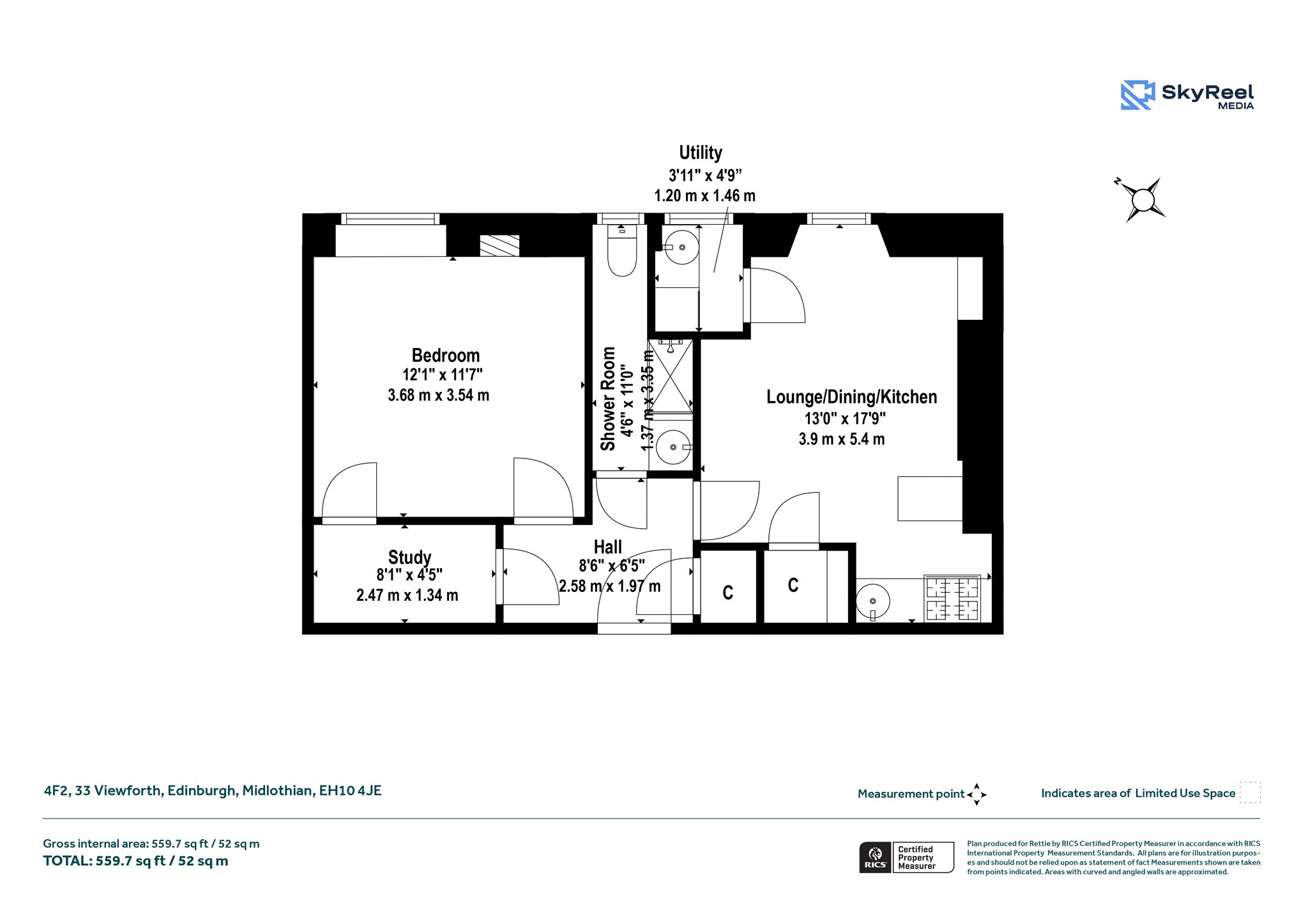
Situated in a traditional tenement, this bright and well-proportioned one-bedroom flat offers excellent condition throughout. Located in the highly regarded Bruntsfield area, the property provides a superb opportunity for first-time buyers, professionals, or investors seeking a turnkey home in a popular and well-connected part of Edinburgh.
To the front of the property is the open plan lounge, dining and kitchen space. Flooded with natural light and offering ample space for both living and dining, making it perfect for entertaining or everyday living. The kitchen area is neatly integrated, offering modern fittings and good worktop and cupboard space.
The generously sized double bedroom provides a calm and comfortable retreat, with ample space for freestanding furniture. Adjacent to the bedroom is a versatile study/home office ideal for home working or additional storage, a particularly appealing feature for modern lifestyles. Completing the accommodation is a contemporary shower room and a separate utility room, adding to the practicality of the home and enhancing day-to-day convenience.
Externally the property benefits from access to a communal garden and on street permit parking.
Summary of Accommodation
Hall, Lounge/Kitchen/Dining Room, Double Bedroom, Shower Room, Study, Utility
Location
Viewforth is a well-established and highly desirable residential area to the south-west of Edinburgh’s city centre, known for its traditional tenements, leafy outlooks and excellent local amenities. The property is ideally positioned for easy access to Bruntsfield and Morningside, both offering a wide selection of independent cafés, shops, bars and restaurants, as well as larger retailers and supermarkets. Outdoor enthusiasts are well catered for with Bruntsfield Links, the Union Canal and The Meadows all within comfortable walking distance. The area benefits from excellent public transport links, providing quick and convenient access to the city centre, universities and financial districts, making it an ideal location for first-time buyers and professionals alike.
More Details
EPC: C
Council Tax: C
Tenure: Freehold
Viewing by appointment via Rettie&Co
Your home may be repossessed if you do not keep up repayments on your mortgage.
There may be a fee for mortgage advice. The actual amount you pay will depend upon your circumstances. The fee is up to 1% but a typical fee is 0.3% of the amount borrowed.
Similar Properties
Looking To Sell Or Let?
Rettie is one of the most trusted and well-respected names in property. Our unrivalled market knowledge helps people from around the world buy, sell, let and develop property in Scotland and the North East of England - from city apartments and rural cottages to large townhouses and prime country homes, farms and estates. We deal with some of the most prestigious properties on the market, but provide the same exceptional standards of service and value for money to all our clients.
