148a Rose Street South Lane, Edinburgh, EH2 4BB

Edinburgh, EH2 4BB
Under Offer
Pin View on map

Offers Over £175,000

Telephone

Property Description

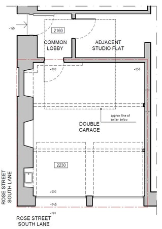
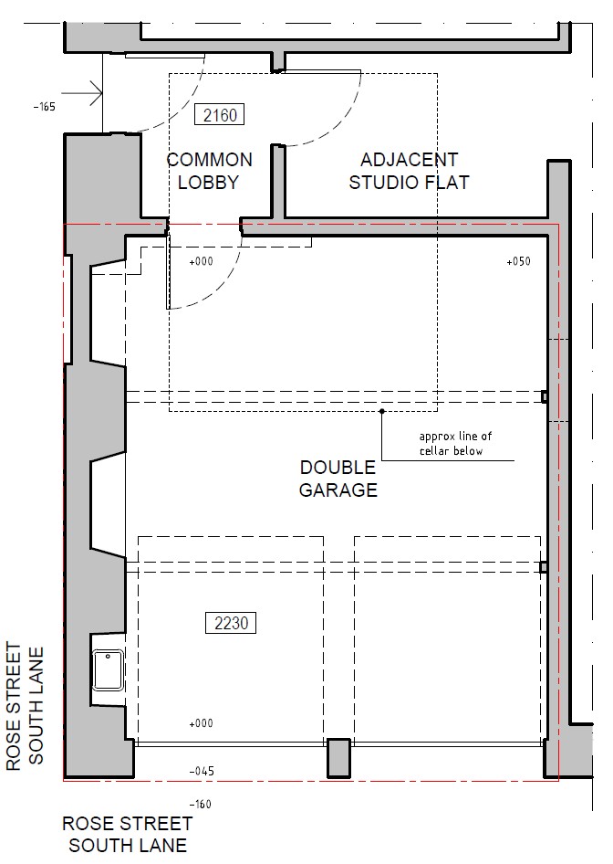
An increasingly rare opportunity to acquire a double garage situated in the heart of Edinburgh’s prestigious New Town, positioned quietly off Rose Street on Rose Street South Lane.

Unusually, the property benefits from full planning consent to convert the existing garage into a well designed one bedroom studio apartment. The consent also includes the required permissions for short term letting, making this an attractive proposition for developers, investors, or owner occupiers seeking a prime central pied-à-terre.

Key Features

  • Currently a double garage with excellent access.
  • Full planning consent granted for conversion into a one bedroom studio flat.
  • Permission in place for short term letting, offering lucrative income potential.
  • Superb location in the iconic New Town, moments from Princes Street and George Street.
  • A unique opportunity in an area where development plots of this nature are exceptionally scarce.
  • Potential to create a high yielding investment in one of Edinburgh’s most desirable and in demand districts.

More Details

EPC: N/A
Council Tax Band: N/A
Tenure: Freehold

Viewing by appointment.

Contact Us

Maz Purdie

Maz Purdie

Senior Sales Negotiator
Max Mills

Max Mills

Director, Residential Sales
Paul Banyard Cert CII (MP)

Paul Banyard Cert CII (MP)

Mortgage & Protection Advisor
Mortgage Calculator
Monthly payments
Please set an interest rate.

Your home may be repossessed if you do not keep up repayments on your mortgage.

There may be a fee for mortgage advice. The actual amount you pay will depend upon your circumstances. The fee is up to 1% but a typical fee is 0.3% of the amount borrowed.

Tax Calculator
LBTT calculator for properties purchased in Scotland. Stamp Duty calculator for properties purchased in England.
Land & buildings transaction tax (LBTT)
= £0
New build house with stone and timber cladding

Looking To Sell Or Let?

Rettie is one of the most trusted and well-respected names in property. Our unrivalled market knowledge helps people from around the world buy, sell, let and develop property in Scotland and the North East of England - from city apartments and rural cottages to large townhouses and prime country homes, farms and estates. We deal with some of the most prestigious properties on the market, but provide the same exceptional standards of service and value for money to all our clients.