The Weddles, South Queensferry, Midlothian, EH30 9SJ

South Queensferry, Midlothian, EH30 9SJ
Sold
Pin View on map

Offers Over £585,000

House

Detached House

Bed

4 Bedrooms

Bathroom

2 Bathrooms

Reception

3 Reception Rooms

Tree

Private Garden

Garage

Garage

Telephone

Property Description

A uniquely charming 19th Century Gate Lodge, imaginatively re-invented as a spacious modern home with a striking extension, which is set within its own private, secluded grounds.

Situated in a scenic setting at the periphery of the illustrious Hopetoun Estate, The Weddles is desirably located for prompt access to Edinburgh and Central Scotland’s arterial motorway network and is within walking distance of South Queensferry’s amenities.

Edinburgh 15 miles (24 km); Glasgow 47 miles (76 km); Edinburgh Airport 9 miles (14 km). (All distances are approximate).

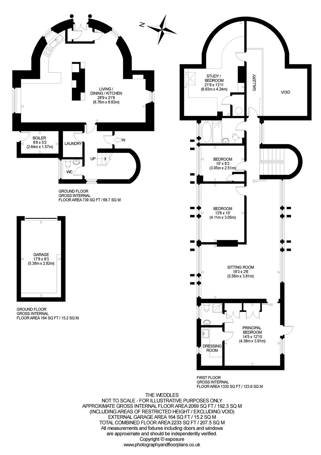
Accommodation

Ground Floor: Entrance Hall, open-plan Sitting Room, Dining Room and Kitchen (situated within original cottage), WC and Utility Room. Boiler Room (accessed from garden).

First Floor: Living Room, Principal Bedroom with en-suite Shower Room and Store, Double Bedroom, third Bedroom, Family Bathroom. Hung-balcony with access into Study/fourth Bedroom.

Exterior:

The Weddles sits in a generous and well-established plot. Delightful woodland, featuring a varied array of mature deciduous and coniferous trees and diverse wildlife, bounds the property from the South West to the North, creating a serene sense of privacy and seclusion. The gardens have been landscaped and planted with diligence and enthusiasm, to provide year-round interest and are bounded by a combination of established hedging and timber fencing.

On approach, the entrance leads into a stone and cobbled driveway, offering ample room for car parking at the foot and the side of a detached, single garage, with an up-and-over door. To the South of the house, a rockery, herb garden, and a wild flower meadow offer definition and colour, whilst to the North there is a large, sheltered lawn encircling a beautiful yew tree. The garden extends to the East into a mature meadow, interspersed with specimen trees. Beneath the shelter of the modern wing, which is suspended above ground level, there is ample room for storing logs and patio furniture. The internal Boiler Room, housing the Worcester boiler, is accessed via an exterior door in the North elevation of the house. There is a second, stone-pillared formal entrance, to the front of the original lodge; with a set of ornate wrought iron gates opening to a driveway.

More Details

EPC Rating: E
Council Tax Band: G
Tenure: Freehold

Contact Us

Joanna Tinson

Joanna Tinson

Senior Sales Negotiator
Alastair Houlden MRICS

Alastair Houlden MRICS

Director of Country House Sales
Paul Banyard Cert CII (MP)

Paul Banyard Cert CII (MP)

Mortgage & Protection Advisor
Mortgage Calculator
Monthly payments
Please set an interest rate.

Your home may be repossessed if you do not keep up repayments on your mortgage. There may be a fee for mortgage advice. The actual amount you pay will depend upon your circumstances.

Tax Calculator
LBTT calculator for properties purchased in Scotland. Stamp Duty calculator for properties purchased in England.
Land & buildings transaction tax (LBTT)
= £0
New build house with stone and timber cladding

Looking To Sell Or Let?

Rettie is one of the most trusted and well-respected names in property. Our unrivalled market knowledge helps people from around the world buy, sell, let and develop property in Scotland and the North East of England - from city apartments and rural cottages to large townhouses and prime country homes, farms and estates. We deal with some of the most prestigious properties on the market, but provide the same exceptional standards of service and value for money to all our clients.