Forbes Gardens, 15/2 East Terrace, South Queensferry, Edinburgh, EH30 9HS

15/2 East Terrace, South Queensferry, Edinburgh, EH30 9HS
Sold
Pin View on map

Offers Over £400,000

House

Terraced House

Bed

2 Bedrooms

Bathroom

1 Bathroom

Reception

2 Reception Rooms

Size

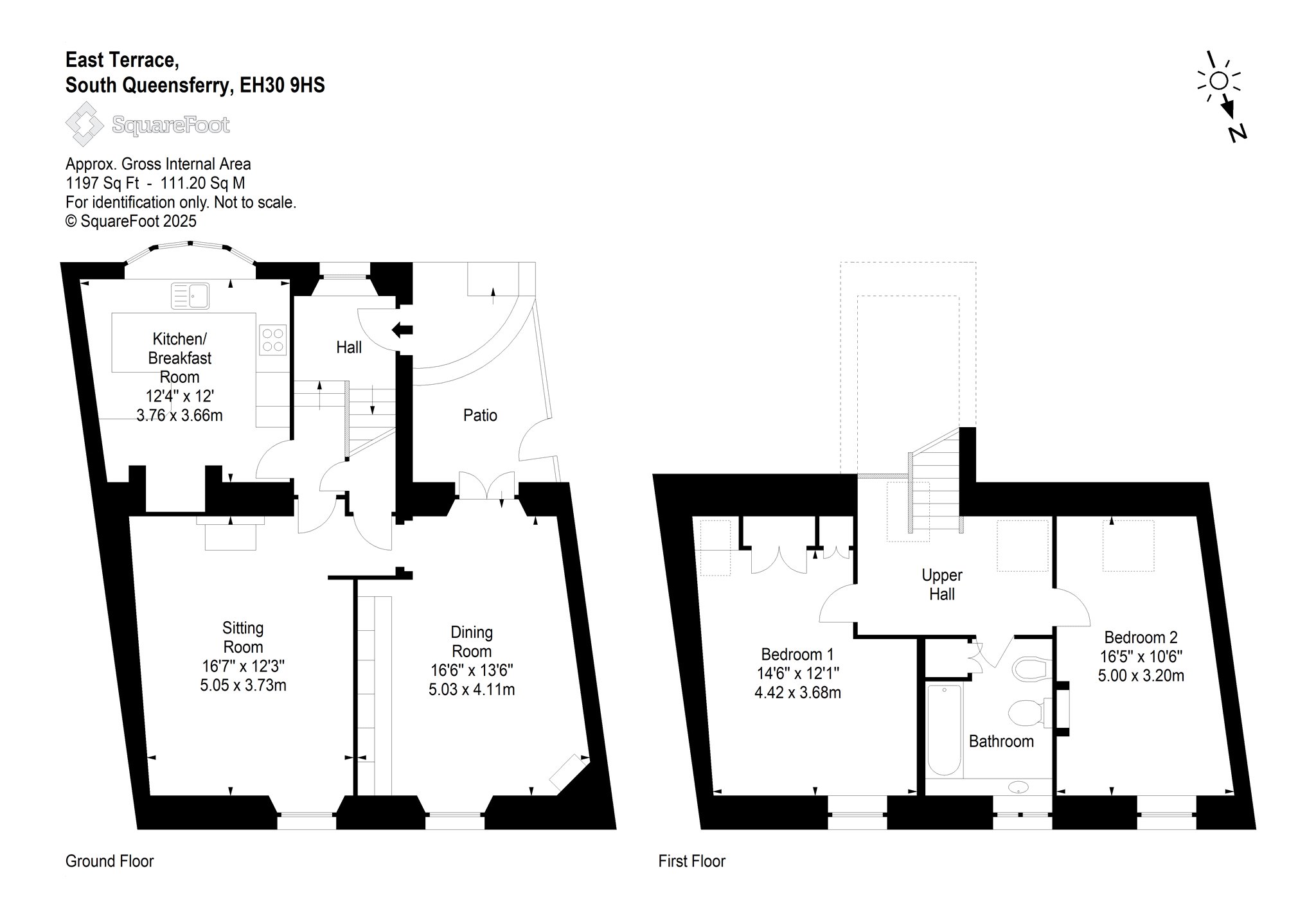
1,197 sq.ft

Tree

Private Garden

Telephone

Property Description

A beautifully-presented coastal cottage, set in the heart of vibrant South Queensferry, which has a wealth of charisma and charm and is set apart by wonderful views towards the Firth of Forth and its iconic bridges.

Accommodation Summary

Ground Floor
Hall, Sitting Room, Dining Room, and Kitchen/Breakfast Room.

First Floor
Upper Hall, Two Double Bedrooms, and Family Bathroom.

Exterior
Delightful, south-facing private garden, thoughtfully designed for alfresco living with a series of landscaped terraces, including: a charming cobbled, courtyard-style entrance area with a set of French doors from the dining room; a spacious patio area trimmed by colourful, well-stocked borders; and a secluded upper garden level with verdant shrubs, mature trees, and a garden shed.

Access to a former washhouse/store and an entrance pathway running from East Terrace South to an area of common ground.

More Details

Tenure - Freehold
EPC Rating - E
Council Tax Band - E

Contact Us

Joanna Tinson

Joanna Tinson

Senior Sales Negotiator
Paul Banyard Cert CII (MP)

Paul Banyard Cert CII (MP)

Mortgage & Protection Advisor
Mortgage Calculator
Monthly payments
Please set an interest rate.

Your home may be repossessed if you do not keep up repayments on your mortgage. There may be a fee for mortgage advice. The actual amount you pay will depend upon your circumstances.

Tax Calculator
LBTT calculator for properties purchased in Scotland. Stamp Duty calculator for properties purchased in England.
Land & buildings transaction tax (LBTT)
= £0
New build house with stone and timber cladding

Looking To Sell Or Let?

Rettie is one of the most trusted and well-respected names in property. Our unrivalled market knowledge helps people from around the world buy, sell, let and develop property in Scotland and the North East of England - from city apartments and rural cottages to large townhouses and prime country homes, farms and estates. We deal with some of the most prestigious properties on the market, but provide the same exceptional standards of service and value for money to all our clients.