The Willows, Sandy Loan, Gullane, East Lothian, EH31 2BH

Sandy Loan, Gullane, East Lothian, EH31 2BH
Sold
Pin View on map

Offers Over £845,000

House

Detached House

Bed

4 Bedrooms

Bathroom

2 Bathrooms

Reception

3 Reception Rooms

Size

2,506 sq.ft

Tree

Private Garden

Garage

Double Garage

Telephone

Property Description

CLOSING DATE SET FOR TUESDAY 25TH NOVEMBER AT 12 NOON.

A spacious 4 bedroom home with a beautiful garden in a prime Gullane location a short walk to the beach and centre of the village.

Summary of Accommodation

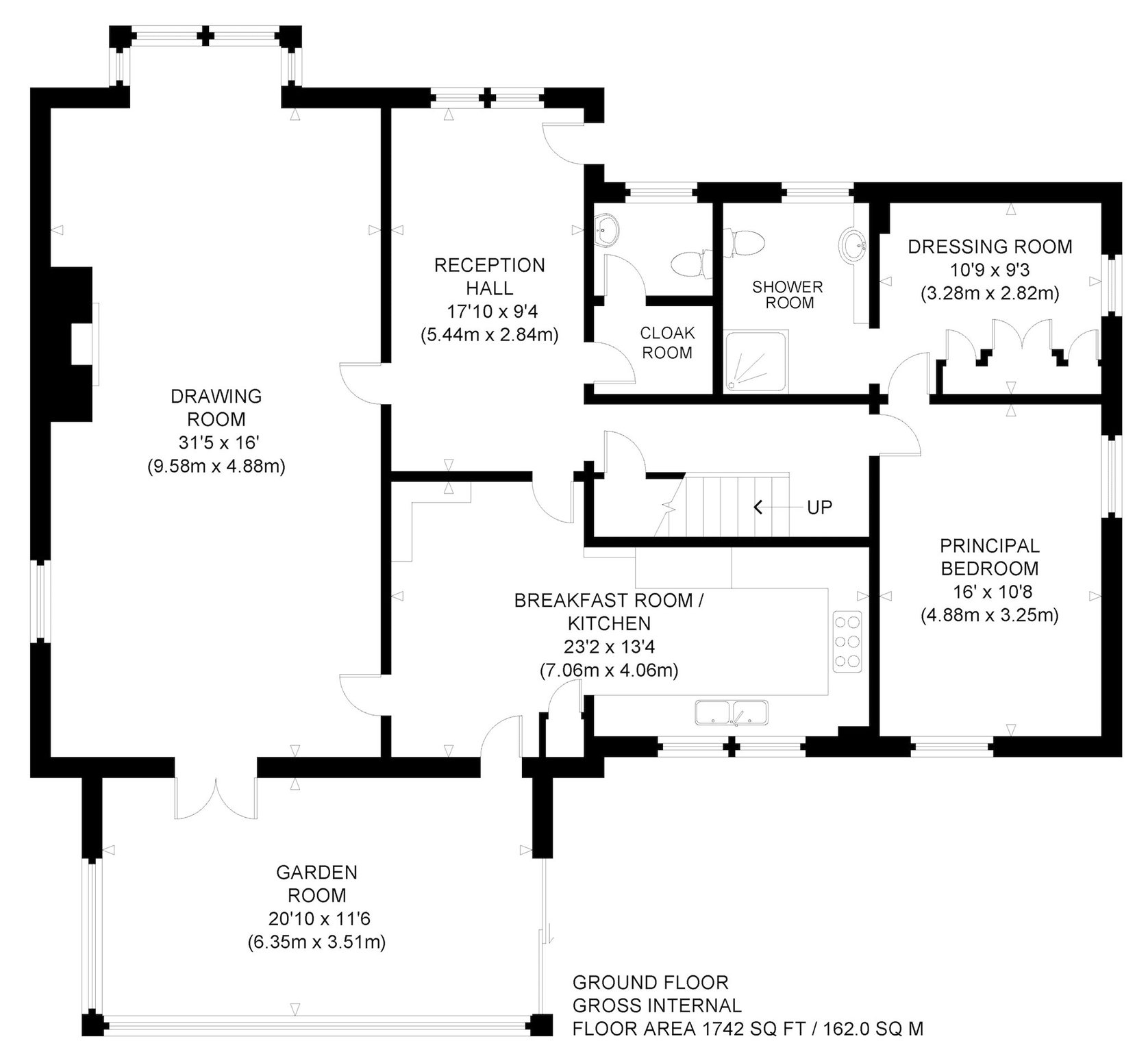
Ground Floor: Reception Hall, Cloakroom, large Drawing room, Garden Room, Dining Kitchen, Inner Hall, Principal Bedroom with Ensuite Dressing Room and Shower Room.

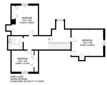
First Floor: Landing, Three Double Bedrooms, and Family Bathroom

Garage: Double Garage with workshop area and electric door

Garden: Large garden with raised decked terrace, predominantly laid to lawn with herbaceous and shrub borders.

About: 0.23 acres

More Details

EPC - C
Council Tax - Band G
Tenure - Freehold

Contact Us

Andrew Smith MRICS

Andrew Smith MRICS

Director of Country House Sales
Paul Banyard Cert CII (MP)

Paul Banyard Cert CII (MP)

Mortgage & Protection Advisor
Mortgage Calculator
Monthly payments
Please set an interest rate.

Your home may be repossessed if you do not keep up repayments on your mortgage.

There may be a fee for mortgage advice. The actual amount you pay will depend upon your circumstances. The fee is up to 1% but a typical fee is 0.3% of the amount borrowed.

Tax Calculator
LBTT calculator for properties purchased in Scotland. Stamp Duty calculator for properties purchased in England.
Land & buildings transaction tax (LBTT)
= £0
New build house with stone and timber cladding

Looking To Sell Or Let?

Rettie is one of the most trusted and well-respected names in property. Our unrivalled market knowledge helps people from around the world buy, sell, let and develop property in Scotland and the North East of England - from city apartments and rural cottages to large townhouses and prime country homes, farms and estates. We deal with some of the most prestigious properties on the market, but provide the same exceptional standards of service and value for money to all our clients.