Earn, 8 Tweeddale Avenue, Gifford, Haddington, East Lothian, EH41 4QN

Gifford, Haddington, East Lothian, EH41 4QN
Under Offer
Pin View on map

Offers Over £590,000

House

Detached House

Bed

3 Bedrooms

Bathroom

2 Bathrooms

Reception

2 Reception Rooms

Size

1,590 sq.ft

Tree

Private Garden

Telephone

Property Description

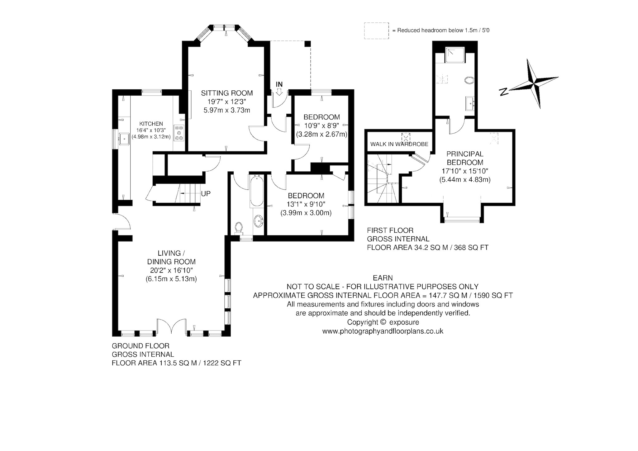
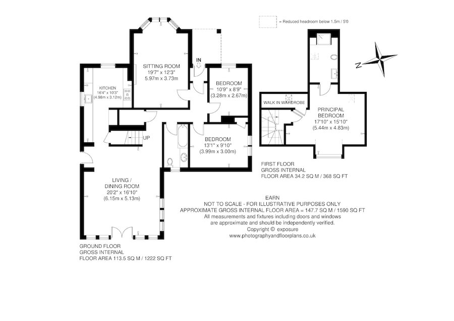
A charming detached 3-bedroom cottage of traditional design, that has been recently extended by the current owners to create a fantastic open plan living/dining room to the rear, with a staircase now ascending to a stunning principal bedroom suite on the newly created first floor. Situated along a quiet, leafy avenue, predominantly used only by residents, the cottage is set back from the road behind a mature beech hedge that creates privacy.

Beautifully manicured gardens reside to the front and rear of the house, with a south-west facing patio terrace that is accessed through French doors from the living room - providing a wonderful space for alfresco dining and entertaining.

A pedestrian gateway leads from the rear garden into the community woodland behind, permitting access to some lovely forest trails directly from the property - which is perfect for those with dogs.

Accommodation:

Ground Floor: Entrance Vestibule, Entrance Hall, Living Room/Dining Room, Kitchen, Sitting Room, Library/Double Bedroom 1, Double Bedroom 2, Family Bathroom

First Floor: Landing, Principal Bedroom Suite with Ensuite Shower Room and Walk-In Wardrobe

Garden: Beautiful, mature gardens surround the property with areas of lawn to the front and rear to include a patio terrace

About: 0.21 acres

More Details

Council Tax - Band F
EPC - Band D
Tenure - Freehold

Contact Us

Charlotte Canby

Charlotte Canby

Senior Sales Negotiator
Andrew Smith MRICS

Andrew Smith MRICS

Director of Country House Sales
Paul Banyard Cert CII (MP)

Paul Banyard Cert CII (MP)

Mortgage & Protection Advisor
Mortgage Calculator
Monthly payments
Please set an interest rate.

Your home may be repossessed if you do not keep up repayments on your mortgage.

There may be a fee for mortgage advice. The actual amount you pay will depend upon your circumstances. The fee is up to 1% but a typical fee is 0.3% of the amount borrowed.

Tax Calculator
LBTT calculator for properties purchased in Scotland. Stamp Duty calculator for properties purchased in England.
Land & buildings transaction tax (LBTT)
= £0
New build house with stone and timber cladding

Looking To Sell Or Let?

Rettie is one of the most trusted and well-respected names in property. Our unrivalled market knowledge helps people from around the world buy, sell, let and develop property in Scotland and the North East of England - from city apartments and rural cottages to large townhouses and prime country homes, farms and estates. We deal with some of the most prestigious properties on the market, but provide the same exceptional standards of service and value for money to all our clients.