Property Description
*closing Date Tuesday 17th March At 12pm*
Heritage charisma meets timeless modern living within a Scots Baronial coach house and stable yard conversion, set apart by an utterly charming, abundant walled garden.
6 Inzievar Courtyard owns 0.5 acres within the former walled garden of Inzievar House - a secluded, south-facing idyll, rich with storybook charm.
Accommodation
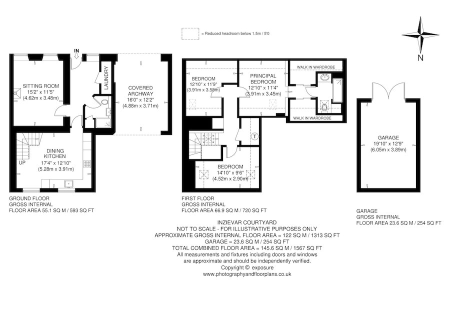
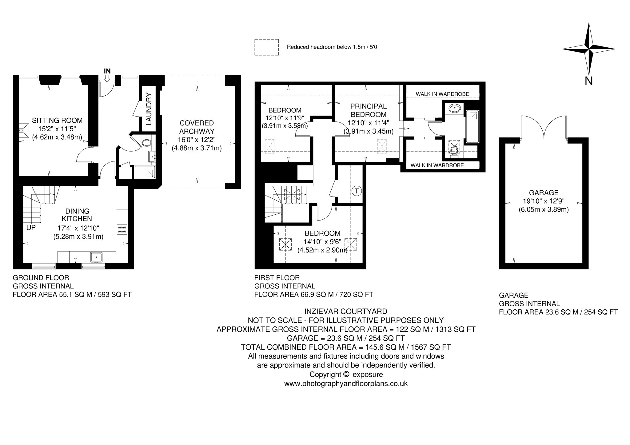
Ground Floor:
Hall, Sitting Room, Kitchen/Dining Room, Shower Room, and Utility Room.
First Floor
Principal Bedroom with walk-through Dressing Area and en-suite Shower Room, and two further Bedrooms.
Approximate Gross Internal Floor Area: 1313 sq. ft (122 sq. m).
Exterior
Verdant, landscaped private garden, within the former walled garden of Inzievar House, of approx. 0.5 acres, featuring a south-facing terrace, an elegant lawn, a kitchen garden with a greenhouse, an idyllic pond area, and a garden shed.
Private terrace area within the communal courtyard, a large single garage, and a private parking bay.
Additionally, there are approximately 7 acres of well-maintained, mature common grounds, including the formal gardens of Inzievar House, a paddock area with a drying green, and a communal car parking area.
Dunfermline 6 miles (9 km); Edinburgh City Centre 22 miles (35 km); and Glasgow City Centre 35 miles (57 km). (All distances are approximate).
More Details
Tenure - Freehold
Council Tax Band - D
EP Rating - Band D
Your home may be repossessed if you do not keep up repayments on your mortgage.
There may be a fee for mortgage advice. The actual amount you pay will depend upon your circumstances. The fee is up to 1% but a typical fee is 0.3% of the amount borrowed.
Similar Properties
Looking To Sell Or Let?
Rettie is one of the most trusted and well-respected names in property. Our unrivalled market knowledge helps people from around the world buy, sell, let and develop property in Scotland and the North East of England - from city apartments and rural cottages to large townhouses and prime country homes, farms and estates. We deal with some of the most prestigious properties on the market, but provide the same exceptional standards of service and value for money to all our clients.
